Version: 8.22.6Navigation überspringen
453.000 €
5 Zimmer  •  102 m²  •  frei ab 01.02.2027
Immowelt logo

Doppelhaushälfte zum Kauf - Erstbezug
453000 €
4.440 €/m²
5 Zimmer  •  102 m²  •  frei ab 01.02.2027

Schlüsselfertige Doppelhaushälfte inkl. Carport und Parkplatz in Pichling: 5 Zimmer, Terrasse, Eigengarten.

Diese moderne Doppelhaushälfte ist ein Ort, an dem Sie sich wie zu Hause fühlen. Es bietet Ihnen ein komfortables Leben in der Stadt Linz. Mit 5 Zimmern, Terrasse und Eigengarten ist dieses Haus ein perfekter Ort, um sich Ihr eigenes Zuhause zu schaffen.

Ihre Vorteile im Überblick

* Das Carport und der Parkplatz sind im Kaufpreis bereits enthalten
* Massivbauweise
* Zentralheizung mittels eigener VAILLANT Wärmepumpe mit Kühlfunktion inkl. 160 l Warmwasserspeicher
* Fußbodenheizung im gesamten Haus
* Elektrische Rollläden bzw. Raffstore bei der Terrassentüre sind bei allen Fenstern im Wohn- und Schlafbereich enthalten
* Im Bad und WC im EG und OG kommt ein satiniertes Glas ohne Rollläden
* Kunststoff-Alu Fenster von Josko mit Hebeschiebetüre im Wohnbereich
* Haustüre von Josko, Werkstoff aus HPL außen und innen
* Helle Räume und große Fensterflächen im Wohnbereich
* Großer Eigengarten
* Umzäunung des Eigengartens und Abtrennung zwischen den einzelnen Häusern mittels Doppelstabmattenzaun verzinkt, ca. 1m hoch, ohne Sichtschutz, ohne Betonsockel und ohne Gartentüre
* Hochwertige Elektroausstattung mit dem Schaltersystem Busch und Jäger future linear
* Leerverrohrung für Internet in den Verteiler
* Jedes Zimmer ist mit einem Leerrohr für Internet oder SAT ausgestattet (5 Stk. insgesamt)
* Waschmaschinenanschluss im Bad oder Technikraum
* Frostsicherer Wasseranschluss bei der Terrasse im Außenbereich
* Eigener Wasser- und Stromanschluss
* Die allgemeinen Außenanlagen werden vom Bauträger fertig gestellt
* Der Eigengarten wird vom Bauträger mit dem Mutterboden planiert, humusiert und angesät
* Ortswasser
* Öffentlicher Kanal

Nicht im Kaufpreis enthalten sind:

* Anschlusskosten für Strom, Kanal, Wasser, Verkehrsflächenbeitrag und die dazugehörigen Aufschließungsarbeiten. Diese betragen € 16.500,-/Doppelhaushälfte und sind nach Erhalt der Rechnung an den Bauträger zu entrichten.

Sonstiges:

* Die schlüsselfertige Fertigstellung ist für Februar 2027 geplant
* Der Eingangsbereich, die Carports und die Abtrennung zwischen den Terrassen werden in Beton ausgeführt
* Änderungen, Druckfehler und Irrtümer sind vorbehalten

Die schlüsselfertige Ausführung beinhaltet:

* Terrasse: Estrichplatten in Splitt verlegt
* Bodenlegerarbeiten: Fertigklebeparkett Eiche 2-Stab inkl. Sockelleisten (Schweizerleiste).
* Fliesenlegerarbeiten:
* Bodenfliesen: Feinsteinzeug, Format: 60/30 inkl. Sockelfliesen, Höhe ca. 7cm aus Bodenmaterial. Der obere Abschluss der Sockelfliesen und Wandfliesen erfolgt mit einer Acryl-Fuge.
* Wandfliesen: Steingut, Format: 60/30 cm, Farbe Weiß matt. Die Wände im Bad und WC werden zum Teil auf eine Höhe von ca. 1,20 m verfliest. Teilweise werden Wände nicht verfliest. Im Bereich der Dusche wird auf eine Höhe von ca. 2,10 m gefliest. Siehe Skizze. Der obere Abschluss der Wandfliesen erfolgt mit einer Acryl-Fuge.
* Stiege: Die Trittstufe der Stiege wird mit dem gleichen Parkettboden belegt. Die Setzstufe wird weiß gestrichen.
* Innentüren: Dana Standardtüre weiß mit Holzumfassungszarge
* Sanitär Bad: Laufen Pro Waschtisch, 60 cm breit mit Grohe oder Hansa Armatur bzw. gleichwertiges, mit Kalt- und Warmwasseranschluss
* Hansatwist Armatur inkl. Duschhalterung und Hansa Basicjet Handdusche
* Dusche mit Fliese und Rinne im Gefälle ca. 100 x 100 cm mit Glaswand (Walk in Dusche, ohne Türe)
* Sanitär WC EG und OG: Laufen Pro Handwaschbecken mit Grohe oder Hansa Armatur bzw. gleichwertiges, mit Kalt- und Warmwasseranschluss
* Hänge WC Tiefspüler Laufen Pro mit Geberit Drückerplatte

Die Anschlusskosten sind auch bei der schlüsselfertigen Ausführung nicht enthalten.

Wir weisen darauf hin, dass zwischen dem Vermittler und dem zu vermittelnden Dritten ein familiäres oder wirtschaftliches Naheverhältnis besteht.

Der Vermittler ist als Doppelmakler tätig.

Merkmale

  • frei ab 01.02.2027
  • 2 Stellplätze: 2 Außen-Stellplätze
  • Terrasse
  • Badezimmer: Bad mit Dusche, Bad mit Fenster

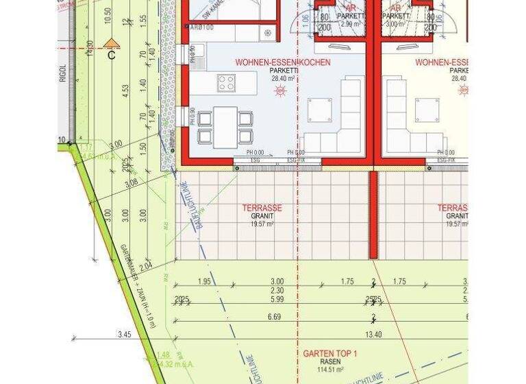
Grundrisse

Grundrisse
1 / 5

Realisiere Dein Projekt

Bausubstanz und Energie

Heizwärmebedarf (HWB)

B

Gesamtenergieeffizienz (fGEE)

A+
  • Baujahr2026
  • Zustand der ImmobilieNeubau, Massivhaus, Erstbezug
  • HeizungsartFußbodenheizung
  • EnergieträgerLuft-/Wasser-Wärmepumpe
Immowelt logo

Preisdetails

Kaufpreis
453000 €
4.439,87 €/m²
Provision für Käufer
3% des Kaufpreises zzgl. 20% USt.
Weitere Preisinformationen
2 Stellplätze

Lage

address-icon
UferLinz (4030)

Weitere Informationen

Stichworte Carport vorhanden, Stellplatz vorhanden, Anzahl der Badezimmer: 1, Anzahl der separaten WCs: 2, Anzahl Terrassen: 1, Balkon-Terrassen-Fläche: 19,57 m², Gartenfläche: 114,51 m², Bundesland: Oberösterreich, Wohnungsnr.: 1

Weitere Services

Lust auf eine Besichtigung?
Eine Frage zur Immobilie?
Nachricht hinzufügen
Mit der Nutzung der oben angegebenen Telefonnummer oder durch Klicken auf „Kontaktieren“ akzeptierst Du die Allgemeinen Nutzungsbedingungen, denen Du jederzeit widersprechen kannst. Weitere Informationen zum Datenschutz

Über den Anbieter

Streiningerstraße 14, 4655 VORCHDORF
Michael Stöttinger
Michael StöttingerDein Kontakt

Weitere Unterlagen

Online-ID: 2n7w45k
Referenznummer: OBGC20260217161552151753f5ebc7b
Stöttinger Immobilien
title
Stöttinger Immobilien
Nachricht hinzufügen
Mit der Nutzung der oben angegebenen Telefonnummer oder durch Klicken auf „Kontaktieren“ akzeptierst Du die Allgemeinen Nutzungsbedingungen, denen Du jederzeit widersprechen kannst. Weitere Informationen zum Datenschutz
Wie zufrieden bist du mit dieser Seite (nicht mit der Immobilie selbst)?