Version: 8.24.0Navigation ĂĽberspringen
Peter Peters Immobilien GmbH &Co.KG
2.795.000 €
6 Zimmer  â€˘  165 m²  â€˘  715 m² GrundstĂĽck

Doppelhaushälfte zum Kauf
2795000 €
16.939 €/m²
6 Zimmer  â€˘  165 m²  â€˘  715 m² GrundstĂĽck

Genehmigtes Ferienhaus nur ein Steinwurf vom Weststrand in Rantum entfernt

Direkt hinter den Rantumer Dünen steht auf einem Grundstück von ca. 715 m² ein modernes Doppelhaus. Die Haushälfte ist als Ferienhaus genehmigt und liegt traumhaft - nur wenige Schritte vom Strand und dem Söl'ring Hof entfernt.
Die Ausstattung ist hochwertig und ansprechend.
Zu der Einheit gehört ein Außenstellplatz sowie eine Garage.

Die Haushälfte besitzt ein eigenes Grundbuchblatt und ist nach WEG von der rechten Haushälfte geteilt.

Kaufpreis der Ferienhaushälfte:
2.950.000,- € brutto / 2.795.000,- € netto

Kein Energieausweis vorhanden / in Vorbereitung.

Merkmale

  • 715 m² GrundstĂĽck
  • AuĂźen-Stellplatz
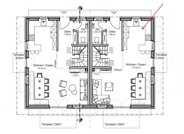
Im Erdgeschoss empfängt Sie eine einladende Diele mit Garderobe und Gäste-WC. Von hier gelangen Sie in das Treppenhaus, von dem Sie das Obergeschoss sowie den Keller erreichen. Geradeaus betreten Sie das helle Wohn- und Esszimmer mit einer modernen Küche. Der Austritt auf die Südterrasse mit dem großzügigen Garten und dem einzigartigen Blick auf die Dünenlandschaft rundet diese Etage ab.
Im Obergeschoss finden Sie zwei Schlafräume, jeweils mit einem großzügigen Bad mit Dusche und Blick auf die Dünen.
Im ausgebauten Spitzboden befindet sich ein weiterer Raum zur individuellen Nutzung.
Das Untergeschoss unterteilt sich in zwei individuell nutzbare Räume, einen schönen Wellnessbereich mit Sauna, Duschbad und WC. Der Haustechnik-/Heizungsraum bietet Platz für eine Waschmaschine.

Das Haus wird inklusive Mobiliar verkauft. Die hochwertigen Einbauten, die Garage und ein Gartenhaus sind ebenfalls bereits im Kaufpreis enthalten.

Grundrisse

Grundrisse
1 / 6

Realisiere Dein Projekt

Bausubstanz und Energie

Der Anbieter hat keine Informationen zum Energieverbrauch bereit gestellt.
  • Baujahr2022
  • EnergieträgerLuft-/Wasser-Wärmepumpe
MediumRectangleTop

Preisdetails

Kaufpreis
2795000 €
16.939,39 €/m²
Provision für Käufer
3,57% inkl. MwSt.
Weitere Preisinformationen
1 Stellplatz
Geschätzte Gesamtkosten
3.132.356 €1
Kaufpreis
2.795.000 €
Notarkosten (1,5%)
41.925 €
Grunderwerbsteuer (6,5%)
181.675 €
Provision für Käufer (3,57%)
99.781 €
Grundbucheintrag (0,5%)
13.975 €
1Der angezeigte Wert ist eine automatisch berechnete Schätzung von immowelt.
2Bei den Angaben handelt es sich um ortsübliche Werte. Individuelle Kosten können abweichen.

Lage

address-icon
Rantum (25980)
Der Anbieter hat die genaue Adresse nicht freigegeben
Nirgendwo auf Sylt kommen sie sich näher: In Rantum rücken Watt und Westküste ganz eng zusammen. Das 741 Hektar kleine Rantum ist der stille Star im Sylter Verbund, liebt das Understatement und gibt sich sympathisch uneitel, trotz herausragender Stärken. Kenner wissen: Rantum ist sehr viel mehr als nur das dörfliche Vorspiel für die legendäre "Sansibar".

Rantum ist der schmalste Ortsteil der Insel, wären da nicht die Dünen, könnte man das Meer von beiden Seiten erleben. Auch hier ballt sich die Natur in unterschiedlichsten Facetten. Die Wege sind nie weit, alles ist fußläufig erreichbar.

Weitere Informationen

Stichworte Nutzfläche: 165,00 m², Gesamtfläche: 165,00 m², Anzahl der Schlafzimmer: 2, Anzahl der Badezimmer: 2, Bundesland: Schleswig-Holstein

Weitere Services

Lust auf eine Besichtigung?
Eine Frage zur Immobilie?
Nachricht hinzufĂĽgen
Mit der Nutzung der oben angegebenen Telefonnummer oder durch Klicken auf „Kontaktieren“ akzeptierst Du die Allgemeinen Nutzungsbedingungen, denen Du jederzeit widersprechen kannst. Weitere Informationen zum Datenschutz

Ăśber den Anbieter

Berthin-Bleeg-StraĂźe 4, 25996 Wenningstedt/Sylt
partner badge
Partnerschaft
Herr Peter Peters
Herr Peter PetersDein Kontakt
Online-ID: 2m3ve53
Referenznummer: 2215
Peter Peters Immobilien GmbH &Co.KG
title
Peter Peters Immobilien GmbH &Co.KG
Bewertung: 4,6 von 5 Sternen
Nachricht hinzufĂĽgen
Mit der Nutzung der oben angegebenen Telefonnummer oder durch Klicken auf „Kontaktieren“ akzeptierst Du die Allgemeinen Nutzungsbedingungen, denen Du jederzeit widersprechen kannst. Weitere Informationen zum Datenschutz
MediumRectangleTop
MediumRectangleBottom
MediumRectangleTop
Wie zufrieden bist du mit dieser Seite (nicht mit der Immobilie selbst)?