Die im Jahr 2022 erbaute Wohnung ist mit einem modernen Bad, offener Wohnküche, CV-Bodenbelag, Fußbodenheizung und Balkon ausgestattet. Das Haus verfügt über einen Aufzug.
In der nahe gelegenen Quartiersgarage haben Sie die Möglichkeit sich für einen PKW-Stellplatz für 65€/mtl. zu bewerben. Diese befindet sich ca. 5 Gehminuten vom Grundstück entfernt.
Bitte beachten Sie unsere Allgemeine Hinweise zum Vermietungsablauf: https://www.gesobau.de/mieten/vermietungshinweise . Die Nettokaltmiete der Wohnung sollte 27 % des Netto-Haushaltseinkommens der MietinteressentInnen nicht überschreiten. Diese Wohnung wird ausschließlich an einen Haushalt mit 1 Person vermietet.
In der Wohnung befindet sich noch die Einbauküche der Vormieter, bei Interesse kann diese gegen einen Abstand übernommen werden.
Merkmale
frei ab sofort
1. Geschoss
Personenaufzug
Kelleranteil
Balkon
Barrierefrei
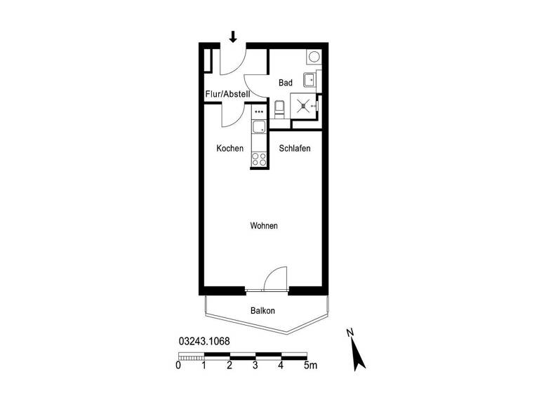
Grundrisse
Grundrisse
1 / 1
Realisiere Dein Projekt
Bausubstanz und Energie
Energieausweis
B
Baujahr2022
HeizungsartFußbodenheizung
EnergieträgerFernwärme
Mietkosten
Warmmiete
812,38 €
Kaltmiete
14,11 €/m²
600,94 €
Nebenkosten
147,55 €
Zusätzliche Kosten
Heizkosten
63,89 €
Kaution
1802.82 €1.802,82 €
Lage
Brigitte-Reimann-Straße 27, Hellersdorf, Berlin (12629)
An der östlichen Berliner Stadtgrenze gelegen entstehen rund 1.500 neue moderne Mietwohnungen. Die Nähe zum grünen Brandenburg und zu dem beliebten Ausflugsziel "Gärten der Welt" sind nur wenige Highlights, die der Bezirk Marzahn-Hellersdorf zu bieten hat. Ganz in der Nähe befinden sich sowohl der "Teupitzer Park" sowie auch der "Wiesenpark" mit der bekannten "Wuhle". Kurze Wege zu vielfältigen Einkaufsmöglichkeiten, u.a. dem "Kaufpark Eiche" und eine sehr gute Anbindung an das öffentliche Verkehrsnetz, ermöglichen es innerhalb kürzester Zeit im Stadtkern zu sein. Des Weiteren ist die A10 / AS Marzahn in ca. 20 Autominuten zu erreichen.
Weitere Informationen
Sonstiges
Egal, ob anspruchsvoller Neubau mit bester Energiebilanz oder Gründerzeithaus, gemütliche Bleibe der 20er/30er Jahre, Mehrfamilienhaus oder geräumige Altbau-WG - bei der GESOBAU bleiben keine Wünsche offen. Wir helfen Ihnen bei der Wohnungssuche in Berlin und bieten attraktiven Wohnkomfort für Familien, Singles, Senioren, Studierende, ältere und junge Paare. Garantiert ist auch für Ihren Geschmack etwas dabei.
HINWEIS ZUR BEWERBUNG: Um Ihnen den bestmöglichen Service zu bieten, können Sie sich bei uns digital bewerben. Kopieren Sie den untenstehenden Link in die Adresszeile Ihres Browsers und folgen Sie der Anleitung.