




1 / 24



1 / 24

Wohnung zur Miete668 €2 Zimmer • 46,3 m² • 4. Geschoss • frei ab 01.06.2026
668 €
2 Zimmer • 46,3 m² • 4. Geschoss • frei ab 01.06.2026
Moderne Wohnung in Hofruhelage mit großem Balkon an der Prager Straße! Straßenbahn, S-Bahn und viele Geschäfte in der Umgebung!
Moderne Neubauwohnungen nahe SCN, Lorettowiese und toller Infrastruktur - Straßenbahn 26 und S-Bahn Jedlersdorf in Gehweite!
Erst 2019 wurde dieses hochwertige Wohngebäude entlang der Prager Straße mit ausgezeichneter Anbindung an die öffentlichen Verkehrsmittel, Nähe zu tollen Naherholungsgebieten und ausgezeichneter Infrastruktur in der direkten Umgebung errichtet.
Nur wenige Gehminuten vom Gebäude entfernt hält die Straßenbahn-Linie 26, welche den 21. und 22. Bezirk miteinander verbindet. So gelangen Sie über diese in nur 4 Stationen zur U6 und S-Bahn in Floridsdorf, in 8 Stationen zur U-Bahn U1 Kagran mit dem dortigen Shopping- und Entertainmentpalast DONAUZENTRUM, aber auch bis an die Stadtgrenze nach Strebersdorf mit dessen Feldern und Hügeln. Auch die S-Bahn Station Jedlersdorf ist fußläufig und in unter 10 Gehminuten erreichbar. An dieser Station halten die Linien S3, S4 und S7.
Die Lage an der belebten Prager Straße bietet Ihnen eine ausgezeichnete Infrastruktur und Nahversorgung, sodass alle Erledigungen praktisch in direkter Umgebung gemacht werden können. Besonders praktisch ist der direkt gegenüberliegende BILLA, die nur etwa 250m geradeaus entfernte Apotheke, Werkstätten und zahlreiche Restaurants. Sollte es einmal die größere Shopping-Tour sein sollen, bietet sich das in nur 2 Busstationen entfernt gelegene Shopping-Center-Nord an.
Zum frische Luft Schnappen, Joggen, Radfahren oder auch mit Ihren Kleinen bietet sich die nahegelegene, 4 Fußballfelder große Lorettowiese und der angrenzende Aupark Jedlesee mit deren Abenteuerspielplatz, Skaterpark, Sitzgelegenheiten, Beachvolleyballplatz, Fußballplatz, Hundezone und viel Grün an. Für die Fußball-Begeisterten gibt es außerdem in unmittelbarer Nähe den Verein SC Columbia Floridsdorf und den FAC Platz. Die Neue Donau mit ihren Grillplätzen und langen Radwegen ist ebenfalls schnell erreicht.
Das Gebäude selbst punktet durch moderne Architektur mit hochwertiger Ausstattung, großzügige Allgemeinbereiche und sinnvolle Energiesparmaßnahmen. Beheizt wird mittels effizienter Fernwärme-Heizkörper. In den 2 begrünten, luftigen Innenhöfen befinden sich einige Spielgeräte. Um wertvollen Wohnraum sinnvoll nutzen zu können, ist jeder Wohnung ein Kellerabteil als Stauraummöglichkeit zu geordnet, sowie der Zugang zu Fahrrad- und Kinderwagenabstellraum. Stellplätze in der hauseigenen Tiefgarage können optional angemietet werden.
In den Wohnungen lassen sich sofort die hochwertige Ausstattung und die smarten Grundrisse spüren. So wurde in den Wohnbereichen stets edler Eichenholzparkettboden verlegt und in den offenen Wohnküchen eine Einbauküche mit Elektrogeräten platziert. An den Fenstern befindet sich ein vorinstallierter, außenliegender Sonnenschutz, welcher über eine Kurbel betrieben wird. Die Badezimmer sind weiß verfliest und beinhalten neben einem Waschmaschinenanschluss, Spiegel, Spülbecken und Handtuchheizkörper auch bereits entweder eine Badewanne oder Duschkabine. Ein nettes Detail in den Wohnungen ist auch die Sprechanlage mit Kamera-Display.
Die Wohnungen werden mit einer Befristung auf 5 Jahre angeboten.
Highlights:
* Straßenbahn Linie 26 in 2 Gehminuten erreichbar
* S-Bahn Jedlersdorf in Gehweite
* Ausgezeichnete Infrastruktur in unmittelbarer Umgebung; BILLA gegenüber des Gebäudes, Apotheke in Gehweite, Restaurants, Kindergärten und Schulen
* Nur 4 Straßenbahn-Stationen zur U6 und S-Bahn Floridsdorf
* 8 Straßenbahn-Stationen zur U1 Kagran und DONAUZENTRUM
* Naherholung Lorettowiese und Aupark Jedlesee in Gehweite
* Shopping Center Nord in 1 Station mit dem Bus
* Fahrradraum, Kinderwagenraum und Kellerabteile vorhanden
* Begrünter Innenhof mit Spielplatz
* Garage
* Postboxen
Ausstattungsstandard:
* Einbauküche mit Elektrogeräten inklusive
* Außenbeschattung an den Fenstern
* Moderner Neubau
* Eichenparkettboden
* Fernwärme Heizung
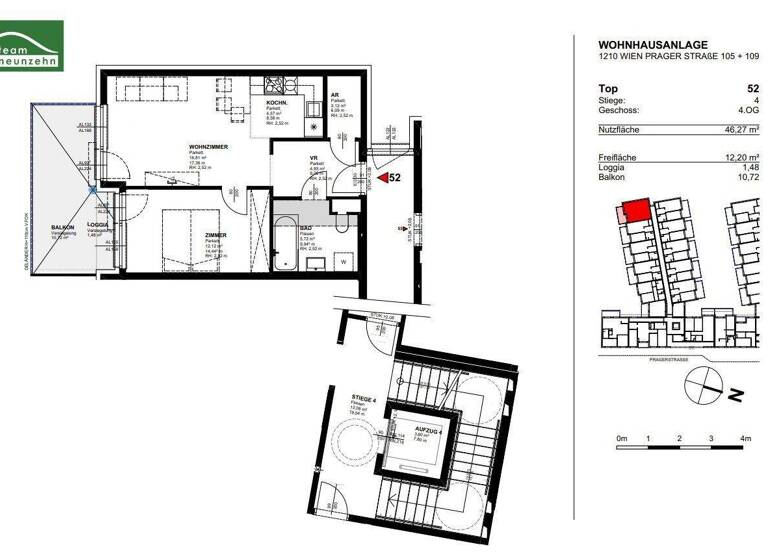
Wohnung Stiege 4 Top 52:
Die 2-Zimmer-Wohnung mit ca. 46,27m² Wohnfläche sowie mit ca. 10,72 m² Balkon und ca. 1,48 m² Loggia befindet sich im 4. Obergeschoss und orientiert sich Richtung Südosten.
* Vorraum: ca. 4,93 m²
* Abstellraum: ca. 2,12 m²
* Wohnzimmer mit Kochnische: ca. 21,38 m²
* Bad mit WC, Badewanne, Handwaschbecken u. WMA: ca. 5,72 m²
* Schlafzimmer: ca. 12,12 m²
Die angebotene Wohnung ist verfügbar ab 01.06.2026.
Einige Bilder des Inserats wurden zum Zweck der besseren Visualisierung digital mit KI möbliert. Die Wohnung wird unmöbliert übergeben.
Kostenübersicht
Der monatliche Mietpreis inklusive Betriebskosten und USt. beläuft sich auf € 920,68.
* Kaution: 3 Bruttomonatsmieten
* Provision: keine
Der angegebene Mietpreis versteht sich als Bruttokaltmiete, Energiekosten wie für Heizung, Warmwasser und Strom sind somit nicht inkludiert und fallen gesondert, basierend auf Ihrem Verbrauch, an.
Bei Bedarf besteht auch die Möglichkeit einen Stellplatz in der hauseigenen Tiefgarage anzumieten.
Der Mietpreis für den PKW-Stellplatz beläuft sich auf 115 Euro (inkl. BK und USt.).
Infrastruktur:
*
Öffis:
* Straßenbahnlinie 26 Hopfengasse in 2 Gehminuten
* U6 und S-Bahn Floridsdorf in 4 Straßenbahn-Stationen
* U1 Kagran in 8 Straßenbahn-Stationen
* S-Bahn Jedlersdorf S3, S4 und S7 in 9 Gehminuten
* Buslinien 36a und 36b in 7 Gehminuten
* Nahversorger: BILLA direkt gegenüber, HOFER in 2 Gehminuten, EUROSPAR in 7 Gehminuten, SPAR EXPRESS (bis 0:00 Uhr geöffnet!) in 10 Gehminuten,
* Naherholung: Lorettowiese und Aupark Jedlesee in 9 Gehminuten, Grillplatz 1 Neue Donau in 15 Gehminuten, begrünte Innenhöfe
* Bildung: mehrere Kindergärten (privat und städtisch) in 5 Gehminuten Umkreis, Volksschule Schillgasse in 5 Gehminuten, Franz Jonas Europaschule in 7 Gehminuten, Mittelschule Rudolf-Schön-Weg in 2 Straßenbahn-Stationen und viele mehr
* Shopping- und Entertainment: SCN in 1 Straßenbahn-Station, DONAUZENTRUM in 8 Straßenbahn-Stationen, zahlreiche Restaurants
Energieausweis
Der Referenz-Heizwärmebedarf beträgt 30,49 kWh/m²a und entspricht somit der Klasse B.
Der fGEE beträgt 0,83 und entspricht somit sogar der Klasse A.
Gerne steht Ihnen Christoph Kolar bei weiteren Fragen oder Wunsch nach einer Besichtigung über das Anfrage-Feld, via E-Mail unter kolar@teamneunzehn.at oder telefonisch unter +43 676 852 243 541 zur Verfügung.
Wir weisen darauf hin, dass zwischen dem Vermittler und dem zu vermittelnden Dritten ein familiäres oder wirtschaftliches Naheverhältnis besteht.
Der Immobilienmakler erklärt, dass er - entgegen dem in der Immobilienwirtschaft üblichen Geschäftsgebrauch des Doppelmaklers - einseitig nur für den Vermieter tätig ist.
"Leben braucht Raum" * T19-RE Real Estate GmbH & Co KG * www.teamneunzehn.at [https://www.teamneunzehn.at]
Doppelmakler
Wir werden als Immobilienmakler kraft bestehenden Geschäftsgebrauchs als Doppelmakler tätig und haben sohin beide Seiten des Vertrages (Verkäufer-Käufer, Vermieter-Mieter) zu unterstützen.
Wirtschaftliches Naheverhältnis
Es wird bekannt gegeben, dass folgendes wirtschaftliches Naheverhältnis zwischen der teamneunzehn-Gruppe und dem Verkäufer/der vermietenden Partei besteht: ständige und dauerhafte Beauftragung mit der Vermittlung des bestehenden Immobilienportfolios
Haftungserklärung zum Inserat
Irrtum und Änderungen vorbehalten! Sofern es sich bei Bildern um Visualisierungen handelt, können Abänderungen zur tatsächlichen Ausführung resultieren. Wir weisen ausdrücklich darauf hin, dass das auf Fotos oder Visualisierungen ersichtliche Mobiliar bzw. Inventar nicht Bestandteil des inserierten Preises ist.
Infrastruktur / Entfernungen
Gesundheit
Arzt <100m
Apotheke <300m
Klinik <1.225m
Krankenhaus <1.250m
Kinder & Schulen
Schule <325m
Kindergarten <100m
Universität <2.025m
Höhere Schule <1.100m
Nahversorgung
Supermarkt <125m
Bäckerei <225m
Einkaufszentrum <675m
Sonstige
Geldautomat <925m
Bank <925m
Post <425m
Polizei <1.125m
Verkehr
Bus <200m
U-Bahn <1.625m
Straßenbahn <200m
Bahnhof <550m
Autobahnanschluss <550m
Angaben Entfernung Luftlinie / Quelle: OpenStreetMap
Erst 2019 wurde dieses hochwertige Wohngebäude entlang der Prager Straße mit ausgezeichneter Anbindung an die öffentlichen Verkehrsmittel, Nähe zu tollen Naherholungsgebieten und ausgezeichneter Infrastruktur in der direkten Umgebung errichtet.
Nur wenige Gehminuten vom Gebäude entfernt hält die Straßenbahn-Linie 26, welche den 21. und 22. Bezirk miteinander verbindet. So gelangen Sie über diese in nur 4 Stationen zur U6 und S-Bahn in Floridsdorf, in 8 Stationen zur U-Bahn U1 Kagran mit dem dortigen Shopping- und Entertainmentpalast DONAUZENTRUM, aber auch bis an die Stadtgrenze nach Strebersdorf mit dessen Feldern und Hügeln. Auch die S-Bahn Station Jedlersdorf ist fußläufig und in unter 10 Gehminuten erreichbar. An dieser Station halten die Linien S3, S4 und S7.
Die Lage an der belebten Prager Straße bietet Ihnen eine ausgezeichnete Infrastruktur und Nahversorgung, sodass alle Erledigungen praktisch in direkter Umgebung gemacht werden können. Besonders praktisch ist der direkt gegenüberliegende BILLA, die nur etwa 250m geradeaus entfernte Apotheke, Werkstätten und zahlreiche Restaurants. Sollte es einmal die größere Shopping-Tour sein sollen, bietet sich das in nur 2 Busstationen entfernt gelegene Shopping-Center-Nord an.
Zum frische Luft Schnappen, Joggen, Radfahren oder auch mit Ihren Kleinen bietet sich die nahegelegene, 4 Fußballfelder große Lorettowiese und der angrenzende Aupark Jedlesee mit deren Abenteuerspielplatz, Skaterpark, Sitzgelegenheiten, Beachvolleyballplatz, Fußballplatz, Hundezone und viel Grün an. Für die Fußball-Begeisterten gibt es außerdem in unmittelbarer Nähe den Verein SC Columbia Floridsdorf und den FAC Platz. Die Neue Donau mit ihren Grillplätzen und langen Radwegen ist ebenfalls schnell erreicht.
Das Gebäude selbst punktet durch moderne Architektur mit hochwertiger Ausstattung, großzügige Allgemeinbereiche und sinnvolle Energiesparmaßnahmen. Beheizt wird mittels effizienter Fernwärme-Heizkörper. In den 2 begrünten, luftigen Innenhöfen befinden sich einige Spielgeräte. Um wertvollen Wohnraum sinnvoll nutzen zu können, ist jeder Wohnung ein Kellerabteil als Stauraummöglichkeit zu geordnet, sowie der Zugang zu Fahrrad- und Kinderwagenabstellraum. Stellplätze in der hauseigenen Tiefgarage können optional angemietet werden.
In den Wohnungen lassen sich sofort die hochwertige Ausstattung und die smarten Grundrisse spüren. So wurde in den Wohnbereichen stets edler Eichenholzparkettboden verlegt und in den offenen Wohnküchen eine Einbauküche mit Elektrogeräten platziert. An den Fenstern befindet sich ein vorinstallierter, außenliegender Sonnenschutz, welcher über eine Kurbel betrieben wird. Die Badezimmer sind weiß verfliest und beinhalten neben einem Waschmaschinenanschluss, Spiegel, Spülbecken und Handtuchheizkörper auch bereits entweder eine Badewanne oder Duschkabine. Ein nettes Detail in den Wohnungen ist auch die Sprechanlage mit Kamera-Display.
Die Wohnungen werden mit einer Befristung auf 5 Jahre angeboten.
Highlights:
* Straßenbahn Linie 26 in 2 Gehminuten erreichbar
* S-Bahn Jedlersdorf in Gehweite
* Ausgezeichnete Infrastruktur in unmittelbarer Umgebung; BILLA gegenüber des Gebäudes, Apotheke in Gehweite, Restaurants, Kindergärten und Schulen
* Nur 4 Straßenbahn-Stationen zur U6 und S-Bahn Floridsdorf
* 8 Straßenbahn-Stationen zur U1 Kagran und DONAUZENTRUM
* Naherholung Lorettowiese und Aupark Jedlesee in Gehweite
* Shopping Center Nord in 1 Station mit dem Bus
* Fahrradraum, Kinderwagenraum und Kellerabteile vorhanden
* Begrünter Innenhof mit Spielplatz
* Garage
* Postboxen
Ausstattungsstandard:
* Einbauküche mit Elektrogeräten inklusive
* Außenbeschattung an den Fenstern
* Moderner Neubau
* Eichenparkettboden
* Fernwärme Heizung
Wohnung Stiege 4 Top 52:
Die 2-Zimmer-Wohnung mit ca. 46,27m² Wohnfläche sowie mit ca. 10,72 m² Balkon und ca. 1,48 m² Loggia befindet sich im 4. Obergeschoss und orientiert sich Richtung Südosten.
* Vorraum: ca. 4,93 m²
* Abstellraum: ca. 2,12 m²
* Wohnzimmer mit Kochnische: ca. 21,38 m²
* Bad mit WC, Badewanne, Handwaschbecken u. WMA: ca. 5,72 m²
* Schlafzimmer: ca. 12,12 m²
Die angebotene Wohnung ist verfügbar ab 01.06.2026.
Einige Bilder des Inserats wurden zum Zweck der besseren Visualisierung digital mit KI möbliert. Die Wohnung wird unmöbliert übergeben.
Kostenübersicht
Der monatliche Mietpreis inklusive Betriebskosten und USt. beläuft sich auf € 920,68.
* Kaution: 3 Bruttomonatsmieten
* Provision: keine
Der angegebene Mietpreis versteht sich als Bruttokaltmiete, Energiekosten wie für Heizung, Warmwasser und Strom sind somit nicht inkludiert und fallen gesondert, basierend auf Ihrem Verbrauch, an.
Bei Bedarf besteht auch die Möglichkeit einen Stellplatz in der hauseigenen Tiefgarage anzumieten.
Der Mietpreis für den PKW-Stellplatz beläuft sich auf 115 Euro (inkl. BK und USt.).
Infrastruktur:
*
Öffis:
* Straßenbahnlinie 26 Hopfengasse in 2 Gehminuten
* U6 und S-Bahn Floridsdorf in 4 Straßenbahn-Stationen
* U1 Kagran in 8 Straßenbahn-Stationen
* S-Bahn Jedlersdorf S3, S4 und S7 in 9 Gehminuten
* Buslinien 36a und 36b in 7 Gehminuten
* Nahversorger: BILLA direkt gegenüber, HOFER in 2 Gehminuten, EUROSPAR in 7 Gehminuten, SPAR EXPRESS (bis 0:00 Uhr geöffnet!) in 10 Gehminuten,
* Naherholung: Lorettowiese und Aupark Jedlesee in 9 Gehminuten, Grillplatz 1 Neue Donau in 15 Gehminuten, begrünte Innenhöfe
* Bildung: mehrere Kindergärten (privat und städtisch) in 5 Gehminuten Umkreis, Volksschule Schillgasse in 5 Gehminuten, Franz Jonas Europaschule in 7 Gehminuten, Mittelschule Rudolf-Schön-Weg in 2 Straßenbahn-Stationen und viele mehr
* Shopping- und Entertainment: SCN in 1 Straßenbahn-Station, DONAUZENTRUM in 8 Straßenbahn-Stationen, zahlreiche Restaurants
Energieausweis
Der Referenz-Heizwärmebedarf beträgt 30,49 kWh/m²a und entspricht somit der Klasse B.
Der fGEE beträgt 0,83 und entspricht somit sogar der Klasse A.
Gerne steht Ihnen Christoph Kolar bei weiteren Fragen oder Wunsch nach einer Besichtigung über das Anfrage-Feld, via E-Mail unter kolar@teamneunzehn.at oder telefonisch unter +43 676 852 243 541 zur Verfügung.
Wir weisen darauf hin, dass zwischen dem Vermittler und dem zu vermittelnden Dritten ein familiäres oder wirtschaftliches Naheverhältnis besteht.
Der Immobilienmakler erklärt, dass er - entgegen dem in der Immobilienwirtschaft üblichen Geschäftsgebrauch des Doppelmaklers - einseitig nur für den Vermieter tätig ist.
"Leben braucht Raum" * T19-RE Real Estate GmbH & Co KG * www.teamneunzehn.at [https://www.teamneunzehn.at]
Doppelmakler
Wir werden als Immobilienmakler kraft bestehenden Geschäftsgebrauchs als Doppelmakler tätig und haben sohin beide Seiten des Vertrages (Verkäufer-Käufer, Vermieter-Mieter) zu unterstützen.
Wirtschaftliches Naheverhältnis
Es wird bekannt gegeben, dass folgendes wirtschaftliches Naheverhältnis zwischen der teamneunzehn-Gruppe und dem Verkäufer/der vermietenden Partei besteht: ständige und dauerhafte Beauftragung mit der Vermittlung des bestehenden Immobilienportfolios
Haftungserklärung zum Inserat
Irrtum und Änderungen vorbehalten! Sofern es sich bei Bildern um Visualisierungen handelt, können Abänderungen zur tatsächlichen Ausführung resultieren. Wir weisen ausdrücklich darauf hin, dass das auf Fotos oder Visualisierungen ersichtliche Mobiliar bzw. Inventar nicht Bestandteil des inserierten Preises ist.
Infrastruktur / Entfernungen
Gesundheit
Arzt <100m
Apotheke <300m
Klinik <1.225m
Krankenhaus <1.250m
Kinder & Schulen
Schule <325m
Kindergarten <100m
Universität <2.025m
Höhere Schule <1.100m
Nahversorgung
Supermarkt <125m
Bäckerei <225m
Einkaufszentrum <675m
Sonstige
Geldautomat <925m
Bank <925m
Post <425m
Polizei <1.125m
Verkehr
Bus <200m
U-Bahn <1.625m
Straßenbahn <200m
Bahnhof <550m
Autobahnanschluss <550m
Angaben Entfernung Luftlinie / Quelle: OpenStreetMap
Merkmale
- frei ab 01.06.2026
- 4. Geschoss
- Personenaufzug
- Einbauküche
- Badewanne
- Bodenbelag: Fliesen, Parkett
- Balkon
- Loggia
Grundrisse
Grundrisse
1 / 1
Realisiere Dein Projekt
Bausubstanz und Energie
Heizwärmebedarf (HWB)
B
Gesamtenergieeffizienz (fGEE)
A
- Baujahr2019
- Zustand der ImmobilieNeubau, neuwertig
- EnergieträgerFernwärme
Mietkosten
Gesamtmiete
920,69 €
Nettokaltmiete
18,09 €/m²
668,46 €
Betriebskosten
168,53 €
Kaution
3 Bruttomonatsmieten
Weitere Preisinformationen
Nettokaltmiete: 668,46 EUR
Lage

Prager Straße 105 + 109, Wien (1210)
Prager Straße, Anton-Bosch-Gasse, Deublergasse, FAC Platz, Lorettowiese, Aupark Jedlesee, Neue Donau, S-Bahn Jedlersdorf, Straßenbahn Linie 26 Hopfengasse
Weitere Informationen
Stichworte
Tiefgarage vorhanden, Süd-Ost-Balkon/Terrasse, Fahrradraum, Rolladen, Nutzfläche: 58,47 m², Gesamtfläche: 58,47 m², Freifläche: 12,20 m², Anzahl der Badezimmer: 1, Anzahl der separaten WCs: 1, Anzahl Balkone: 1, Anzahl Loggias: 1, Balkon-Terrassen-Fläche: 12,20 m², Bundesland: Wien, 6 Etagen, Wohnungsnr.: 52
Weitere Services
Lust auf eine Besichtigung?
Eine Frage zur Immobilie?
Über den Anbieter
Handelskai 94-96/21. Stock, 1200 BRIGITTENAU
Partnerschaft
Herr Christoph KolarDein Kontakt
Online-ID: 26EVUAX38GU2
Referenznummer: OBGC20260203092708909158cfe7596
Wie zufrieden bist du mit dieser Seite (nicht mit der Immobilie selbst)?


