Version: 8.25.1Navigation überspringen
6 €
Immowelt logo

Lagerhalle zur Miete
6 €
/m²

264 m2 Hohe Decken + großes Rolltor Lager + Büro für ambitionierte Unternehmen

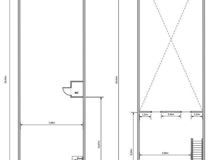
EG Lager Produktion Ausstellung 264 m² Video: https://www.instagram.com/reel/C0w2YCzM5Ex/?igshid=MzRlODBiNWFlZA== Aufteilung: Lager EG= 196 m2 Büro 1.OG= 68 m2 Der Grundriss ist aus Leichtbauwänden gestaltet und ist veränderbar. Die Halle verfügt über ein großzügiges 2,98 Meter hohes Zufahrtstor eine hohe Deckenhöhe die sich hervorragend zum Stellen von Hochregalen eignet. Bei den Hallen handelt es sich um neuwertige Wärmeschutzhallen, die bestens gedämmt sind. Sie können individuell als Werkstatt, Lager und/oder Büro genutzt werden oder sogar in Kombination, z.B. aufgeteilt in einen Lager- und einen Bürobereich. Decken können individuell eingezogen werden über die gesamte Mietfläche oder über einen Teil der Fläche. Bürokosten: 8,5 Euro pro m² für Bürofläche. Es gelten unsere Allgemeinen Geschäftsbedingungen (Pdf. Datei in der Anlage) Eine Wohnnutzung in den Büros ist möglich.

Merkmale

  • frei ab sofort
  • 24 Monate
  • Glasfaser-Anschluss
Video: https://www.instagram.com/reel/C0w2YCzM5Ex/?igshid=MzRlODBiNWFlZA== - Nutzung: Produktion, Lager, Handel, Ausstellung - Elektro-Grundinstallation von Steckdosen, Kraftsteckdosen und Vorinstallation für Beleuchtung vorhanden und sofort nutzbar - Eine ebenerdige Anbindung über ein großes Rolltor ist gegeben. - Die Deckenhöhe beträgt ca. 6,00 m. - Ökologisch bieten diese Immobilien Strom aus Photovoltaikanlagen, Regenwassernutzung für WC-Spülungen und Wärmedämmung. - Den Mietern dieser Immobilie steht ein Hausmeisterservice, Videoüberwachung des Außengeländes, elektrische Zugangstore und die Dienste der Tochterfirmen für Elektroinstallationen, Gabelstapler, Verpackungsmittel, Paletten, Transportservice per Lkw und Kleintransporter zur Verfügung. - Die Gewerbeimmobilien verfügen über einen Glasfaser-Anschluss. - 24 Stunden Zugang - Mindestvertragslaufzeit 24 Monate - Steffelmietvertrag

Grundrisse

Grundrisse
1 / 1

Realisiere Dein Projekt

Bausubstanz und Energie

Energieausweis

Der Energieausweis wird bei Besichtigung nachgereicht.
  • Zustand der ImmobilieGepflegt
Immowelt logo

Mietkosten

Warmmiete
2.232 €
Nettomiete
6 €/m²
1.756 €
Nebenkosten
475,20 €
Heizkosten
in Nebenkosten enthalten
79,20 €
Zusätzliche Kosten
Miete pro Stellplatz
40 €
Provision für Mieter
3 Warmmieten + 19% Mehrwertsteuer
Kaution
3 Warmmieten + 19% MwSt.

Lage

address-icon
Schwarzenbek (21493)
Der Anbieter hat die genaue Adresse nicht freigegeben
Schwarzenbek liegt ideal im sogenannten Speckgürtel vor den Toren Hamburgs und trägt die Auszeichnung Europastadt, die ihr der Europarat für das Engagement der europäischen Integration verlieh. Sehr gute Verkehrsanbindungen sind gegeben: die Bahnlinie Hamburg-Berlin durchquert die Stadt Schwarzenbek. In ca. 20 Minuten kann man mit dem Regionalexpress (RE) den Hamburger Hauptbahnhof erreichen. Den Berliner Hauptbahnhof kann man in ca. 115 Minuten erreichen. Bus- und Bahnverbindungen sind im Verkehrsverbund HVV eingebunden. Weiterhin kreuzen die Bundesstraßen B404, 207 und 209 Schwarzenbek. Die Bundesautobahn 24 ist in wenigen Fahrminuten über die B404 oder B207 zu erreichen. Auch als Wohnort ist Schwarzenbek attraktiv. Der Ort liegt im Südosten von Schleswig-Holstein. Unmittelbar im Nordwesten angrenzend befindet sich der Sachsenwald. Neben diversen Einkaufsmöglichkeiten, Ärzten, Kindergärten und Schulen werden zahlreiche Freizeit- und Sportmöglichkeiten angeboten.

Weitere Services

Lust auf eine Besichtigung?
Eine Frage zur Immobilie?
Mit einer persönlichen Nachricht hast du bessere Chancen auf eine Antwort.
Mit der Nutzung der oben angegebenen Telefonnummer oder durch Klicken auf „Kontaktieren“ akzeptierst Du die Allgemeinen Nutzungsbedingungen, denen Du jederzeit widersprechen kannst. Weitere Informationen zum Datenschutz

Über den Anbieter

Große Bleichen 21, 20354 Hamburg
partner badge
Partnerschaft
Herr Alexander BreitenbachDein Kontakt
Online-ID: 26URZ5JWDTQP
Referenznummer: 264 CAMP
Areal Immobilien e.K.
Areal Immobilien e.K.
Mit einer persönlichen Nachricht hast du bessere Chancen auf eine Antwort.
Mit der Nutzung der oben angegebenen Telefonnummer oder durch Klicken auf „Kontaktieren“ akzeptierst Du die Allgemeinen Nutzungsbedingungen, denen Du jederzeit widersprechen kannst. Weitere Informationen zum Datenschutz
Wie zufrieden bist du mit dieser Seite (nicht mit der Immobilie selbst)?