Version: 8.25.1Navigation überspringen
Mietkosten auf Anfrage
Immowelt logo

Bürofläche zur Miete • provisionsfrei
Mietkosten auf Anfrage

Büroflächen und Co-Working in 4820 Bad Ischl - zu mieten

Kurzbeschreibung Bleiben Sie maximal flexibel mit Büroflächen und Coworking-Spaces in Bad Ischl. Objekt Bleiben Sie maximal flexibel mit Büroflächen und Coworking-Spaces in Bad Ischl.

Entdecke Büroflächen und Co-Working in der Kulturhauptstadt Bad Ischl, Oberösterreich.

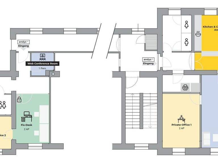
Die ideale Büroumgebung auf 200 m²: Private-Offices mit 1-4 Arbeitsplätzen ab 13 m², Flex-Access und Fix-Desk Bereiche, professionell ausgestatteter Schulungs-, Besprechungs- und Meetingraum sowie Community- und Networking Areas und Multifunktionsraum mit 30 m². Corporate Packages und Add-on Services ermöglichen eine auf Ihre Bedürfnisse zugeschnittene Angebotsgestaltung bei voller Kostentransparenz auf die tatsächlich benötigten Arbeitsplätze.

KOSTENLOSE ALL-IN-SERVICES
Tägliche Reinigung, inkludiertes (Farb-) Drucken und Scannen sowie Aktenvernichtung, Kaffee, Tee, Mineral und Säfte sowie Snacks und Obst sind in allen Mitgliedschaften inkludiert. Unterstützt von einem 15-köpfigen Team sowie einem durchgängig vernetzten digitalen
Betriebssystem, dass einen kontaktlosen Zutritt zum Standort und 24/7 remote Betrieb
gewährleistet, können Sie sich ganz auf Ihr Business konzentrieren.

VERFÜGBARKEIT
1x Private Office | 1 Arbeitsplatz
1x Private Office | 2 Arbeitsplätze
1x Private Office | 4 Arbeitsplätze
1x Fix-Desk

PREISE
Coworking Fix-Desk: € 269,-Person/Monat zzgl. USt
Private-Office: € 399,-Person/Monat ab 2 Personen zzgl. USt

Merkmale

- 24/7 digitaler Zutritt per Smartphone
- professionell ausgestatteter Meetingraum und zusätzlicher Multifunktionsraum
- freie Nutzung der Open-Spaces
- großzügige Community Area mit Teeküche
- ausfallsicheres Premium WLAN
- Klimatisierung und Heizung

Grundrisse

Grundrisse
1 / 1

Realisiere Dein Projekt

Bausubstanz und Energie

Möchtest du Details zum Energieverbrauch?info_energy_calculation-icon
Immowelt logo

Mietkosten

Miete auf Anfrage
Provision für Mieter
provisionsfrei
Kaution
3-6 Bruttomonatsmieten zzgl. USt
Weitere Preisinformationen

ab EUR 149,00

Lage

address-icon
Bad Ischl (4820)
Der Anbieter hat die genaue Adresse nicht freigegeben
Die flexiblen Einheiten in der Bahnhofstrasse überzeugen durch die zentrale Lage direkt am Bahnhof Bad Ischl. Die Bahnanbindung erleichtert Pendler:innen den Zugang, während die Umgebung mit Gastronomie, Nahversorgern und Natur für die perfekte Work-Life-Balance sorgt. Erleben Sie effizientes Arbeiten in entschleunigender Umgebung.

Parkgarage Eurothermen Resort Bad Ischl: 1 Gehminute
Öffentliche Parkplatz Kaiservilla: 4 Gehminuten
CONTIPARK Parkplatz Salinenplatz: 6 Gehminuten

Weitere Informationen

Sonstiges Wir sind eine Tochtergesellschaft der ÖRAG-Österreichische Realitäten AG, Wien, genannt ÖRAG, und es besteht daher unter Umständen ein sonstiges wirtschaftliches Naheverhältnis im Sinne des Maklergesetzes zur ÖRAG und ihren anderen Tochtergesellschaften in Österreich. Das Naheverhältnis zur ÖRAG ergibt sich zB aus der Tatsache, dass die ÖRAG das Objekt für den Eigentümer verwaltet. Es kann aber auch ein wirtschaftliches Naheverhältnis im Sinne des Maklergesetzes zum Auftraggeber, also dem bzw. den Eigentümern bestehen, wenn wir laufend bzw. regelmäßig für diesen Auftraggeber als Makler tätig werden. Sollten Sie diesbezüglich Fragen haben oder eine weitere Aufklärung wünschen, wenden Sie sich bitte direkt an unseren Mitarbeiter.
Die ÖRAG Immobilien Vermittlung GmbH wird als Doppelmakler tätig.
Weitere Immobilien finden Sie auf unserer Website www.oerag.at. Stichworte Bundesland: Oberösterreich, Distanz zum Kindergarten: 0.37, Distanz zur Grundschule: 0.94, Distanz zur Realschule: 0.24, Distanz zur nächsten Einkaufsmöglichkeit: 15.78, Distanz zum Gymnasium: 0.56, Distanz zum Hauptbahnhof: 8.12, Distanz zum Bus: 0.05, Distanz zur nächsten Gaststätte: 0.23, Distanz zur Hauptschule: 15.15

Weitere Services

Lust auf eine Besichtigung?
Eine Frage zur Immobilie?
Nachricht hinzufügen
Mit der Nutzung der oben angegebenen Telefonnummer oder durch Klicken auf „Kontaktieren“ akzeptierst Du die Allgemeinen Nutzungsbedingungen, denen Du jederzeit widersprechen kannst. Weitere Informationen zum Datenschutz

Über den Anbieter

Franz-Josef-Straße 15, 5020 SALZBURG
Herr Rainer KutscheraDein Kontakt
Online-ID: 26M31LBDK3JT
Referenznummer: 505260221
Örag Immobilien West GmbH
Örag Immobilien West GmbH
Bewertung: 5 von 5 Sternen
Nachricht hinzufügen
Mit der Nutzung der oben angegebenen Telefonnummer oder durch Klicken auf „Kontaktieren“ akzeptierst Du die Allgemeinen Nutzungsbedingungen, denen Du jederzeit widersprechen kannst. Weitere Informationen zum Datenschutz
Wie zufrieden bist du mit dieser Seite (nicht mit der Immobilie selbst)?