Moderne Hallenfläche mit flexiblen Mietlaufzeiten - Metroloq Erftstadt
Zukunft gestalten, heute starten - Willkommen bei Metroloq Erftstadt!
Suchen Sie eine moderne Gewerbefläche mit maximaler Flexibilität? Dann sind Sie hier genau richtig! Unser Unternehmerpark Metroloq Erftstadt bietet maßgeschneiderte Flächen-Lösungen in attraktiver Lage für Ihr Unternehmen - egal ob Start-up, Kleinunternehmen oder mittelständischer Betrieb.
Mit unseren zwei Mietvertragsmodellen FIX & FLEX finden Sie das passende Modell für Ihren Bedarf. Das FLEX-Modell bietet kurze Vertragslaufzeiten und ermöglicht Ihnen die gewünschte Flexibilität ganz ohne langfristige Verpflichtungen. Langentschlossene Mietinteressenten finden mit dem FIX-Modell das passende Pendant zu vergünstigten Konditionen.
Mit unserem Plug & Work-Konzept können Sie direkt mit Schlüsselübergabe der Hallen den Geschäftsbetrieb aufnehmen und durchstarten. Hochwertige Ausstattung und vielseitige Nutzungsmöglichkeiten schaffen beste Voraussetzungen für produktives Arbeiten. Ein umzäuntes Gelände mit 24/7 Kameraüberwachung sorgt für ein ausgeprägtes Sicherheitsgefühl, auch wenn Sie nicht vor Ort sind. Darüber hinaus ermöglichen stark belastungsfähige Hartstoffestrichböden und Sektionaltore einen ebenerdigen Zugang für unkomplizierte Anlieferungen. Abgerundet wird das Angebot durch zwei direkt vor der Halle befindliche Stellplätze für Sie und Ihre Mitarbeiter.
Egal ob als Lager, zur Produktion oder als Logistikfläche - die zum Angebot stehende Fläche bietet vielseitige Nutzungsmöglichkeiten. In unserem Gewerbepark schaffen wir eine Umgebung, die Ihr Wachstum unterstützt und ihr Potenzial ausschöpft. Die vielseitige Mieterschaft bietet Ihnen das ideale Umfeld, um sich mit anderen ambitionierten Unternehmern auszutauschen und wertvolle Synergien und Partnerschaften zu bilden. Lassen Sie uns gemeinsam Ihre unternehmerische Zukunft gestalten und profitieren Sie von einem Geschäftsumfeld, das mit Ihnen mitwächst.
Merkmale
Bezug: sofort
2 Stellplätze: 2 Außen-Stellplätze
Die technischen Highlights unseres Unternehmerparks im Überblick:
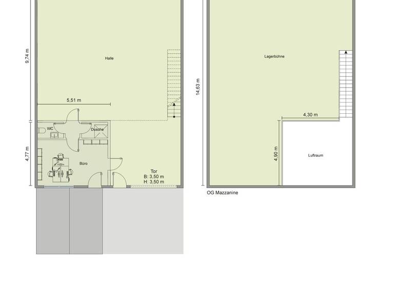
Optimale Erreichbarkeit & Zugang: Ebenerdiges Sektionaltor mit Sichtfenster (3,5 x 3,5 m) für eine bequeme Be- und Entladung. Zwei separate Zugangstüren: Eine für das Büro, eine für die Halle.
Robuste & belastbare Bodenstruktur: Betonkernaktivierte Bodenplatte mit einer Traglast, die perfekt für industrielle Anforderungen geeignet ist: Gabelstapler FL3 = 60 KN Flächennutzlast = 35 KN/m² Regalstiellast = 45 KN/m² Mezzanine / Lagerbühne belastbar mit 500 kg/m²
Perfekte Raumhöhen: Lichte Höhe Halle (unter Lagerbühne): 3 m Lichte Höhe Lagerbühne: 2,8 - 3,09 m
Moderne & komfortable Ausstattung: Separates WC mit Waschbecken sowie eine separate Dusche für maximalen Komfort. Fußbodenheizung in Büro & Halle (Pallet-Heizung) für angenehme Temperaturen das ganze Jahr über. Effiziente LED-Beleuchtung: Büro: 500 lux Halle: 200 lux
Top-Technik für Ihre digitale Zukunft: Eigener Netzwerkschrank je Halle. Glasfaseranschluss mit direkter Verbindung zum zentralen Serverschrank. CAT7-Verkabelung vom Netzwerkschrank ins Büro für eine schnelle & sichere Datenübertragung.
Optimale Flächenverteilung: Lagerfläche Erdgeschoss: ca. 130 m² Büroeinheit (EG) für ca. 2 Arbeitsplätze: ca. 22 m² Mezzaninfläche/Lagerbühne als zusätzliche Fläche: ca. 125 m²
Grundrisse
Grundrisse
1 / 1
Virtueller Rundgang
3D tour
Realisiere Dein Projekt
Bausubstanz und Energie
Möchtest du Details zum Energieverbrauch?
Baujahr2023
Zustand der Immobilieneuwertig
EnergieträgerPellets
Mietkosten
Nettomiete
1.860 €
Nebenkosten
180 €
Provision für Mieter
provisionsfrei
Kaution
keine Angabe
Weitere Preisinformationen
2 Stellplätze
Lage
Lechenich, Erftstadt (50374)
Der Anbieter hat die genaue Adresse nicht freigegeben
Beste Lage für Ihr Business!
Unser Metroloq Unternehmerpark an der Otto-Hahn-Allee in Erftstadt befindet sich in einer ausgezeichneten Lage Mitten im Herzen des Rhein-Erft-Kreis und bietet sowohl für etablierte Unternehmen als auch für aufstrebende Betriebe ideale Bedingungen. Die Stadt selbst ist ein aufstrebender Wirtschaftsstandort mit einer hervorragenden Anbindung an das regionale und überregionale Verkehrsnetz.
Der Gewerbepark ist strategisch gut erreichbar, sowohl für den Individualverkehr als auch für den Gütertransport. In unmittelbarer Nähe zur A61 (Autobahnabfahrt "Erftstadt") profitieren Unternehmen von der schnellen Verbindung in Richtung Köln, Bonn und Düsseldorf. Diese zentrale Lage ermöglicht es, die großen Ballungszentren der Region im Handumdrehen zu erreichen - ideal für Unternehmen, die auf ein effizientes Logistiknetz angewiesen sind. Zusätzlich liegt der Standort in direkter Nähe zur B265, die eine weitere schnelle Verbindung zu den umliegenden Städten und Gewerbegebieten bietet. Der Erftstädter Bahnhof ist nur wenige Minuten entfernt und ermöglicht eine schnelle Anbindung an den öffentlichen Nahverkehr, sodass auch Mitarbeiter und Kunden bequem den Standort erreichen können.
Die Otto-Hahn-Allee ist ein etablierter Gewerbestandort mit hoher Ansiedlungsdichte an Unternehmen unterschiedlichster Branchen. Im direkten Umfeld finden sich zahlreiche Einkaufsmöglichkeiten, Gastronomiebetriebe und Dienstleister wieder, die den Alltag für Ihr Unternehmen und Mitarbeiter erleichtern.
Für Unternehmen aus den Bereichen Produktion, Handel und Logistik bietet die Lage zusätzlich den Vorteil einer regionalen Nähe zu wichtigen Zulieferern und Partnern, während die ländliche Umgebung gleichzeitig eine ruhige Arbeitsatmosphäre ermöglicht. Die Region ist bekannt für ihre wirtschaftliche Vielseitigkeit, insbesondere in den Bereichen Industrie, Technologie und Handel. Auch die Kooperationen zwischen Unternehmen innerhalb des Gewerbeparks schaffen ein positives Netzwerk, das Unternehmen zusätzlich unterstützt und Synergien ermöglicht.
Unser Metroloq Unternehmerpark Erftstadt bietet eine perfekte Kombination aus zentraler Lage, guter Verkehrsanbindung und einem wirtschaftlich dynamischen Umfeld. Sichern Sie sich jetzt Ihre neue Gewerbefläche und kontaktieren Sie uns noch heute für eine Besichtigung!
Weitere Informationen
Energiepass
Energieausweis wird bei Besichtigung vorgelegt.
Stichworte
Stellplatz vorhanden, Lagerfläche: 278,00 m², Gesamtfläche: 278,00 m², Hallenhöhe: 7,50 m, Bundesland: Nordrhein-Westfalen