Version: 8.25.1Navigation überspringen
ohne-makler.net - Immobilien selbst vermarkten
2.150 €
3 Zimmer  •  95 m²  •  3. Geschoss

Wohnung zur Miete
2.150 €
3 Zimmer  •  95 m²  •  3. Geschoss

Business-Apartment mit separatem Office

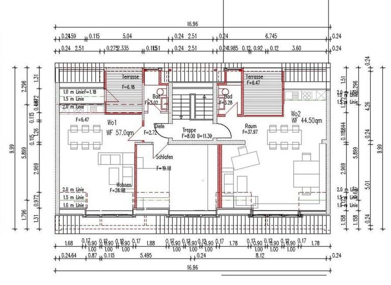
Zur Vermietung steht ein hochwertiges Nutzungskonzept bestehend aus zwei direkt nebeneinanderliegenden Dachgeschosseinheiten mit einer Gesamtfläche von ca. 101,5 m².
Die größere Einheit (ca. 57 m²) bietet ein voll möbliertes 2-Zimmer-Apartment mit separatem Schlafzimmer und Terrasse.
Die angrenzende Einheit (ca. 44,5 m²) eignet sich ideal als separates Büro oder Studio - ebenfalls mit eigener Terrasse.
Wohnen und Arbeiten sind klar getrennt und dennoch optimal kombiniert.
Dieses Konzept richtet sich insbesondere an Führungskräfte, Projektleiter oder Unternehmen mit temporärem Bedarf.

Merkmale

  • Bezug: sofort
  • Dachgeschoss, 3. Geschoss
  • Einbauküche
  • Bad mit Dusche
  • Balkon
Dachterrasse, Duschbad, Einbauküche

Bemerkungen:
.Zwei separate Eingänge
.Zwei Terrassen
.Zwei voll ausgestattete Küchen
.Zwei Bäder mit Dusche
.Voll möbliert
.Highspeed-Internet bis 1 Gbit/s verfügbar
.Flexible Nutzung (Wohnen & Arbeiten)

Grundrisse

Grundrisse
1 / 1

Realisiere Dein Projekt

Bausubstanz und Energie

Möchtest du Details zum Energieverbrauch?info_energy_calculation-icon
  • Zustand der ImmobilieGepflegt
  • HeizungsartZentralheizung
  • EnergieträgerFernwärme
MediumRectangleTop

Mietkosten

Kaltmiete
22,63 €/m²
2.150 €
Kaution
keine Angabe
Weitere Preisinformationen
Nettokaltmiete: 2.150,00 EUR

Lage

address-icon
Poststr. 36InnenstadtWolfsburg (38440)
Zentrale Lage in Wolfsburg mit hervorragender Anbindung.
Innenstadt, Hauptbahnhof und Volkswagen sind in wenigen Minuten erreichbar.
Besichtigung nach Absprache.
Infrastruktur (im Umkreis von 5 km):
Apotheke, Lebensmittel-Discount, Allgemeinmediziner, Öffentliche Verkehrsmittel

Weitere Informationen

Sonstiges Heizungsart: Zentralheizung
Energieträger: Fernwärme
Energieausweis nicht vorhanden

Ab 2.150 € monatlich (All-in).
Flexible Mietdauer, Mindestmietzeit 3 Monate.
Bei gewerblicher Nutzung kann die Miete zzgl. gesetzlicher MwSt. ausgewiesen werden.

Makleranfragen nicht erwünscht. Nach § 7 UWG sind unaufgeforderte Kontaktaufnahmen durch Makler ohne ausdrückliche Einwilligung des Empfängers verboten!

ohne-makler (OM) ist weder Anbieter noch Vermittler der Immobilie. OM betreibt eine Plattform für Immobilieneigentümer, die unter anderem die gleichzeitige Veröffentlichung einzelner Inserate auf mehreren Immobilienportalen ermöglicht. Die Inhalte dieser Inserate werden ausschließlich von Dritten verantwortet. Für die Richtigkeit, Vollständigkeit oder Rechtmäßigkeit der Angaben übernimmt OM keine Haftung. Hinweise auf mögliche Rechtsverstöße können jederzeit gemeldet werden und werden nach Prüfung umgehend bearbeitet. Stichworte Nutzfläche: 6,00 m², Anzahl der Schlafzimmer: 1, Anzahl der Badezimmer: 2, Anzahl Balkone: 1, Bundesland: Niedersachsen, 3 Etagen

Weitere Services

Lust auf eine Besichtigung?
Eine Frage zur Immobilie?
Mit einer persönlichen Nachricht hast du bessere Chancen auf eine Antwort.
Mit der Nutzung der oben angegebenen Telefonnummer oder durch Klicken auf „Kontaktieren“ akzeptierst Du die Allgemeinen Nutzungsbedingungen, denen Du jederzeit widersprechen kannst. Weitere Informationen zum Datenschutz

Über den Anbieter

Humboldtstr. 25 A, 21509 Glinde
partner badge
Partnerschaft
Angebot von Marcus HertzschDein Kontakt
Keine Telefonnummer hinterlegt
Keine Telefonnummer hinterlegt
Online-ID: 26HGKAXTGV7P
Referenznummer: 444992
ohne-makler.net - Immobilien selbst vermarkten
ohne-makler.net - Immobilien selbst vermarkten
Mit einer persönlichen Nachricht hast du bessere Chancen auf eine Antwort.
Mit der Nutzung der oben angegebenen Telefonnummer oder durch Klicken auf „Kontaktieren“ akzeptierst Du die Allgemeinen Nutzungsbedingungen, denen Du jederzeit widersprechen kannst. Weitere Informationen zum Datenschutz
MediumRectangleTop
MediumRectangleBottom
MediumRectangleTop
Wie zufrieden bist du mit dieser Seite (nicht mit der Immobilie selbst)?