
Breitwieser Roth GmbH
089 ···
Nr. anzeigenPreise & Kosten
Provision für Mieter
provisionsfrei
Abschreibung/Anlage
Denkmalschutz-Afa
Warum sehe ich diese Anzeige? – Du siehst diese Anzeige basierend auf Ihrer Navigation auf unserer Website und den Suchkriterien, die du verwendet hast.
Lage
- zwischen Donnersberger Brücke und Hirschgarten
- S-Bahn Hirschgarten oder Tram-Station
- ca. 5 Gehminuten bis zur Friedenheimer Brücke mit einigen Geschäften für den täglichen Bedarf wie z.B. ein Supermarkt, eine Apotheke oder eine Bäckerei
- ein paar Restaurants und Cafés befinden sich im fußläufigen Umfeld
Büro-/Praxisfläche
Kategorie
Bürofläche
Baujahr
2007
Bezug
nach Vereinbarung
Energie & Heizung
Warum sehe ich diese Anzeige? – Du siehst diese Anzeige basierend auf Ihrer Navigation auf unserer Website und den Suchkriterien, die du verwendet hast.
Wärme
Strom
Energieausweistyp
Verbrauchsausweis
Gebäudetyp
Nicht-Wohngebäude
Gültigkeit
bis 10.02.2035
Endenergieverbrauch (Wärme)
99,00 kWh/(m²·a)
Endenergieverbrauch (Strom)
42,00 kWh/(m²·a)
Weitere Energiedaten
Energieträger
Öl
Heizungsart
Zentralheizung
Details
Objektbeschreibung
Kurzbeschreibung
Attraktives Büro am Hirschgarten
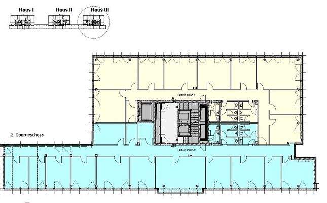
Objekt
Das attraktive Geschäftshaus bestehend aus 3 Gebäudeteilen befindet sich in unmittelbarer Nähe zum Hirschgarten. Die einzelnen Häuser sind mit vollverglasten Brücken miteinander verbunden, wodurch sich kleine, begrünte Innenhöfe ergeben. Über einen...
Ausstattung
- grauer Teppichboden, neuer Bodenbelag nach Absprache
- in die Decke integrierte, arbeitsplatzgerechte Beleuchtung
- CAT7-Verkabelung in Bodenkanälen (muss eventuell auf Ihren Bedarf angepasst werden, gegen Ablöse)
- Personen- und Lastenlift im Haus
- schöne Raumhöhe von ca. 3,20 m
- außen liegender...
Weitere Informationen
Sonstiges
- Stellplätze in der Tiefgarage (à € 80,00 zzgl. gesetzl. MwSt.)
- 5 öffentliche E-Ladesäulen direkt vor dem Gebäude
- Archivflächen auf Anfrage
- Gewerbesteuerhebesatz von 490 %
- ein Energieverbrauchsausweis (gültig bis 10. Februar 2035) liegt vor, der Verbrauchskennwert für Wärme beträgt 99...
Anbieter der Immobilie
Online-ID: 225x754
Referenznummer: 8891
Finde Angebote wie dieses
Hier geht es zu unserem Impressum, den Allgemeinen Geschäftsbedingungen, den Hinweisen zum Datenschutz und nutzungsbasierter Online-Werbung.