Version: 8.25.1Navigation überspringen
9.950 €
Immowelt logo

Gastronomie/Hotel zur Miete • provisionsfrei
9.950 €

Direkt vom Eigentümer: Freizeit- oder Sport-Center an frequentierter Hauptstraße zu vermieten

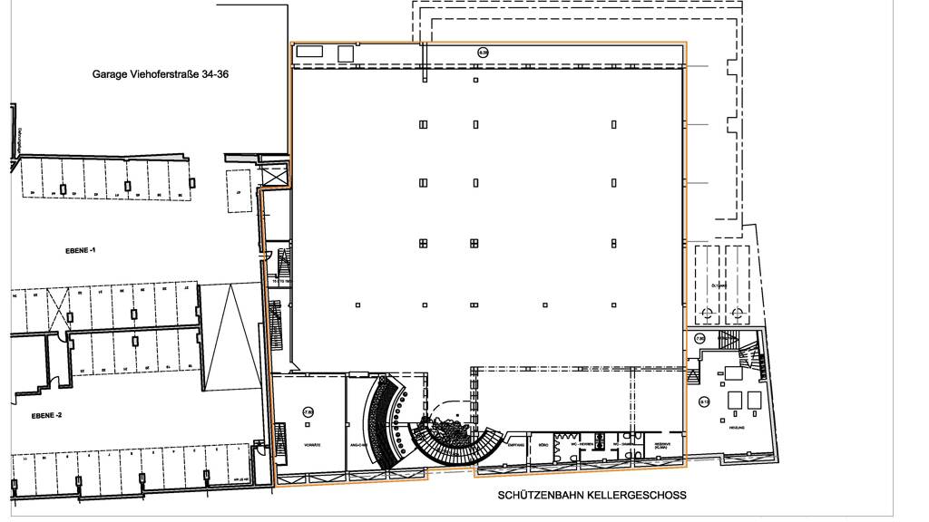
Wir präsentieren Ihnen eine attraktive Fläche im Untergeschoss, die durch einen separaten Erdgeschossbereich ergänzt wird. Diese Immobilie bietet Ihnen einzigartige Gestaltungsmöglichkeiten und vielseitige Nutzungsperspektiven, ideal geeignet für ein Fitnesscenter, Großgastronomie oder ähnliche Konzepte.

Die Fläche ist komplett entkernt, was Ihnen die Freiheit gibt, die Räumlichkeiten ganz nach Ihren individuellen Vorstellungen und Bedürfnissen zu gestalten. Dank dieser Ausstattungsfreiheit können Sie Ihr Geschäftserlebnis von Grund auf neu definieren und eine Umgebung schaffen, die optimal zu Ihrem Konzept passt.

Ein wesentlicher Vorteil dieser Immobilie ist der direkte Anschluss an das angrenzende Parkhaus, der Ihnen und Ihren Kunden einen bequemen Zugang ermöglicht.

Merkmale

  • Bezug: Nach Vereinbarung
  • 210 Stellplätze: 210 Außen-Stellplätze
- vielfältige Nutzungsmöglichkeiten, wie z.B. als Fitnesscenter, Großgastronomie etc.
- komplett entkernte Fläche
- direkter Anschluss ans Parkhaus

Grundrisse

Verschaffe dir einen genauen Überblick über die Raumaufteilung.selection_property_house-icon

Realisiere Dein Projekt

Bausubstanz und Energie

Möchtest du Details zum Energieverbrauch?info_energy_calculation-icon
  • Baujahr1964
Immowelt logo

Mietkosten

Kaltmiete
9.950 €
Nebenkosten
8.000 €
Provision für Mieter
provisionsfrei
Kaution
50.000 €
Weitere Preisinformationen
210 Stellplätze

Lage

address-icon
Schützenbahn 31StadtkernEssen (45127)
Direkt im Citykerngebiet an frequentierter Ein- und Ausfallstraße (Schützenbahn) mit Anschluss an die Autobahnen A 40, A 52, A 2 u. A 42. Gegenüber befindet sich das Essener Rathaus, ein Großhotel (Welcome Hotel) und in ca. 100 m Entfernung das soeben neugestaltete City-Center.

Besonders hervorzuheben ist das direkt angeschlossene Parkhaus Schützenbahn 31.

Weitere Informationen

Sonstiges Die Vermietung erfolgt direkt durch den Eigentümer und ist provisionsfrei.

Energieausweis: in Erstellung Stichworte Gesamtfläche: 2.263,00 m², 2 Etagen

Weitere Services

Lust auf eine Besichtigung?
Eine Frage zur Immobilie?
Mit einer persönlichen Nachricht hast du bessere Chancen auf eine Antwort.
Mit der Nutzung der oben angegebenen Telefonnummer oder durch Klicken auf „Kontaktieren“ akzeptierst Du die Allgemeinen Nutzungsbedingungen, denen Du jederzeit widersprechen kannst. Weitere Informationen zum Datenschutz

Über den Anbieter

Sendlinger Straße 47, 80331 München
partner badge
Partnerschaft
Herr Elvis Saletovic
Herr Elvis SaletovicDein Kontakt
Online-ID: 23D1GUS9UTJA
Referenznummer: 11536_100#htIX7e
Terrania GmbH
title
Terrania GmbH
Mit einer persönlichen Nachricht hast du bessere Chancen auf eine Antwort.
Mit der Nutzung der oben angegebenen Telefonnummer oder durch Klicken auf „Kontaktieren“ akzeptierst Du die Allgemeinen Nutzungsbedingungen, denen Du jederzeit widersprechen kannst. Weitere Informationen zum Datenschutz
Wie zufrieden bist du mit dieser Seite (nicht mit der Immobilie selbst)?