
Jürgen Hart Immobilien
Herr Jürgen Hart
097 ···
Nr. anzeigenPreise & Kosten
Kaution
2.940
Provision für Mieter
3 Bruttomonatsmieten zzgl. MwSt.
Warum sehe ich diese Anzeige? – Du siehst diese Anzeige basierend auf Ihrer Navigation auf unserer Website und den Suchkriterien, die du verwendet hast.
Lage
Gewerbegebiet Röthlein mit sehr guter Verkehrsanbindung.
Büro-/Praxisfläche
Baujahr
1990
Bezug
sofort
Derzeitige Nutzung
frei
Energie & Heizung
Warum sehe ich diese Anzeige? – Du siehst diese Anzeige basierend auf Ihrer Navigation auf unserer Website und den Suchkriterien, die du verwendet hast.
Weitere Energiedaten
Energieträger
Öl
Heizungsart
Zentralheizung
Details
Objektbeschreibung
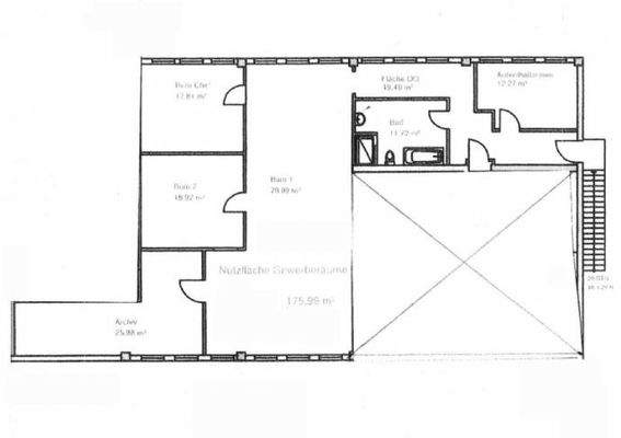
Die großzügige Bürofläche befindet sich im Gewerbegebiet von Röthlein im 1. OG eines Gewerbeobjektes.
Sie bietet 3 helle Büroräume, einen Archivraum sowie ein voll ausgestattetes Bad und eine mit Elektrogeräten eingerichtete Wohnküche als Aufenthaltsraum.
Es stehen 2 Stellplätze direkt vorm Objekt zur Verfügung...
Anbieter der Immobilie

Jürgen Hart Immobilien
Walther-v.-d.-Vogelweide-Str. 19, 97422 Schweinfurt
Online-ID: 228625c
Finde Angebote wie dieses
Hier geht es zu unserem Impressum, den Allgemeinen Geschäftsbedingungen, den Hinweisen zum Datenschutz und nutzungsbasierter Online-Werbung.