Version: 8.25.1Navigation überspringen
11,30 €
158 m² Bürofläche  •  teilbar ab 158 m²
Immowelt logo

Bürofläche zur Miete • provisionsfrei
11,30 €
/m²
158 m² Bürofläche  •  teilbar ab 158 m²

Renovierte Büroräume in beliebtem Südviertel | gehobene Ausstattung | Stellplätze

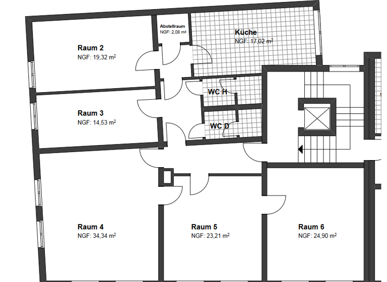
Der Haupteingang des Gebäudes liegt auf der ruhigen Gärtnerstraße unweit der Kronprinzenstraße. Die Büroräume werden durch das zentrale Treppenhaus mit Aufzug erreicht. Durch eine weiße Tür betreten Sie den mit Laminat mit heller Holzoptik ausgelegten Eingangsbereich. Die Wände werden weiß gestrichen übergeben. Im Eingangsbereich befindet sich auf der linken Seite Platz für eine Rezeption. Hier befinden sich auch die hell gefliesten Damen- und Herrentoiletten, jeweils mit 2 Kabinen und Fenstern. Entlang des Flurs befinden sich links und rechts 10 Büroräume, die meisten mit einer Größe von ca. 4,90 m² x 4,40 m² (~ 21 m²), der größte Raum hat 40 m². Teilweise sind die Büroräume durch interne Türen miteinander verbunden. Die Büroräume sind auch mit Laminat in heller Holzoptik und weißen Wänden ausgestattet. Die vom Flur links liegenden Büros blicken auf den hellen Innenhof Richtung Westen, die rechts liegenden auf die Gärtnerstraße Richtung Osten. Eine Küche mit Küchenzeile und ausreichend Platz für eine Sitzgelegenheit gehört ebenfalls zu den Büroräumen. Es stehen 1 Parkplatz auf dem Innenhof, der von der Gärtnerstraße durch eine Hofdurchfahrt erreicht wird, zur Verfügung. Ein Keller von ca. 11,5 m² rundet das Angebot ab. Die Gebäudeüberwachung sowie der Winterdienst sind organisiert und werden über die Nebenkosten abgerechnet.

Derzeit stehen die folgenden Flächen zur Disposition:

2. OG: 158 m²

Merkmale

  • frei ab sofort
  • Außen-Stellplatz
. Bodenbelag: Laminat-, Vinylboden
. Verkabelung: CAT-5-Verkabelung
. Sonnenschutz: außenliegend, elektrisch
. Teeküche: voll ausgestattet
. Beleuchtung: Rasterleuchten
. Aufzug: Personenaufzug
. Heizungsart: Zentralheizung
. Letzte Modernisierung: 2020

Die Ausstattung ist flexibel und kann bei Bedarf individuell an den Mieter angepasst werden!

Grundrisse

Grundrisse
1 / 1

Realisiere Dein Projekt

Bausubstanz und Energie

Möchtest du Details zum Energieverbrauch?info_energy_calculation-icon
  • Baujahr1972/2023
Immowelt logo

Mietkosten

Warmmiete
1.970 €
Nettomiete
11,30 €/m²
9,50 €
Nebenkosten
3 €
Zusätzliche Kosten
Heizkosten
150 €
Provision für Mieter
provisionsfrei
Kaution
keine Angabe
Weitere Preisinformationen
Nettokaltmiete: 9,50 EUR

Lage

address-icon
SüdviertelEssen (45128)
Der Anbieter hat die genaue Adresse nicht freigegeben
Das Büro befindet sich im beliebten Südviertel, der Hauptbahnhof ist in 6 Minuten zu Fuß oder mit der Straßenbahn bzw. Bus mit einem Stopp erreichbar. Die A40 ist nah, ebenso die Auffahrt zur A52 Richtung Düsseldorf. Die Straßenbahnhaltestelle "Kronprinzenstraße" ist 100m entfernt.

Hotels in der Nähe: Sheraton Hotel, Intercity Hotel, Mercure Hotel, ibis Hotel, s-elect Hotel Handelshof

Bedeutende Unternehmen in der Büromarktzone: Santander Consumer Bank AG, Hapag-Lloyd Reisebüro, Philharmonie, Innogy, PWC

Weitere Informationen

Sonstiges Es gelten ausschließlich unsere AGB (www.ruhr-real.de/agb). Wir möchten Sie darauf hinweisen, dass die Angaben ausschließlich auf den uns vom Eigentümer übermittelten Unterlagen und Informationen basieren. Für Richtigkeit und Vollständigkeit übernehmen wir keine Gewähr. Zwischenvermietung vorbehalten.

Weitere Services

Lust auf eine Besichtigung?
Eine Frage zur Immobilie?
Mit einer persönlichen Nachricht hast du bessere Chancen auf eine Antwort.
Mit der Nutzung der oben angegebenen Telefonnummer oder durch Klicken auf „Kontaktieren“ akzeptierst Du die Allgemeinen Nutzungsbedingungen, denen Du jederzeit widersprechen kannst. Weitere Informationen zum Datenschutz

Über den Anbieter

Holsterhauser Platz 2, 45147 Essen
partner badge
6 Jahre Partnerschaft
Herr Samuel KruseDein Kontakt
Online-ID: 25R6BB9826NJ
Referenznummer: 1342/E5
RUHR REAL GmbH
RUHR REAL GmbH
Mit einer persönlichen Nachricht hast du bessere Chancen auf eine Antwort.
Mit der Nutzung der oben angegebenen Telefonnummer oder durch Klicken auf „Kontaktieren“ akzeptierst Du die Allgemeinen Nutzungsbedingungen, denen Du jederzeit widersprechen kannst. Weitere Informationen zum Datenschutz
Wie zufrieden bist du mit dieser Seite (nicht mit der Immobilie selbst)?