Version: 8.24.0Navigation ĂĽberspringen
105.000 €
1,5 Zimmer  â€˘  38,8 m²  â€˘  12. Geschoss
Immowelt logo

Wohnung zum Kauf
105000 €
2.703 €/m²
1,5 Zimmer  â€˘  38,8 m²  â€˘  12. Geschoss

Starke Rendite: Vermietete 1,5 Zimmer Wohnung in guter Wohnlage

Diese gepflegte 1,5-Zimmer-Wohnung befindet sich im 12. Obergeschoss eines gut verwalteten Mehrparteienhauses in Lüneburg. Mit einer Wohnfläche von ca. 38,84 m² bietet sie eine kompakte, gut geschnittene Raumaufteilung und eignet sich ideal als Kapitalanlage.

Die Wohnung ist seit 2014 zuverlässig vermietet und präsentiert sich in einem ordentlichen Zustand. Der Wohn- und Schlafbereich lässt sich flexibel möblieren und wird durch große Fensterflächen angenehm belichtet. Die Küche ist mit einer funktionalen Einbauküche ausgestattet und bietet alle wichtigen Elemente für den täglichen Bedarf.

Ein weiterer Pluspunkt ist der Balkon, der einen weiten Ausblick über die Umgebung ermöglicht und zusätzlichen Wohnkomfort schafft. Das Badezimmer ist zweckmäßig gestaltet und entspricht dem Gesamteindruck einer gut gepflegten Bestandswohnung.

Das Gebäude wird durch einen Hausmeisterservice betreut und befindet sich daher in einem stets gepflegten Zustand. Die Wohneinheiten des Hauses gehören ausschließlich privaten Eigentümern, was zu einer angenehmen und ruhigen Hausgemeinschaft beiträgt. Neben dem vorhandenen Aufzug stehen den Bewohnern ein Fahrradkeller sowie ein optional nutzbarer Waschkeller zur Verfügung. Zusätzlich befindet sich im Flur ein Müllschlucker, der eine komfortable und zeitsparende Entsorgung ermöglicht.

Insgesamt bietet das Objekt eine solide, langfristige Vermietungssituation in Verbindung mit einer attraktiven Wohnlage und einer praktischen, auf den Alltag ausgerichteten Ausstattung.

Merkmale

  • vermietet
  • 12. Geschoss
  • EinbaukĂĽche
  • Kelleranteil
  • Bodenbelag: Laminat
- EinbaukĂĽche
- Balkon
- Dachboden

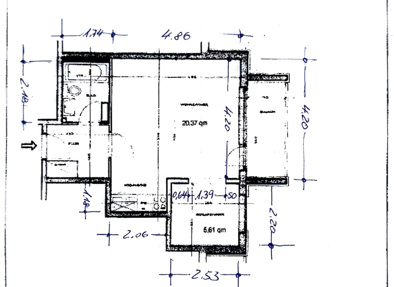
Grundrisse

Grundrisse
1 / 1

Realisiere Dein Projekt

Bausubstanz und Energie

Der Anbieter hat keine Informationen zum Energieverbrauch bereit gestellt.
  • Baujahr1971
  • Zustand der ImmobilieGepflegt
Immowelt logo

Preisdetails

Kaufpreis
105000 €
2.703,40 €/m²
Hausgeld
143.28 €
Provision für Käufer
3% zzgl. MwSt.
Geschätzte Gesamtkosten
115.500 €1
Kaufpreis
105.000 €
Notarkosten (1,5%)
1.575 €
Grunderwerbsteuer (5%)
5.250 €
Provision für Käufer (3%)
3.150 €
Grundbucheintrag (0,5%)
525 €
1Der angezeigte Wert ist eine automatisch berechnete Schätzung von immowelt.
2Bei den Angaben handelt es sich um ortsübliche Werte. Individuelle Kosten können abweichen.

Lage

address-icon
Kaltenmoor, Lüneburg (21337)
Der Anbieter hat die genaue Adresse nicht freigegeben
Das Objekt befindet sich im südöstlichen Stadtgebiet von Lüneburg und liegt in einem gepflegten, ruhig gewachsenen Wohnumfeld. Das Viertel zeichnet sich durch eine angenehme Mischung aus Einfamilienhäusern, kleineren Mehrfamilienhäusern sowie begrünten Freiflächen aus. Die Straße selbst ist geprägt von wenig Durchgangsverkehr und vermittelt dadurch eine ruhige Wohnatmosphäre.

Die Anbindung an das Lüneburger Stadtzentrum ist sehr gut: Über die nahegelegenen Hauptverkehrswege sowie öffentliche Verkehrsmittel lassen sich Innenstadt, Bahnhof und wichtige Einrichtungen des täglichen Bedarfs in wenigen Minuten erreichen. Kindergärten, Schulen, Einkaufsmöglichkeiten und medizinische Versorgung befinden sich ebenfalls in komfortabler Entfernung.

Die Nähe zu Grün- und Naherholungsflächen bietet weitere Wohnqualität. Spazierwege, kleinere Parks und die naturnahe Umgebung laden zu Freizeitaktivitäten unmittelbar vor der Haustür ein.

Insgesamt handelt es sich um eine attraktive, ruhige und gleichzeitig gut angebundene Lage, die sowohl den täglichen Bedarf als auch ein angenehmes Wohnumfeld ideal miteinander verbindet.

Weitere Informationen

Sonstiges Haben Sie Interesse an der schönen Wohnung? So kontaktieren Sie uns gerne direkt unter 04131 - 22 30 793 oder senden uns eine Mail an info@diemaackler.de. Wir freuen uns auf Ihre Kontaktaufnahme.

Wir weisen darauf hin, dass sämtliche Objektangaben und Angebotsunterlagen vom Eigentümer stammen. Trotz sorgfältiger Prüfung können wir keine Gewähr für die Richtigkeit der Daten übernehmen. Ebenso wird keine Haftung für bestimmte Größe, Güte und Beschaffenheit des Objektes übernommen.

Weitere Services

Lust auf eine Besichtigung?
Eine Frage zur Immobilie?
Nachricht hinzufĂĽgen
Mit der Nutzung der oben angegebenen Telefonnummer oder durch Klicken auf „Kontaktieren“ akzeptierst Du die Allgemeinen Nutzungsbedingungen, denen Du jederzeit widersprechen kannst. Weitere Informationen zum Datenschutz

Ăśber den Anbieter

Die Maackler OHG
Die Maackler OHGMaklerbĂĽro
LĂĽner Rennbahn 9, 21339 LĂĽneburg
partner badge
Partnerschaft
Herr Jens KraĂźmannDein Kontakt
Keine Telefonnummer hinterlegt
Keine Telefonnummer hinterlegt
Online-ID: 2ncax5n
Referenznummer: 1002022097#ZKcNYr
Die Maackler OHG
Die Maackler OHG
Bewertung: 5 von 5 Sternen
Nachricht hinzufĂĽgen
Mit der Nutzung der oben angegebenen Telefonnummer oder durch Klicken auf „Kontaktieren“ akzeptierst Du die Allgemeinen Nutzungsbedingungen, denen Du jederzeit widersprechen kannst. Weitere Informationen zum Datenschutz
Wie zufrieden bist du mit dieser Seite (nicht mit der Immobilie selbst)?