

T.J.Terv Bt
Frau Hajnalka Kis
003 ···
Nr. anzeigenPreise & Kosten
Provision für Käufer
provisionsfrei
Lage
Im Herzen der bekannten Bäderstadt Héviz befindet sich dieses hübsche Mehrfamilienhaus. Alle wichtigen Einrichtungen wie das Thermalbad, schöne Geschäfte sowie nette Cafés und Restaurants können Sie von hier aus bequem zu Fuss erreichen. Trotz seiner zentralen Lage finden Sie hier Ruhe und haben das Gefühl in einer ländlichen...
Das Renditeobjekt
Kategorie
Mehrfamilienhaus
Baujahr
1990
Energie & Heizung
Warum sehe ich diese Anzeige? – Du siehst diese Anzeige basierend auf Ihrer Navigation auf unserer Website und den Suchkriterien, die du verwendet hast.
Weitere Energiedaten
Energieträger
Gas
Heizungsart
Zentralheizung
Details
Objektbeschreibung
Objektbeschreibung
Das Apartmenthaus befindet sich in einer ruhigen Gegend, nur wenige Gehminuten von der Thermalbad Hévíz entfernt.
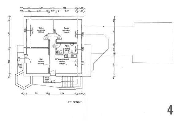
Im Erdgeschoss hat sich der Eigentümer eine größere Wohnung geschaffen, die mit einer kleinen Investition in bis zu 2 Wohnungen umgebaut werden kann.
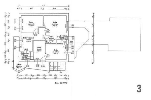
Im ersten Stock gibt es eine...
Weitere Informationen
Stichworte
Zustand: renoviert, gepflegt
Sonstiges/Wohnen: Hobbyraum
Versorgung: Städtische Wasserversorgung, Städtische Stromversorgung
Anbieter der Immobilie
T.J.Terv Bt
Kossuth Lajos str. 99., 8315 Gyenesdiás

Online-ID: 22r6h5u
Referenznummer: 1214
Finde Angebote wie dieses
Hier geht es zu unserem Impressum, den Allgemeinen Geschäftsbedingungen, den Hinweisen zum Datenschutz und nutzungsbasierter Online-Werbung.