

Città Ideale & Prestige S.r.l.
Herr Fabrizio Paganelli
+39 ···
Nr. anzeigenPreise & Kosten
Provision für Käufer
Bitte beachte, das Angebot beinhaltet bei Vertragsabschluss die Zahlung einer Provision. Weitere Informationen erhältst Du vom Anbieter.
Die Wohnung
Kategorie
Penthouse
Wohnungslage
3. Geschoss (Dachgeschoss)
Derzeitige Nutzung
frei
Wohnanlage
Energie & Heizung
Warum sehe ich diese Anzeige? – Du siehst diese Anzeige basierend auf Ihrer Navigation auf unserer Website und den Suchkriterien, die du verwendet hast.
Energieausweistyp
Bedarfsausweis
Gebäudetyp
Wohngebäude
Effizienzklasse
A+
Endenergiebedarf
10,00 kWh/(m²·a)
Weitere Energiedaten
Energieträger
Gas
Heizungsart
Etagenheizung
Details
Objektbeschreibung
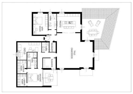
In Verbania Suna, im Zentrum der charakteristischen Stadt mit Blick auf den Lago Maggiore, 100 Meter vom Seeufer und den renommierten Restaurants oder Aperitifs entfernt, bieten wir dieses schöne Penthouse in einem Neubau und in der Endphase des Baus zum Verkauf an.
Die Wohnung liegt im dritten und letzten Stock, 250 qm...
Weitere Informationen
Stichworte
Sonstiges/Wohnen: Hobbyraum
Versorgung: Städtische Wasserversorgung, Städtische Stromversorgung
Anbieter der Immobilie
Città Ideale & Prestige S.r.l.
Corso San Babila, 20122 Milano

Online-ID: 22t2k58
Referenznummer: AA.3640-P40
Finde Angebote wie dieses
Hier geht es zu unserem Impressum, den Allgemeinen Geschäftsbedingungen, den Hinweisen zum Datenschutz und nutzungsbasierter Online-Werbung.