
Saskia Stefanec
Frau Saskia Stefanec
017 ···
Nr. anzeigenPreise & Kosten
Provision für Käufer
provisionsfrei
Das Haus
Geschosse
2 Geschosse
Baujahr
2026
Energie & Heizung
Warum sehe ich diese Anzeige? – Du siehst diese Anzeige basierend auf Ihrer Navigation auf unserer Website und den Suchkriterien, die du verwendet hast.
Energieausweistyp
Bedarfsausweis
Gebäudetyp
Wohngebäude
Baujahr laut Energieausweis
2026
Wesentliche Energieträger
Strom
Effizienzklasse
A+
Endenergiebedarf
19,00 kWh/(m²·a)
Weitere Energiedaten
Haustyp
KfW 55
Heizungsart
Fußbodenheizung, Luft-/Wasser-Wärmepumpe
Details
Objektbeschreibung
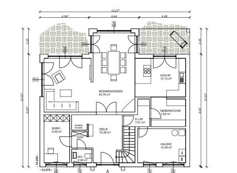
Räume schaffen und Freiräume ermöglichen, dieser Aufgabe stellten sich unsere Architekten bei der Entwicklung des Massivhauses Creativ Sun 211 Edition.
Offener und zugleich strukturierter kann ein Grundriss kaum sein. Über die großzügige Diele erreicht man einen über zwei Stockwerke geöffneten Wohnraum, der Freiheit in...
Ausstattung
Der angegebene Kaufpreis bezieht sich ausschließlich auf das Haus gemäß der Bau - und Leistungsbeschreibung. Das vorgesehene Grundstück ist lediglich ein Beispiel und muss separat vom Käufer erworben werden. Beachten Sie bitte, dass zusätzlich Kosten für das Grundstück sowie Baunebenkosten anfallen. Bei Bedarf unterstützen...
Weitere Informationen
Inklusivleistungen
Individualität
Wir planen jedes Haus passgenau auf Ihre Wünsche und Rahmenbedingungen.
Jeder Bauherr ist individuell und unser Anspruch ist es:
'Für jeden den Besten und Wichtigsten Platz der Welt zu schaffen.'
Der Weg zu diesem individuellen Haus ist geprägt von gegenseitigem...
Dokumente
Anbieter der Immobilie
Saskia Stefanec
Dreckhoffsfeld 50a, 59494 Soest
Online-ID: 2ktuk5v
Finde Angebote wie dieses
Hier geht es zu unserem Impressum, den Allgemeinen Geschäftsbedingungen, den Hinweisen zum Datenschutz und nutzungsbasierter Online-Werbung.