

Wohnung zur Miete669 €2 Zimmer • 59,9 m² • frei ab 25.09.2026
669 €
2 Zimmer • 59,9 m² • frei ab 25.09.2026
LANGENROHR III/1, "Betreutes Wohnen (BV)" - geförderte Mietwohnung, 1. OG Top 1.08, 1000/00011991/00001108
Merkmale
- frei ab 25.09.2026
- Stellplatz
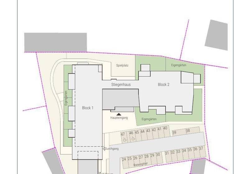
Grundrisse
Grundrisse
1 / 2
Realisiere Dein Projekt
Bausubstanz und Energie
Möchtest du Details zum Energieverbrauch?

- Baujahr2026
- Zustand der Immobilieneuwertig
Mietkosten
Gesamtmiete
669,03 €
Nettokaltmiete
nicht angegeben
Kaution
keine Angabe
Weitere Preisinformationen
Finanzierungsbeitrag: EUR 5,351.00
Lage

Langenrohr (3442)
Der Anbieter hat die genaue Adresse nicht freigegeben
Weitere Informationen
Weitere Services
Lust auf eine Besichtigung?
Eine Frage zur Immobilie?
Über den Anbieter
Siegfried Ludwig-Platz 1, 3100 ST. PÖLTEN
KÖNIG SabrinaDein Kontakt
Online-ID: 25K81EPAMPWI
Referenznummer: 1000/00011991/00001108

Alpenland Gemeinnützige Bau-, Wohn- und Siedlungsgenossenschaft reg.Gen. m.b.H
Wie zufrieden bist du mit dieser Seite (nicht mit der Immobilie selbst)?
