Version: 8.25.1Navigation überspringen
1.781.300 €
287 m²
Immowelt logo

Mehrfamilienhaus zum Kauf • als Kapitalanlage geeignet
1781300 €
6.207 €/m²
287 m²

Neubau Mehrfamilienhaus 3 WE in Kiel-Russee mit Blick ins Grüne

Auf einem bereits vorhandenem Grundstück mit optimaler Süd-West Ausrichtung mit circa 730 m² Grundfläche Eigenland ist ein Mehrfamilienhaus mit 3 Wohneinheiten bereits genehmigt und wartet auf die Umsetzung. Die naturnahe und nur 3 Einheiten umfassende Gebäudegröße garantiert ein erholsamen Lebensmittelpunkt. Das bereits genehmigte Gebäude verfügt über 2 großzügige Vollgeschosse zzgl. Dachgeschoss. Der Weitblick z. T. auf den See "Vorderer Russee" lädt zum verweilen auf den großzügigen Terrassen ein besonders in den oberen Stockwerken.

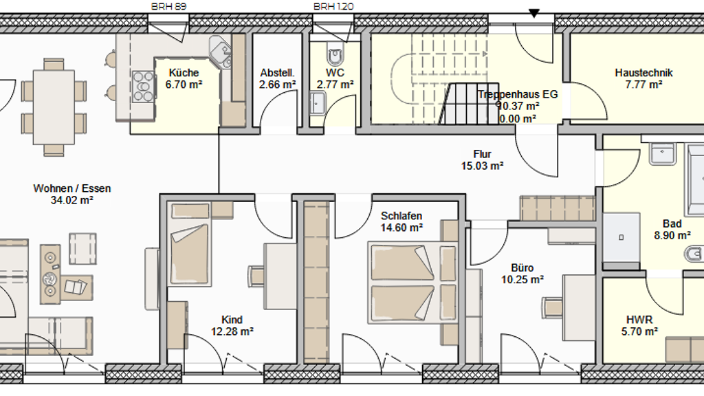
INFO: Gartenwohnung 1 (120 m²)
Im Erdgeschoss kommen Sie über den zentralen Flur in die 4 Zimmer Erdgeschosswohnung mit circa 120 m² Wohnfläche. Nebenräume, Büro, Hauswitschaftsraum und Gäste WC mit Dusche gehören zur Grundrisslösung. Vom Flur gelangen Sie in den großzügigen Wohn- und Essbereich mit offener oder geschlossener Küche, mit weiterem Zugang nach draußen über die Terrasse in Ihren Garten, welcher auf Ihre Gestaltung wartet. Freie Grundrissplanung möglich.

INFO: Wohnung 2 Obergeschoss (67 m²)
Über das Treppenhaus gelangen Sie weiter ins Obergeschoss, dort befindet sich die zweite, 2-Zimmer-Wohnung mit circa 67 m² Wohnfläche und großer Terrasse in den Garten.

INFO: Maisonette Wohnung 2&3 Obergeschoss (100 m²)
Über eine weitere Eingangstür im Treppenhaus-Obergeschoss erreichen Sie dann die Maisonette-Wohnung welche sich das Ober- u. Dachgeschoss teilt, ebenfalls mit großzügiger Dachterrasse. Der luftige Maisonettetrakt mit grandioser Dachterasse im Penthousestil ergibt eine großzügige 3-4 Zimmer Wohnlösung. Neben einem Gäste-WC steht auch ein hier Vollbad in gehobener Markenausstattung zur Verfügung.

Das Gebäude wird nach der neuesten Energieeffizienz errichtet. Wärmepumpe, Belüftungsanlagen, Photovoltaikablanlagen mit Batteriespeicher.
Die hocheffiziente und konventionelle Gebäudehülle sichert zudem die Langlebigkeit Ihres Traumhauses und speichert zudem Energie in den massiven Bauteilen.

Merkmale

Bei der Planung dieses Projektes haben wir bereits ein hochwertiges Paket mit tollen Ausstattungsmerkmalen für Sie zusammengestellt:
- KfW 55 Standard aktuelle GEG
- Luft-/Wasser-Wärmepumpe der Fa. Wolf oder Bosch Junkers
- Photovoltaikanlage 30 kWp mit Batterie-Speicher (Grüner Strom für die Wärmepumpe)
- Bürgschaft der R+V Versicherung zur Fertigstellungssicherheit
- Bauausführung nur durch Handwerksbetriebe aus der Region
- Bauherrenhaftpflichtversicherung
- Bauleistungsversicherung
- Bauschuttentsorgung
- Blower-Door-Test
- Fenster 3-fach verglast
- Erhöhtes Dämmpaket für Eff. Haus 40
- Fußbodenheizung
- Fliesenarbeiten
- Frostsicherer Außenwasseranschluss
- Fundamente und Sohlplatte
- Fußbodenheizung mit Einzelraumregelung im gesamten Haus (EG + DG)
- Gewährleistung nach BGB
- Verblendfassade mit Zierstreifen auf Geschossdeckenhöhe
- Treppenhaus gefliest mit Betontreppe Wohnungseingangstüren RC2 Standard
- Individueller Entwurf Ihres Eigenheims
- Brüstungsgeländer der Dachterrassen mit Glasfeldern
- Marken- und Qualitätsbaustoffe
- KFW 40 Standard wahlweise möglich mit Aufpreis
- Untersohlendämmung
- Qualifizierte Bauleitung
- Endabnahme in Begleitung eines TÜV-zertifizierte Bausachverständigen
- Sanitärinstallation mit hochwertigen Qualitätsprodukten Fa. Villeroy & Boch, Kaldewei, Grohe.
- Massive Bauweise Stein auf Stein inkl. massiven Stahlbetondecken
- Zahlungen abschnittsweise nach Vertragsabschluss und je nach Baufortschitt
- und vieles mehr...

Grundrisse

Grundrisse
1 / 4

Realisiere Dein Projekt

Bausubstanz und Energie

Möchtest du Details zum Energieverbrauch?info_energy_calculation-icon
Immowelt logo

Preisdetails

Kaufpreis
1781300 €
6.206,62 €/m²
Provision für Käufer
Bitte beachte, das Angebot kann bei Vertragsabschluss die Zahlung einer Provision beinhalten. Weitere Informationen erhältst Du vom Anbieter.
Geschätzte Gesamtkosten
1.996.304 €1
Kaufpreis
1.781.300 €
Notarkosten (1,5%)
26.720 €
Grunderwerbsteuer (6,5%)
115.785 €
Provision für Käufer (3,57%)
63.592 €
Grundbucheintrag (0,5%)
8.907 €
1Der angezeigte Wert ist eine automatisch berechnete Schätzung von immowelt.
2Bei den Angaben handelt es sich um ortsübliche Werte. Individuelle Kosten können abweichen.

Lage

address-icon
RusseeKiel (24111)
Der Anbieter hat die genaue Adresse nicht freigegeben
Das Bauvorhaben befindet sich in dem beliebten Kieler Stadteil Russee in direkter Nähe zum See "Vorderer Russee". Die nahe und naturbelassene Umgebung lädt zum verweilen und entspannen ein. Alle Dinge des täglichen Bedarfs befinden sich in direkter Umgebung. Das Grundstück verfügt über eine optimale Süd-West-Ausrichtung und garantiert jeder Wohneinheit lichtdurchflutete Wohnbereiche und beste Voraussetzungen den Garten oder die großzügigen Dachterrassen zu genießen. Die Anbindung über öffentliche Verkehrsmittel ist mit Bus & Bahn ebenfalls in direkter Umgebung. Einkaufszentren wie Rewe-Center oder CITTI-Park in wenigen Fahrminuten zu erreichen.

Weitere Informationen

Sonstiges Für dieses Grundstück und dem Bauvorhaben liegt ein positiver Bauvorbescheid vor. Die Grundrisse können noch verändert und frei geplant werden.

Die hier dargestellten Zeichnungen und Bilder enthalten ggf. Sonderausstattungen und Zusatzleistungen, welche nicht im Leistungsumfang enthalten sind.
Der Kaufpreis versteht sich inkl. Kosten für das Baugrundstück und Baukörper inkl. MwSt.
Das Angebot enthält keine Maler- u. Bodenbelagsarbeiten (ausgenommen in den gefliesten Bereichen lt. der Bauleistungsbeschreibung.), keine Einbauküche.

Weiter beinhaltet dieses Angebot die Baunebenkosten der Hausanschlüsse, Pauschale für Erdbau geschätzt und weitere Baunebenkosten.

Gern erstellen wir Ihnen hierfür eine unverbindliche Aufstellung.
Irrtümer und Zwischenverkauf vorbehalten.

Weitere Services

Lust auf eine Besichtigung?
Eine Frage zur Immobilie?
Nachricht hinzufügen
Mit der Nutzung der oben angegebenen Telefonnummer oder durch Klicken auf „Kontaktieren“ akzeptierst Du die Allgemeinen Nutzungsbedingungen, denen Du jederzeit widersprechen kannst. Weitere Informationen zum Datenschutz

Über den Anbieter

Osterfeld 8 -10, 24649 Fuhlendorf
partner badge
Partnerschaft
Erik StacheDein Kontakt
Online-ID: 25VY9F1DSC51
Referenznummer: 1064 (1/1064)
Metis GmbH
Metis GmbH
Nachricht hinzufügen
Mit der Nutzung der oben angegebenen Telefonnummer oder durch Klicken auf „Kontaktieren“ akzeptierst Du die Allgemeinen Nutzungsbedingungen, denen Du jederzeit widersprechen kannst. Weitere Informationen zum Datenschutz
Wie zufrieden bist du mit dieser Seite (nicht mit der Immobilie selbst)?