
Herimo Immobilien GmbH & Co. KG
Herr Maximilian Holzmann
083 ···
Nr. anzeigenPreise & Kosten
zzgl. Nebenkosten
Provision für Mieter
provisionsfrei
Warum sehe ich diese Anzeige? – Du siehst diese Anzeige basierend auf Ihrer Navigation auf unserer Website und den Suchkriterien, die du verwendet hast.
Lage
Direkt an der Autobahnausfahrt A 93 Regensburg/Süd im neuen V-Markt. Eine RVV-Haltestelle befindet sich direkt am Objekt.
Die Ladenfläche
Kategorie
Verkaufsfläche
Bezug
sofort
Derzeitige Nutzung
frei
Energie & Heizung
Warum sehe ich diese Anzeige? – Du siehst diese Anzeige basierend auf Ihrer Navigation auf unserer Website und den Suchkriterien, die du verwendet hast.
Weitere Energiedaten
Energieträger
Gas
Details
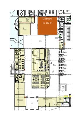
Objektbeschreibung
Die Gewerbefläche mit ca. 180 m² befindet sich in Top Lage im Mall-Bereich des 2021 eröffneten V-Markt Pentling. Die Fläche ist vielseitig nutzbar und soll das bestehende Gesamtkonzept im Objekt (Verbrauchermarkt; KIK; Tedi; Reisebüro; Reinigung; Lotto; Gold Star Schmuck; Friseur; Staubsaugerservice; Subway; Döner, Sparkasse...
Weitere Informationen
Mietobjekt
- ca. 180 m²
- provisionsfrei
- sofort frei
- LED Beleuchtung
- 480 Stellplätze am Objekt
- hohe Kundenfrequenz
Besichtigungstermine
Nach telefonischer Vereinbarung
Dokumente
Anbieter der Immobilie
Herimo Immobilien GmbH & Co. KG
Am Ring 15, 87665 Mauerstetten
Online-ID: 233gl5r
Finde Angebote wie dieses
Hier geht es zu unserem Impressum, den Allgemeinen Geschäftsbedingungen, den Hinweisen zum Datenschutz und nutzungsbasierter Online-Werbung.