




Wohnung zur Miete - Erstbezug902 €1,5 Zimmer • 45 m² • 11. Geschoss
902 €
1,5 Zimmer • 45 m² • 11. Geschoss
Smarte 1,5 Zimmer-Wohnung - Erstbezug in den DC Flats - zu mieten in 1220 Wien
Merkmale
- Bezug: ca. Juli 2026
- teilweise möbliert
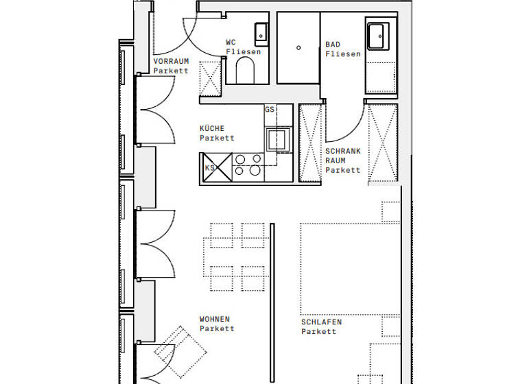
- 11. Geschoss
- Einbauküche
- Bad mit Dusche
- Keller
- Bodenbelag: Parkett
Grundrisse
Grundrisse
1 / 1
Realisiere Dein Projekt
Bausubstanz und Energie
Heizwärmebedarf (HWB)
A
Gesamtenergieeffizienz (fGEE)
A
- Baujahr2025
- Zustand der ImmobilieErstbezug
- EnergieträgerFernwärme
Mietkosten
Gesamtmiete
1.140 €
Nettokaltmiete
20,03 €/m²
902,17 €
Betriebskosten
134,19 €
Umsatzsteuer
103,64 €
Kaution
3420 €
Weitere Preisinformationen
Nettokaltmiete: 902,17 EUR
Lage

Wien (1220)
Der Anbieter hat die genaue Adresse nicht freigegeben
Weitere Informationen
Weitere Services
Lust auf eine Besichtigung?
Eine Frage zur Immobilie?
Über den Anbieter
Weitere Unterlagen
Online-ID: 257IM5IMBL38
Referenznummer: 109256335
Wie zufrieden bist du mit dieser Seite (nicht mit der Immobilie selbst)?




