Version: 8.25.1Navigation überspringen
9,50 €
380 m² Bürofläche  •  teilbar ab 380 m²
Immowelt logo

Büro zur Miete
9,50 €
/m²
380 m² Bürofläche  •  teilbar ab 380 m²

Technologiepark | 230 - 380 m² | klimatisierte Bürflächen | flexible Raumstruktur

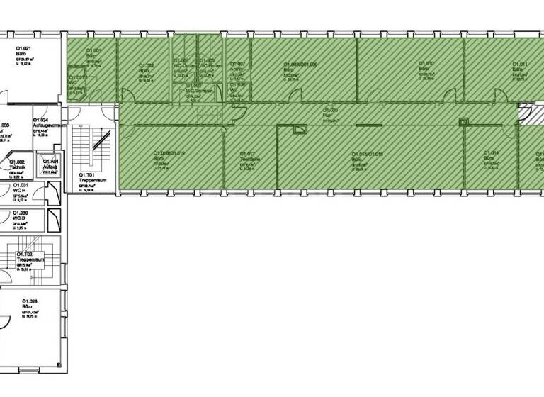
Im renommierten Technologiepark Dortmund stehen insgesamt rund 990 m² moderne Büroflächen zur Verfügung, die sich auf drei Etagen verteilen. Die Einheiten umfassen ca. 380 m² im 1. Obergeschoss, ca. 380 m² im 2. Obergeschoss sowie ca. 230 m² im 4. Obergeschoss. Je nach Bedarf können die Flächen einzeln oder kombiniert angemietet werden, wodurch eine flexible Anpassung an unterschiedliche Unternehmensgrößen und Nutzungskonzepte möglich ist.

Die Büros sind aktuell in Einzel- und Doppelbüros aufgeteilt und bieten damit eine effiziente Arbeitsumgebung für konzentriertes Arbeiten und teamorientierte Prozesse. Eine Anpassung der Raumstruktur kann auf Wunsch vorgenommen werden, um individuelle Anforderungen zu berücksichtigen.

Die Ausstattung entspricht einem modernen Bürostandard und gewährleistet ein komfortables Arbeitsumfeld. Hochwertiger Teppichboden sorgt für eine angenehme Akustik und Atmosphäre, während die vorhandene CAT-7-Verkabelung über Brüstungskanäle eine optimale technische Infrastruktur bietet. Für ein behagliches Raumklima sind Klima-Split-Geräte installiert, und elektrisch betriebene Außenraffstoren dienen als effektiver Sonnenschutz. Eine funktionale Teeküche steht für Pausen und kurze Besprechungen zur Verfügung. Rasterdecken-Einbauleuchten sorgen für eine gleichmäßige und helle Ausleuchtung aller Arbeitsbereiche. Beheizt wird das Gebäude über eine Gaszentralheizung.

Ein Personenaufzug ermöglicht den barrierearmen Zugang zu allen Etagen. Für Mitarbeiter und Besucher stehen ausreichend Außenstellplätze direkt am Gebäude zur Verfügung.

Merkmale

  • Bezug: ab September 2026
  • Barrierefrei
  • Personenaufzug
  • Teeküche
  • 25 Stellplätze: Außen-Stellplatz
Bodenbelag: Teppichboden
EDV-Verkabelung: CAT 7
Kabelführung: Brüstungskanäle
Kühlung: Klima-Split-Geräte
Sonnenschutz: Raffstoren außen (elektrisch)
Küche: Teeküche
Beleuchtung: Rasterdecken-Einbauleuchten
Aufzug: Personenaufzug
Heizung: Gaszentralheizung
Parkplätze: Außenstellplätze

Grundrisse

Grundrisse
1 / 3

Realisiere Dein Projekt

Bausubstanz und Energie

Möchtest du Details zum Energieverbrauch?info_energy_calculation-icon
  • Baujahr1197
Immowelt logo

Mietkosten

Monatliche Miete
9,50 €/m²
Nebenkosten
3,50 €
Zusätzliche Kosten
Heizkosten
Provision für Mieter
Dieses Angebot ist provisionspflichtig für den Mieter!

Im Falle des Abschlusses eines Mietvertrages über Flächen in diesem durch die CUBION Immobilien AG vermittelten oder nachgewiesenen Objekt trägt der Mieter unser Maklerhonorar. Dieses ist ent
Kaution
keine Angabe

Lage

address-icon
EichlinghofenDortmund (44227)
Der Anbieter hat die genaue Adresse nicht freigegeben
Innovationskraft trifft Spitzenlage: Der Dortmunder Technologiepark ist ein Magnet für technologieorientierte Startups ebenso wie für etablierte Konzerne. Die direkte Nachbarschaft zur Technischen Universität Dortmund sorgt für frisches Know-how und exzellente Vernetzung in der Forschung. Dank optimaler Anbindung an A40, A45 und B1 ist der Standort sowohl regional als auch überregional perfekt erreichbar. Ein zukunftsweisender Hotspot für Hightech-Unternehmen im Ruhrgebiet.

Weitere Informationen

Sonstiges GEG 2020: Ein Energieausweis liegt zurzeit nicht vor.

Dieses Angebot ist provisionspflichtig für den Mieter!

Im Falle des Abschlusses eines Mietvertrages über Flächen in diesem durch die CUBION Immobilien AG vermittelten oder nachgewiesenen Objekt trägt der Mieter unser Maklerhonorar. Dieses ist entsprechend der Vertragslaufzeit gestaffelt. Es beträgt bei einer Vertragslaufzeit von unter 5 Jahren 2,0 Monatskaltmieten, ab 5 Jahren 3,0 Monatskaltmieten und erhöht sich bei jedem weiteren Mietjahr um 0,2 Monatskaltmieten (z.B. 3,2 Monatskaltmieten bei 6 Jahren etc.). Das Honorar versteht sich jeweils zuzüglich Umsatzsteuer. Im Übrigen gelten unsere AGB, einsehbar unter www.cubion.de/agb. Stichworte Sonstiges: EDV-Verkabelung

Weitere Services

Lust auf eine Besichtigung?
Eine Frage zur Immobilie?
Mit einer persönlichen Nachricht hast du bessere Chancen auf eine Antwort.
Mit der Nutzung der oben angegebenen Telefonnummer oder durch Klicken auf „Kontaktieren“ akzeptierst Du die Allgemeinen Nutzungsbedingungen, denen Du jederzeit widersprechen kannst. Weitere Informationen zum Datenschutz

Über den Anbieter

Akazienallee 65, 45478 Mülheim
partner badge
3 Jahre Partnerschaft
Herr Niklas Klein
Herr Niklas KleinDein Kontakt
Online-ID: 26HAJXJGBEBA
Referenznummer: 3372/G1/E2
CUBION Immobilien AG
title
CUBION Immobilien AG
Mit einer persönlichen Nachricht hast du bessere Chancen auf eine Antwort.
Mit der Nutzung der oben angegebenen Telefonnummer oder durch Klicken auf „Kontaktieren“ akzeptierst Du die Allgemeinen Nutzungsbedingungen, denen Du jederzeit widersprechen kannst. Weitere Informationen zum Datenschutz
Wie zufrieden bist du mit dieser Seite (nicht mit der Immobilie selbst)?