Version: 8.25.1Navigation überspringen
553.147 €
4 Zimmer  •  110 m²  •  510 m² Grundstück

Bungalow zum Kauf • provisionsfrei
553147 €
5.029 €/m²
4 Zimmer  •  110 m²  •  510 m² Grundstück

Naturnahe Oase: Ihr Zuhause für Gemütlichkeit

Herzlich willkommen in Ihrem neuen Zuhause, das speziell für familienorientierte Kunden wie Sie gestaltet wurde. Diese Immobilie ist der ideale Ort, um gemeinsame Erinnerungen zu schaffen und ein harmonisches Familienleben zu führen.

Das Haus bietet ausreichend Platz für Ihre Familie, um zu Wachsen und Gedeihen. Mit geräumigen Schlafzimmern, einem lichtdurchfluteten Wohnbereich und einem weitläufigen Garten, ist genügend Raum für jedes Familienmitglied vorhanden

Merkmale

  • 510 m² Grundstück
  • Gäste-WC
Neben kurzen Bauzeiten, innovativer Haustechnik, attraktiver Architektur und hochwertiger Manufaktur-Qualität bietet Ihnen das angebotene Schwabenhaus im "Green-Edition" All-Inclusive-Paket folgende Mehr-Werte:

- Bodenplatte inkl. Effizienzhaus 55 Perimeter-Dämmung unterhalb der Bodenplatte sowie stirnseitig
- Klima-Komfort-Bauweise für das Effizienzhaus 55
- Zimmermannsmäßiges Pfettendach
- Photovoltaik-Vorbereitung für die Ausführung eines Photovoltaik-Systems
- Komplette Elektro-, Sanitär- und Heizungs-Installation inkl. Grundinstallation für das Schwabenhaus auf Schwabenhaus-Bodenplatte bzw. -Keller*
- Zukunftsweisende Elektro-Installation*
- Abgeschirmte Lichtleitungen für moderne, störungsfreie Beleuchtung und Lichtszenarien
- Rollläden im Erd- und Obergeschoss Ihres Schwabenhauses
- Doppel-Wärmepumpe Eco* für Heizen, Kühlen, Lüften, Luftreinigung und Warmwasser
- Schwimmender Estrich mit Wärmedämmung*
- Blower-Door Test zur Überprüfung der Luftwechselrate*
- Klima-Komfort-Außenwand mit über 200 Putzfarben zur Auswahl
- Hochwertige, mehrschichtige Holz-Haustür in vielfältigen Design-Lösungen, mit Sicherheitsschließzylinder, 5-fach- Sicherheits-Verriegelung und 3-Scheiben-Wärmeschutzverglasung
- Kunststoff-Fenster mit 3-Scheiben- Wärmeschutzverglasung
- Dachflächenfenster mit Kipp- und Schwingfunktion sowie elektrischen Rollläden*, wenn laut Grundriss enthalten
- Außenfensterbänke aus Naturstein
- Innenfensterbänke aus Kunst- oder Naturstein*
- Massiv-Vollholz-Treppe
- Protect Versicherungs-Paket mit Wohngebäude-Versicherung inkl. Elementarschutz, Haus- und Wohnungs-Schutzbrief, Bauleistungs-Versicherung und Bauherren-Haftpflichtversicherung sowie Job-Protect Versicherungs-Paket
- 10 sowie 30 Jahre Gewährleistung gemäß Definition in der Schwabenhaus Bau- und Leistungsbeschreibung

*Ab Ausbaustufe "Fast-Vollendet"
¹Beim Effizienzhaus 40 Kühlung nur in Verbindung mit optionaler PV-Anlage.

Die aufgeführten Mehr-Werte und Leistungsinhalte beziehen sich ausschließlich auf das in der Schwabenhaus Bau- und Leistungsbeschreibung (BLB) beschriebene Technologie + Komfort-Paket "Green -Edition". Die Mehr-Werte und Leistungsinhalte anderer Schwabenhaus Bau- und Leistungsbeschreibungen bzw. Technologie + Komfort-Pakete können hiervon abweichen.

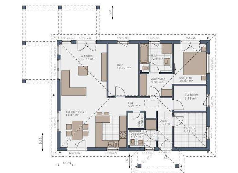
Grundrisse

Grundrisse
1 / 2

Realisiere Dein Projekt

Bausubstanz und Energie

Möchtest du Details zum Energieverbrauch?info_energy_calculation-icon
  • Zustand der ImmobilieNeubau, Projektiert
  • HeizungsartFußbodenheizung

Preisdetails

Kaufpreis
553147 €
5.028,61 €/m²
Provision für Käufer
provisionsfrei
Geschätzte Gesamtkosten
583.570 €1
Kaufpreis
553.147 €
Notarkosten (1,5%)
8.297 €
Grunderwerbsteuer (3,5%)
19.360 €
Grundbucheintrag (0,5%)
2.766 €
1Der angezeigte Wert ist eine automatisch berechnete Schätzung von immowelt.
2Bei den Angaben handelt es sich um ortsübliche Werte. Individuelle Kosten können abweichen.

Lage

address-icon
Ering (94140)
Der Anbieter hat die genaue Adresse nicht freigegeben
Das Grundstück wird ohne Makler angeboten. Die Festsetzungen sind bezüglich Gestaltung und Dachform freizügig gehalten. Ausschließlich eine verkehrsberuhigte Ringstraße als Anliegerstraße mit abgesenktem Gehweg (ca. 3.300 m²) und zuzüglich 2,30 m breiten Grünstreifen, in denen öffentliche Stellplätze angeordnet sind, erschließt die Wohngebäude.

Das Allgemeine Wohngebiet (WA) dient vorwiegend dem Wohnen.
Speise und Schankwirtschaften sowie die Nutzungen der Gartenbaubetriebe und Tankstellen werden ausgeschlossen, da der Schwerpunkt hauptsächlich auf dem Wohnen liegen soll. Andere Nutzungen müssen sich dem Wohnen unterordnen.

Es sind noch einige Grundstücke in verschiedenen Größen zu haben. Auf Anfrage kann Ihre Grundstücksgröße angepasst werden.

NATURIUM ERING

Ob im begehbaren Auwald, bei faszinierenden Aufnahmen unberührter Natur oder kleinen Experimenten zur Entstehung der Stauseeinseln - die Ausstellung lädt zum Entdecken der Lebensräume am Unteren Inn ein. Außerdem erfahren Sie hier, welche Vogelarten aktuell im Gebiet anwesend sind.

https://www.naturium-am-inn.eu/

Da Ering eine sehr wohlhabende Gemeinde ist, leistet es sich Bsp. ein Schwimmbad, das sich wesentlich größere Gemeinden nicht leisten können.
Die Nähe zu Österreich bietet weitere Ausflugsmöglichkeiten.

Ering selbst ist mit ca. 2000 Einwohnern nicht sehr groß, trotzdem gibt es alles, was man für den täglichen Bedarf braucht, direkt vor Ort in Ering, so zum Beispiel.

Ärzte
Tierarzt
Heilpraktikerin
Apotheken
Edeka
Schwimmbad
Skaterpark
Kindergarten
Grundschule
Friseur
Griechisches und andere Lokale
Baufachhandel
Raiffeisenbank
Zahlreiche Vereine
Ausgedehnte Fahrradwege usw.

Über die Bundesstraße ist man in Simbach am Inn ca. 10 Minuten
Neuötting ca. 15Min.
Mühldorf in ca. 40 Minuten
München in ca. 1Std. 30 Minuten

Die Grundstücksgröße kann ich nach Rücksprache mit dem Eigentümer noch für Sie passgenau festlegen lassen.
Der Bebauungsplan lässt sehr viel gestalterische Freiheiten, da vom Bungalow bis zum Mehrfamilienhaus alles gebaut werden darf.

Weitere Informationen

Sonstiges Das Haus ist projektiert inkl. Grundstück. Das Grundstück wird in Kommission angeboten bzw. direkt von Dritten verkauft. Daher kann der o.g. Preis aufgrund aktueller Marktsituationen schwanken.

Die Bauabwicklung kann kurzfristig nach Grundstückserwerb begonnen werden. Bilder zeigen möglicherweise Sonderausstattungen, die auf Wunsch gegen Preiskorrektur zusätzlich angeboten werden können.

Fragen Sie nach unserem kostenlosen Beratungs-Service und erhalten Sie in einem persönlichen Gespräch kostenlos alle wichtigen Informationen zu diesem Projekt, insbesondere: Lage und Bebauungsmöglichkeiten des Baugrundstücks, Baukosten-Kalkulation, Finanzierungs- u. Förderungs-Möglichkeiten, detaillierte Architektur- u. Grundrissplanung, etc.

Wir freuen uns, Sie ausführlich beraten zu dürfen!

Anbauteile, Carport, Garage und Keller können Extras sein, die als Sonderausstattung angeboten werden. Abbildungen, Grundrisse und Flächenangaben sind beispielhaft und können Extras zeigen. Flächenangaben nach DIN 277.

Profitieren Sie jetzt von der Schwabenhaus Online Beratung und verwirklichen Sie Ihr Traumhaus https://www.schwabenhaus.de/anmeldung-hausbau-beratung-online/ Stichworte Anzahl der Schlafzimmer: 3, Anzahl der Badezimmer: 1, Anzahl der separaten WCs: 1

Weitere Services

Lust auf eine Besichtigung?
Eine Frage zur Immobilie?
Nachricht hinzufügen
Mit der Nutzung der oben angegebenen Telefonnummer oder durch Klicken auf „Kontaktieren“ akzeptierst Du die Allgemeinen Nutzungsbedingungen, denen Du jederzeit widersprechen kannst. Weitere Informationen zum Datenschutz

Über den Anbieter

Senator-Gerauer-Straße 24, 85586 Grub
partner badge
Partnerschaft
Heinrich WaldmanDein Kontakt
Online-ID: 26ISMMM9MFMT
Referenznummer: SH-373254
Schwabenhaus Hamburg - Heinrich Waldman - Handelsvertretung für die Schwabenhaus GmbH
Nachricht hinzufügen
Mit der Nutzung der oben angegebenen Telefonnummer oder durch Klicken auf „Kontaktieren“ akzeptierst Du die Allgemeinen Nutzungsbedingungen, denen Du jederzeit widersprechen kannst. Weitere Informationen zum Datenschutz
Wie zufrieden bist du mit dieser Seite (nicht mit der Immobilie selbst)?