Version: 8.25.1Navigation überspringen
439.000 €
3 Zimmer  •  101 m²  •  2. Geschoss
Immowelt logo

Wohnung zum Kauf
439000 €
4.347 €/m²
3 Zimmer  •  101 m²  •  2. Geschoss

Wohnung 101m2 zum Kauf - Zadar, Nin

Penthouse-Wohnung in Neubau, nur 110 m vom Meer entfernt in Nin

Penthouse-Wohnung zu verkaufen in einem Neubau in Nin. Diese Wohnung befindet sich im zweiten Stock eines Gebäudes mit 10 Wohneinheiten. Die Wohnung hat einen schönen Blick auf das Meer.
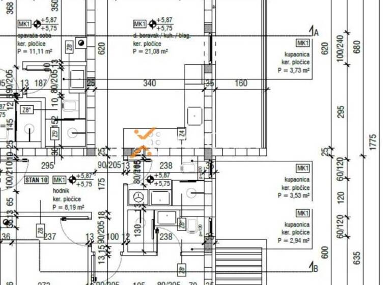
Die Raumaufteilung besteht aus einem Flur, einem Schlafzimmer, einem Schlafzimmer mit Bad, einem Badezimmer, einer Küche mit Esszimmer und Wohnzimmer sowie zwei überdachten Terrassen. Zusätzlich verfügt die Wohnung über eine Dachterrasse von 92,66 m2. Die Nettonutzfläche der beschriebenen Räumlichkeiten beträgt 95,73 m2.
Darüber hinaus verfügt die Wohnung über zwei Parkplätze vor dem Gebäude.
Die gesamte Nettonutzfläche der Wohnung mit allen zusätzlichen Teilen beträgt 100,73 m2.
Wir betonen, dass diese Wohnung über eine Firma verkauft wird und der Käufer daher keine Grundsteuer zahlen muss.
Die Entfernung dieser Immobilie zum Meer beträgt nur 110 m. Die Entfernung zum Zentrum von Nin beträgt 800 m.

Ausstattung

Das Gebäude verfügt über einen Aufzug.
Die Konstruktion des Gebäudes besteht aus einem Ziegelblock. Die Wärmedämmung der Fassade besteht aus 10 cm Styropor. Die Fenster bestehen aus PVC-Material mit Dreischichtglas, Moskitonetzen und elektrischen Rollläden. Die Bodenbeläge sind Fliesen. Klimaanlagen in Schlafzimmern und Wohnzimmer – insgesamt 3 Geräte. Des Weiteren ist eine Fußbodenheizung in den Badezimmern installiert. Zusätlich gibt es auch einen Schornstein. Schließlich ist die Eingangstür einbruch- und feuersicher.
Das Gebäude wird an die komplette Infrastruktur angeschlossen.
Energieausweis A wird erwartet.
Standort
Nin ist die älteste kroatische Stadt, nur 15 km von Zadar entfernt. Es hat zahlreiche Sandstrände, von denen der Königsstadt am bekanntesten ist. Nin wird Jahr zu Jahr zu einem interessanteren Reiseziel. Obwohl es eine kleine Stadt ist, hat Nin alles, was Sie für den Alltag und für den Urlaub brauchen. Neben zahlreichen Cafés und Restaurants ist Nin für seinen gut ausgebauten Gesundheitstourismus bekannt, vor allem für die Freiluft-Sommerklinik an einem der Strände, wo es den bekannten Heilschlamm gibt.
Das Zentrum dieser Stadt befindet sich tatsächlich auf einer Insel; verbunden durch zwei Brücken. Es ist wichtig zu erwähnen, dass Nin die kleinste Kathedrale der Welt hat, die berühmte Saline – und die Salzblume, ein Museum und eine bekannte Fischzucht. Außerdem gibt es in Nin eine Grundschule, eine Ambulanz, eine Apotheke, einen Kindergarten, ein Einkaufszentrum und andere Einrichtungen, die für den Alltag notwendig sind.

Sonstiges

Falls Sie diese Immobilie woanders zu einem günstigeren Preis gesehen haben, gilt der gleiche Preis auch bei uns!

https://www.emporia-immobilien.com/property/apartment-a1378-nin-2/

Merkmale

  • 2. Geschoss

Grundrisse

Grundrisse
1 / 1

Realisiere Dein Projekt

Bausubstanz und Energie

Möchtest du Details zum Energieverbrauch?info_energy_calculation-icon
  • Baujahr2025
Immowelt logo

Preisdetails

Kaufpreis
439000 €
4.346,53 €/m²
Provision für Käufer
Bitte beachte, das Angebot kann bei Vertragsabschluss die Zahlung einer Provision beinhalten. Weitere Informationen erhältst Du vom Anbieter.

Lage

address-icon
Nin
Der Anbieter hat die genaue Adresse nicht freigegeben

Weitere Informationen

Stichworte Anzahl der Schlafzimmer: 2, Anzahl der Badezimmer: 2, 1 Etagen

Weitere Services

Lust auf eine Besichtigung?
Eine Frage zur Immobilie?
Nachricht hinzufügen
Mit der Nutzung der oben angegebenen Telefonnummer oder durch Klicken auf „Kontaktieren“ akzeptierst Du die Allgemeinen Nutzungsbedingungen, denen Du jederzeit widersprechen kannst. Weitere Informationen zum Datenschutz

Über den Anbieter

Nova cesta 60, 10000 ZAGREB
Emporia Real Estate ZadarDein Kontakt
Online-ID: 25TAHRDQB6H8
Referenznummer: 19351685_3
Crozilla.com
Crozilla.com
Nachricht hinzufügen
Mit der Nutzung der oben angegebenen Telefonnummer oder durch Klicken auf „Kontaktieren“ akzeptierst Du die Allgemeinen Nutzungsbedingungen, denen Du jederzeit widersprechen kannst. Weitere Informationen zum Datenschutz
Wie zufrieden bist du mit dieser Seite (nicht mit der Immobilie selbst)?