Version: 8.25.1Navigation überspringen
630 €
3 Zimmer  •  78,4 m²  •  Geschoss 2/3  •  frei ab 30.06.2026
Immowelt logo

Wohnung zur Miete
630 €
3 Zimmer  •  78,4 m²  •  Geschoss 2/3  •  frei ab 30.06.2026

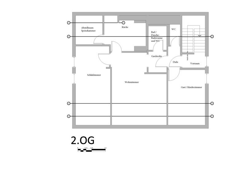
3- Zimmer Dachgeschoß Wohnung ( Küche , Bad, extra WC, Neben- Speise ) Fränkische Seenplatte

Objektbeschreibung Die Wohnung ist im Dachgeschoss eines im Jahr 2007 vollständig modernisierten 3 Familienhauses Die Wohnfläche ist mit Dachschrägen ( s. Grundriss) Inmitten schöner Gartenanlage- (Freisitz Grillmöglichkeit…) Das Objekt besitzt hochwertigen komplett neuen Vollwärmeschutz, neue Innenausstattung, Elektro,Sanitär neuwertig. Der aktuelle Energieverbrauchswert ist mit 88 Kwh/m²a sehr günstig. Auf dem Dach ist eine Solaranlage installiert, welche im Sommer die Warmwasser Versorgung größtenteils übernimmt, sowie im Winter, bzw. Übergangszeit die Heizung (Pufferspeicher) unterstützt. Ebenso ist auf dem Dach eine 5 KW Photovoltaikanlage installiert, die als Eigenstrom Nutzung der gesamten Hautgemeinschaft dient. Ebenso wird die Eigenstrom Nutzung durch den damit gespeisten WW Boiler erhöht Zur Wohnung gehört ein gefliester zusätzlicher Keller Raum,s. Grundriss) sowie eine Garage mit Segment-Schiebetor. Ein elektischer Torantrieb ist bautechnisch vorbereitet und kann durch Mieter auf eigne Kosten nachgerüstet werden. Eine gemeinsame Waschküche und gemeinsam nutzbarer Trockenraum steht mit getrennten, der Wohneinheit zugeordneten elektrischen und Wasser Anschlüssen für Waschmaschine und Trockner zur Verfügung. Allen Mietern im Haus steht ein separater Keller Raum zum temporären Abstellen von Kinderwagen, Fahrrädern etc. in Absprache mit dem Vermieter zu Verfügung. Ausstattung: 3 Zimmer mit Küche, Bad Dusche und Wanne, Diele, Flur, kleine Abstellraum. Satelliten Anschluss, DSL Versorgung vorhanden. Glasfaser im Haus - jedoch noch nicht aktiviert. Sehr ruhige Wohnlage. Raumaufteilung Schlafzimmer im Westen- Wohnzimmer nach Süden. Küche mit Abstellraum nach Norden. Bad mit Wanne-Dusche Waschbecken. Diele mit Garderobe (Türsprechanlage), Die Wohnung könnte durch eine Zwischentür von einem separaten Gast Zimmer mit WC getrennt werden. .

Merkmale

  • frei ab 30.06.2026
  • Dachgeschoss, 2. Geschoss/3 Geschossen
  • Haustiere nach Absprache
  • Einbauküche
  • Keller
  • Garage
  • Garten
  • Nicht möbliert

Grundrisse

Grundrisse
1 / 2

Realisiere Dein Projekt

Bausubstanz und Energie

Energieausweis

Der Energieausweis wird bei Besichtigung nachgereicht.
  • Baujahr2015
  • Zustand der ImmobilieGepflegt
  • HeizungsartZentralheizung
  • EnergieträgerGas, Solar
Immowelt logo

Mietkosten

Warmmiete
890 €
Kaltmiete
8,03 €/m²
630 €
Nebenkosten
260 €
Zusätzliche Kosten
Miete pro Stellplatz
60 €
Kaution
3 Monatsmieten

Lage

address-icon
Paul Wethstrasse 28FrickenfeldenGunzenhausen (91710)

Weitere Services

Lust auf eine Besichtigung?
Eine Frage zur Immobilie?
Mit einer persönlichen Nachricht hast du bessere Chancen auf eine Antwort.
Mit der Nutzung der oben angegebenen Telefonnummer oder durch Klicken auf „Kontaktieren“ akzeptierst Du die Allgemeinen Nutzungsbedingungen, denen Du jederzeit widersprechen kannst. Weitere Informationen zum Datenschutz

Über den Eigentümer

Privater Anbieter
Keine Telefonnummer hinterlegt
Keine Telefonnummer hinterlegt

Weitere Unterlagen

Online-ID: 23DCADGIWSLJ
Privater Anbieter
Mit einer persönlichen Nachricht hast du bessere Chancen auf eine Antwort.
Mit der Nutzung der oben angegebenen Telefonnummer oder durch Klicken auf „Kontaktieren“ akzeptierst Du die Allgemeinen Nutzungsbedingungen, denen Du jederzeit widersprechen kannst. Weitere Informationen zum Datenschutz
Wie zufrieden bist du mit dieser Seite (nicht mit der Immobilie selbst)?