
FALC Immobilien Dresden
Herr Florian Ben Kaminski
080 ···
Nr. anzeigenPreise & Kosten
Provision für Käufer
3,57% inkl. MwSt. vom notariellen Kaufpreis.
Lage
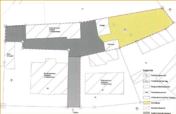
Das Haus befindet sich in Rippien - einem Ortsteil von Bannewitz.
Wenn Sie also abseits vom touristischen Dresden ein Fleckchen zum Wohnen und Wohlfühlen suchen, ist Bannewitz eine gute Alternative.
Die Ortschaft besteht aus den historischen Dörfern Eutschütz, Nöthnitz und Rosentitz und liegt südlich der...
Das Haus
Kategorie
Einfamilienhaus
Baujahr
2021
Energie & Heizung
Warum sehe ich diese Anzeige? – Du siehst diese Anzeige basierend auf Ihrer Navigation auf unserer Website und den Suchkriterien, die du verwendet hast.
Weitere Energiedaten
Haustyp
Massivhaus
Heizungsart
Fußbodenheizung
Details
Objektbeschreibung
Die Preise steigen weiter, dieser "Neubau" ist Ihre Chance!
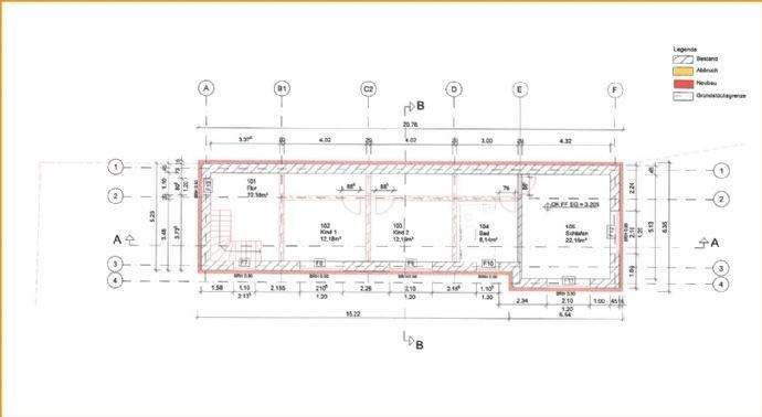
Zum Verkauf steht ein hochmodernisiertes Einfamilienhaus mit den um etwa 1900 erbauten Grundmauern einer alten Fleischerei. Das Haus mit einer Gesamtwohnfläche von ca. 153,19 m² - aufgeteilt auf 2 Etagen - befindet sich in zweiter Reihe umgeben von viel...
Ausstattung
Das Haus wird einmal komplett grundsaniert - neue Fenster, neues Dach, neue Sanitäranlagen, neue Elektrik, neue Heizung und vieles mehr!
Die Räume im gesamten Haus werden über eine mehrkreisige Fussbodenheizung beheizt und werden mit hochwertigem Design-Boden versehen. Die Holz-Fenster sind doppelt verglast. Das WC im EG...
Preisinformation
2 Carportplätze
Weitere Informationen
Sonstiges
Eine Besichtigung sagt mehr als jede Beschreibung, bei Interesse zögern Sie nicht und vereinbaren Sie einen unverbindlichen Termin.
Wir bieten nicht nur eine kostenlose Hotline, sondern auch einen Service am Wochenende an.
Bei Interesse geben Sie bitte immer Ihre vollständigen Kontaktdaten...
Anbieter der Immobilie
FALC Immobilien Dresden
Rißweg 27b, 01324 Dresden
Online-ID: 23dcg5d
Referenznummer: FALC-MMe-20880
Finde Angebote wie dieses
Hier geht es zu unserem Impressum, den Allgemeinen Geschäftsbedingungen, den Hinweisen zum Datenschutz und nutzungsbasierter Online-Werbung.