

Immoraum GmbH
Herr Sven Gruber
+49 ···
Nr. anzeigenPreise & Kosten
Provision für Mieter
provisionsfrei
Warum sehe ich diese Anzeige? – Du siehst diese Anzeige basierend auf Ihrer Navigation auf unserer Website und den Suchkriterien, die du verwendet hast.
Lage
Das Objekt befindet sich verkehrsgünstig im Stuttgarter Osten. Es besteht eine gute Anbindung an die B10 in Richtung Esslingen und die B14 in Richtung Waiblingen. In der Umgebung finden sich ausreichend Einkaufsmöglichkeiten für den täglichen Bedarf und eine bunte Mischung an gastronomischen Einrichtungen.
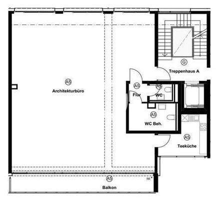
Büro-/Praxisfläche
Baujahr
-
Bezug
Vereinbarung
Details
Objektbeschreibung
Derzeit bietet sich Ihnen die Möglichkeit, attraktive Vakanzen in Stuttgart-Ost anzumieten. Die Ausstattung umfasst:
- Sonnenschutz
- Teeküche
- Personenaufzug
- Bodenbelag Mietersache
In der Tiefgarage das Laden von Elektroautos möglich. (Parkplätze hierfür werden geteilt.)
Weitere Informationen
Sonstiges
Noch nicht das Richtige? Wir führen weitere Objekte im Großraum Stuttgart. Sprechen Sie mit unseren Beratern. Gemeinsam finden wir Ihr Wunschobjekt! Wir freuen uns auf Ihre Kontaktaufnahme!
Nach den §§ 16, 16 a EnEV ist der Eigentümer, Verkäufer, Vermieter, Verpächter und Leasinggeber bei der Vermarktung...
Anbieter der Immobilie
Immoraum GmbH
Uhlandstraße 14, 70182 Stuttgart

Online-ID: 23twf5z
Referenznummer: IRx1107/G1/E3/Eh2
Finde Angebote wie dieses
Hier geht es zu unserem Impressum, den Allgemeinen Geschäftsbedingungen, den Hinweisen zum Datenschutz und nutzungsbasierter Online-Werbung.