Version: 8.24.0Navigation überspringen
499.000 €
10 Zimmer  •  460 m²  •  1.083 m² Grundstück  •  frei ab sofort
Immowelt logo

Mehrfamilienhaus zum Kauf
499000 €
1.085 €/m²
10 Zimmer  •  460 m²  •  1.083 m² Grundstück  •  frei ab sofort

gepflegtes und neuwertiges Wohnhaus (2015 modernisiert und erweitert)

Wohnhaus:
Das Haus wurde ca. 1950/60 in konventioneller Massivbauweise mit Teilkeller erstellt und ca. 2015 und ca. 2020 umfangreich entkernt, erweitert und modernisiert. Die Aussenwände sind mit rotem Verblendmauerwerk bzw. die Fassade im Bereich der Penthousewohnung mit Lärchenholz im Rhombusprofil verkleidet. Bei dem Dach handelt es sich um ein Satteldach und ein Flachdach. Das Satteldach ist mit anthrazitfarbenen Dachpfannen eingedeckt, die Flachdächer sind mit Dachpappe abgedichtet.

Es wurden in den letzten Jahren u. a. folgende Modernisierungen/ Erweiterungen vorgenommen:

Allgemein:
ca. 2015:
- Einbau Gaszentralheizung (Buderus) und Erneuerung Heizungsinstallation (Heizkörper und Heizungsrohre)
- Erneuerung Dachstuhl und Dacheindeckung
- Aufstockung des Obergeschosses
- Austausch der Fenster
- Erneuerung Elektro-Installation
- Erneuerung Wasserleitungen und Abwasserleitungen
- Erneuerung Schmutzwasserleitungen außen
- Erneuerung Regenwasserleitung.

1. Hauptwohnung:
ca. 2015: - Neubau der Penhousewohnung (moderne mit Lärchenholz im Rhombusprofil verkleidete Fassade, siehe Fotos) bzw. vollständige Entkernung der Altsubstanz (bis auf Giebelaussenwände) und Wiederaufbau von innen (Ober- und Dachgeschoss über Ladenlokal, siehe Fotos).

2. Wohnung im Erdgeschoss (ehemaliges Ladenlokal):
ca. 2020:
- vollständige Entkernung und Wiederaufbau u.a.:
- Erneuerung Abwasserleitungen
- Erneuerung Elektro-Installation
- Erneuerung Wasser-Installation
- Erneuerung Heizungs-Installation
- Erneuerung Sanitärinstallation
- Erneuerung Bodenbeläge
- Malerarbeiten
- Erneuerung Inventar (Ladenküche, Verkaufstresen, Regale,
Sitzmöglichkeiten etc.)
- Pflasterung des Vorplatzes vor dem Ladengeschäft.

3. Einliegerwohnung:
ca. 2015:
- vollständige Entkernung und Neuaufteilung der Räumlichkeiten
- Verlegung der Anschlussleitungen in die Wohnung (Elekro, Wasser, Abwasser, Heizung, Glasfaser und Datenkabel).

Merkmale

  • 1.083 m² Grundstück
  • offene Küche
  • Kelleranteil
  • 6 Stellplätze: Außen-Stellplatz
  • Gäste-WC
  • Garten
  • Terrasse
  • Badezimmer: Badewanne, Bad mit Dusche, Bad mit Fenster

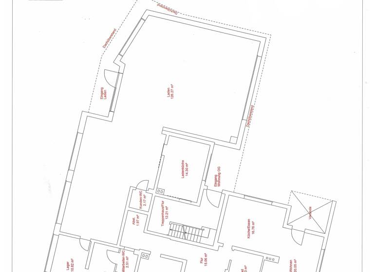
Grundrisse

Grundrisse
1 / 4

Realisiere Dein Projekt

Bausubstanz und Energie

Energieausweis

D
  • Baujahr1950/60 u. 2015
  • HeizungsartZentralheizung: Fußbodenheizung
  • EnergieträgerGas
Immowelt logo

Preisdetails

Kaufpreis
499000 €
1.084,78 €/m²
Provision für Käufer
Die an uns nach Vertragsabschluss zu zahlende Maklercourtage in Höhe von 5,95% des Kaufpreises inkl. gesetzlicher Mehrwertsteuer ist je zur Hälfte vom Käufer (14.845,25 €) und vom Verkäufer (14.845,25 €) zu tragen.
Geschätzte Gesamtkosten
551.744 €1
Kaufpreis
499.000 €
Notarkosten (1,5%)
7.485 €
Grunderwerbsteuer (5%)
24.950 €
Provision für Käufer (3,57%)
17.814 €
Grundbucheintrag (0,5%)
2.495 €
1Der angezeigte Wert ist eine automatisch berechnete Schätzung von immowelt.
2Bei den Angaben handelt es sich um ortsübliche Werte. Individuelle Kosten können abweichen.

Lage

address-icon
WalmsburgBleckede (21354)
Der Anbieter hat die genaue Adresse nicht freigegeben
In 21354 Bleckede-Walmsburg, einer kleinen Gemeinde in der Elbtalaue direkt an der Elbe gelegen, mit ca. 500 Einwohnern. Walmsburg ist der südlichste Ortsteil der Stadt Bleckede im Landkreis Lüneburg. Lüneburg ist in ca. 37 Autominuten und Bleckede in ca. 13 Autominuten bequem zu erreichen.

Bleckede-Walmsburg und die nähere Umgebung verfügen u.a. über:

- gute Einkaufsmöglichkeiten in Bleckede

- ärztliche Nahversorgung (Ärzte und Apotheke) in Bleckede


- Kindergärten sind u.a. in den benachbarten Orten Alt Garge und Barskamp, ca. 5 Km entfernt

- Grundschule in Barskamp, die weiterführenden Schulen in Bleckede sind über Schulbusse und öffentliche Verkehrsmittel gut zu erreichen

- öffentliche Verkehrsmittel: Busverbindungen nach Bleckede und Lüneburg (Bahnanschluss). Die nächstgelegene Bushaltestelle ist nur ca. 100 m vom Objekt entfernt

- vielfältiges Freizeitangebot in Bleckede (Sportplatz, Sporthalle, Tennisplatz, Yachthafen etc.) und Waldbad in Altgarge.

Das Wohn- und Geschäftshaus liegt in zentraler Ortslage.

Weitere Informationen

Baubeschreibung Baubeschreibung allgemein:
- konventionelle Massivbauweise
- Beheizung über Gaszentralheizung (Fabrikat Buderus Logaplus, Gasbrennwertgerät/ Einbau 2015)
- Warmwasseraufbereitung über E-Durchlauferhitzer
- Fenster in Kunststoff (außen lichtgrau / innen weiß) mit Isolierverglasung, teilweise mit innenliegenden Sprossen
- Kelleraußeneingangstür in Kunststoff, weiß, verstärkt (Einbruchschutz)
- Glasfaseranschluss (getrennte Leitungen für Penthousewohnung,
Ladenlokal und Einliegerwohnung)
- Zisterne zum Auffangen des Regenwassers (ca. 7.000 l, ehemaliger Erd-Öltank).
Stichworte Zustand: neuwertig, gepflegt Sonstiges/Wohnen: Einliegerwohnung Sonstiges: frei werdend

Weitere Services

Lust auf eine Besichtigung?
Eine Frage zur Immobilie?
Nachricht hinzufügen
Mit der Nutzung der oben angegebenen Telefonnummer oder durch Klicken auf „Kontaktieren“ akzeptierst Du die Allgemeinen Nutzungsbedingungen, denen Du jederzeit widersprechen kannst. Weitere Informationen zum Datenschutz

Über den Anbieter

Bergedorfer Straße 12, 21502 Geesthacht
partner badge
Partnerschaft
Herr Dipl.-Kfm. Ulric GernerDein Kontakt
Online-ID: 2jx645t
Gerner Immobilien GmbH
Gerner Immobilien GmbH
Bewertung: 5 von 5 Sternen
Nachricht hinzufügen
Mit der Nutzung der oben angegebenen Telefonnummer oder durch Klicken auf „Kontaktieren“ akzeptierst Du die Allgemeinen Nutzungsbedingungen, denen Du jederzeit widersprechen kannst. Weitere Informationen zum Datenschutz
Wie zufrieden bist du mit dieser Seite (nicht mit der Immobilie selbst)?