


1 / 5



1 / 5
Wohnung zum Kauf - Erstbezug1043600 €1.043.600 €6.580 €/m²3 Zimmer • 158,6 m²
1043600 €1.043.600 €
6.580 €/m²
3 Zimmer • 158,6 m²
Exklusive Stadtwohnung beim Hauptplatz / großer Balkon / Neubau-Erstbezug / KFZ-Stellplatz
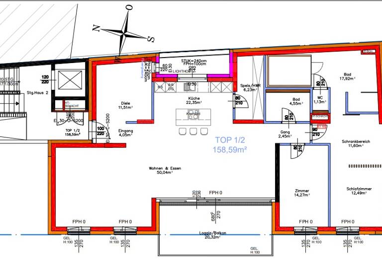
In attraktiver Lage von Tulln, in der Jasomirgottgasse 1, gelangt diese hochwertig ausgeführte und großzügig geplante Wohnung ( Top 2 ) zum Verkauf. Die rund 158,59 m² große Wohneinheit überzeugt durch moderne Architektur, eine durchdachte Raumaufteilung sowie eine hochwertige, schlüsselfertige Ausstattung . Das durchdachte Raumkonzept und die moderne Technik schaffen ein lichtdurchflutetes, offenes Wohngefühl mit angenehmen Raumhöhen von mindestens 3 Metern . Herzstück ist der großzügige Wohn- und Essbereich mit offener Küche und direktem Zugang zum ca. 20 m² großen Balkon , ergänzt durch ein flexibel nutzbares Zimmer sowie einen privaten Schlafbereich mit eigenem Ankleideraum und zwei Badezimmern Wohnkomfort auf höchstem Niveau Die Immobilie besticht durch eine moderne Bauweise mit 25 cm massiven Ziegelwänden sowie einem 20 cm starken Wärmedämmverbundsystem , das sowohl Energieeffizienz als auch hohen Wohnkomfort garantiert. Großzügige Holz-Alu-Fenster von Josko (System AMBER) mit 3-fach-Isolierverglasung sorgen für lichtdurchflutete Räume und hervorragende Wärmedämmwerte . Ein besonderes Highlight ist der Balkon, der mit großformatigen Fliesen auf Stelzlagern ausgeführt wird und einen idealen Rückzugsort im Freien bietet . Hochwertige Ausstattung Die Wohnung wird schlüsselfertig übergeben und umfasst unter anderem:
Wir weisen Sie darauf hin, dass die gemachten Angaben und Informationen lediglich unverbindliche Vorabinformationen sind und daher ohne Gewähr erfolgen. Der Vermittler ist als Doppelmakler tätig.
- Klebeparkettböden in den Wohn- und Schlafräumen
- Großformatige Fliesen (60x60 cm) in den Nassbereichen
- Behagliche Niedertemperatur-Fußbodenheizung in allen Räumen
- Moderne Luft-Wasser-Wärmepumpe (Daikin Altherma 3 R MT) für effiziente Heizung und Warmwasserbereitung
- Elektronisches Zutrittssystem mit Fingerprint für maximale Sicherheit an der Hauseingangstür
- Hochwertige Innentüren mit Holzzargen und formschönen Holztürblättern
- Umfangreiche Elektroausstattung mit zahlreichen Steckdosen sowie Vorbereitung für IT und Kabelsignal
- 1 PKW-Stellplatz (überdacht im Erdgeschoss)
- Ein eigenes Kellerabteil , das bequem ebenerdig im Erdgeschoss zugänglich ist
- Ein überdachter Fahrradabstellraum im Erdgeschoss
- Vorbereitung für E-Ladestationen bei den Parkplätzen .
- Infina kooperiert mit über 120 Banken in Österreich und Deutschland
- Über 600 Kreditprodukte im Vergleich
- Über 100-mal vor Ort in ganz Österreich
Wir weisen Sie darauf hin, dass die gemachten Angaben und Informationen lediglich unverbindliche Vorabinformationen sind und daher ohne Gewähr erfolgen. Der Vermittler ist als Doppelmakler tätig.
Merkmale
- Loggia
- voll erschlossen
Grundrisse
Grundrisse
1 / 1
Realisiere Dein Projekt
Bausubstanz und Energie
Möchtest du Details zum Energieverbrauch?

- Zustand der ImmobilieNeubau, Erstbezug
Preisdetails
Kaufpreis
1043600 €1.043.600 €
6.580,49 €/m²
Provision für Käufer
3,00 % des Kaufpreises zzgl. 20 % USt.
Lage

Tulln an der Donau (3430)
Das Projekt entsteht in zentralster Lage von Tulln - unmittelbar am traditionsreichen Hauptplatz Tulln. Dieser geschichtsträchtige Platz bildet seit jeher den lebendigen Mittelpunkt der Stadt und vereint architektonischen Charme mit einem vielseitigen urbanen Angebot. Stilvolle Altbauten, einladende Schanigärten sowie zahlreiche Einkaufsmöglichkeiten und Gastronomiebetriebe prägen das stimmungsvolle Ambiente.
Die ausgezeichnete Infrastruktur sorgt für höchsten Wohnkomfort im Alltag: Supermärkte, Apotheken, Bildungs- und Betreuungseinrichtungen sowie Ärzte befinden sich in unmittelbarer Nähe und sind bequem zu Fuß erreichbar. Darüber hinaus sorgen regelmäßige Märkte, kulturelle Events und saisonale Veranstaltungen für eine lebendige Atmosphäre direkt vor der Haustüre.
Nur wenige Gehminuten entfernt eröffnet sich mit den Donauauen ein weitläufiger Natur- und Erholungsraum. Die Nähe zur Donau schafft ideale Voraussetzungen für sportliche Aktivitäten, entspannte Spaziergänge oder ausgedehnte Radtouren und bietet damit einen attraktiven Kontrast zum Stadtleben.
Auch verkehrstechnisch ist der Standort hervorragend positioniert. Der Bahnhof von Tulln ist schnell erreichbar und gewährleistet eine komfortable Anbindung in Richtung Wien sowie in die umliegenden Regionen. Die Verbindung aus urbaner Infrastruktur, historischem Flair und naturnahem Umfeld macht diese Adresse besonders attraktiv.
Eine Wohnlage, die zentrale Urbanität, optimale Nahversorgung und hohe Lebensqualität harmonisch miteinander verbindet.
Die ausgezeichnete Infrastruktur sorgt für höchsten Wohnkomfort im Alltag: Supermärkte, Apotheken, Bildungs- und Betreuungseinrichtungen sowie Ärzte befinden sich in unmittelbarer Nähe und sind bequem zu Fuß erreichbar. Darüber hinaus sorgen regelmäßige Märkte, kulturelle Events und saisonale Veranstaltungen für eine lebendige Atmosphäre direkt vor der Haustüre.
Nur wenige Gehminuten entfernt eröffnet sich mit den Donauauen ein weitläufiger Natur- und Erholungsraum. Die Nähe zur Donau schafft ideale Voraussetzungen für sportliche Aktivitäten, entspannte Spaziergänge oder ausgedehnte Radtouren und bietet damit einen attraktiven Kontrast zum Stadtleben.
Auch verkehrstechnisch ist der Standort hervorragend positioniert. Der Bahnhof von Tulln ist schnell erreichbar und gewährleistet eine komfortable Anbindung in Richtung Wien sowie in die umliegenden Regionen. Die Verbindung aus urbaner Infrastruktur, historischem Flair und naturnahem Umfeld macht diese Adresse besonders attraktiv.
Eine Wohnlage, die zentrale Urbanität, optimale Nahversorgung und hohe Lebensqualität harmonisch miteinander verbindet.
Weitere Informationen
Stichworte
Nutzfläche: 178,91 m², Freifläche: 20,32 m², Anzahl Loggias: 1, Balkon-Terrassen-Fläche: 20,32 m², Bundesland: Niederösterreich
Weitere Services
Lust auf eine Besichtigung?
Eine Frage zur Immobilie?
Über den Anbieter
Brixner Straße 2/4, 6020 INNSBRUCK
Partnerschaft
Herr Montana ChambasDein Kontakt
Online-ID: 26CQRYCFPWFK
Referenznummer: 81345
INFINA Credit Broker GmbH
5/5Bewertung: 5 von 5 Sternen
Wie zufrieden bist du mit dieser Seite (nicht mit der Immobilie selbst)?