
Kreissparkasse Böblingen
Herr Ben Siefert
+49 ···
Nr. anzeigenPreise & Kosten
Kaution
15.240,00
Provision für Mieter
provisionsfrei
Warum sehe ich diese Anzeige? – Du siehst diese Anzeige basierend auf Ihrer Navigation auf unserer Website und den Suchkriterien, die du verwendet hast.
Lage
Leonberg hat ca. 45.000 Einwohner und liegt am Autobahndreieck Stuttgart, dem bedeutendsten Verkehrsknotenpunkt in Baden-Württemberg, mit direktem Anschluss zur A8 (Karlsruhe/ München) und A81(Heilbronn/ Stuttgart).
Entfernung zur Autobahn A81 ca. 2 Fahrminuten!
Büro-/Praxisfläche
Baujahr
1990
Geschoss
1. Geschoss
Energie & Heizung
Warum sehe ich diese Anzeige? – Du siehst diese Anzeige basierend auf Ihrer Navigation auf unserer Website und den Suchkriterien, die du verwendet hast.
Wärme
Strom
Energieausweistyp
Verbrauchsausweis
Gebäudetyp
Nicht-Wohngebäude
Baujahr laut Energieausweis
1990
Wesentliche Energieträger
Gas
Gültigkeit
27.06.2018 bis 26.06.2028
Endenergieverbrauch (Wärme)
150,00 kWh/(m²·a) - Warmwasser enthalten
Endenergieverbrauch (Strom)
58,00 kWh/(m²·a) - Warmwasser enthalten
Weitere Energiedaten
Energieträger
Gas
Heizungsart
Zentralheizung
Details
Objektbeschreibung
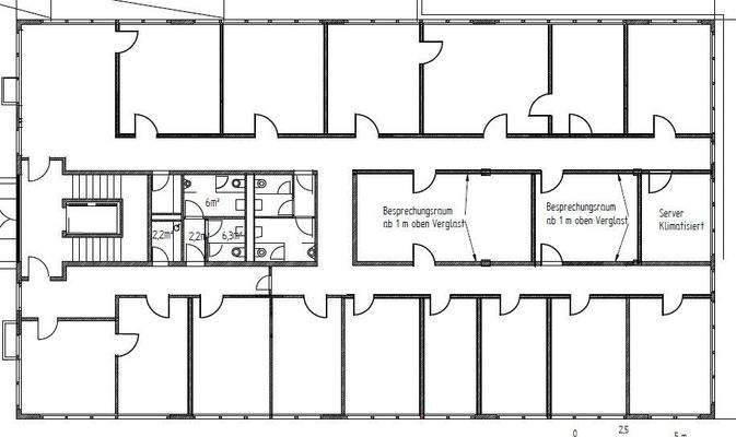
Zur Vermietung stehen insgesamt ca. 635 m² Bürofläche im 1. OG eines Bürogebäudes im Gewerbegebiet. Die Fläche ist teilbar ab ca. 315 m². Momentan sind in der Fläche diverse Gruppen- und Einzelbüros vorhanden, die Einheit kann aber auch komplett als Open Space Variante entsprechend den Mieterwünschen gestaltet...
Ausstattung
- Teppichboden
- abgehängte Decken
- Serverraum mit Klimaanlage
- Teeküche
- WC-Kerne
- Personenaufzug
- Stellplätze in der Tiefgarage
- IT-Verkabelung
- Elektrische Außenjalousien
- Deckenbeleuchtung
Preisinformation
Nettokaltmiete: 5.080,00 EUR
Weitere Informationen
Stichworte
Gesamtfläche: 635,00 m², Bundesland: Baden-Württemberg, 4 Etagen
Sonstiges: EDV-Verkabelung
Anbieter der Immobilie
Kreissparkasse Böblingen
Wolfgang-Brumme-Allee 1, 71034 Böblingen
Online-ID: 24gtf5l
Referenznummer: 4553
Finde Angebote wie dieses
Hier geht es zu unserem Impressum, den Allgemeinen Geschäftsbedingungen, den Hinweisen zum Datenschutz und nutzungsbasierter Online-Werbung.