
MUREK Immobilienmanagement GmbH
Herr Gregor Murek
035 ···
Nr. anzeigenPreise & Kosten
Kaution
2.390 €
Provision für Mieter
provisionsfrei
Warum sehe ich diese Anzeige? – Du siehst diese Anzeige basierend auf Ihrer Navigation auf unserer Website und den Suchkriterien, die du verwendet hast.
Lage
Die Bürovilla liegt im hübsch hergerichteten Stadtkern von Guben, direkt gegenüber vom Kommunalzentrum/Rathaus. Aus den Frontfenstern bietet sich ein schöner Blick auf eine Grünfläche mit anliegenden Stadthäusern. Besorgungen können bequem zu Fuß erledigt werden.
Büro-/Praxisfläche
Bezug
ab sofort
Derzeitige Nutzung
frei
Geschoss
1. Geschoss
Energie & Heizung
Warum sehe ich diese Anzeige? – Du siehst diese Anzeige basierend auf Ihrer Navigation auf unserer Website und den Suchkriterien, die du verwendet hast.
Energieausweis: für diesen Gebäudetyp nicht notwendig
Details
Objektbeschreibung
Zur sofortigen Anmietung steht eine repräsentative Gewerbeeinheit in einer denkmalgeschützten Villa im Zentrum von Guben bereit.
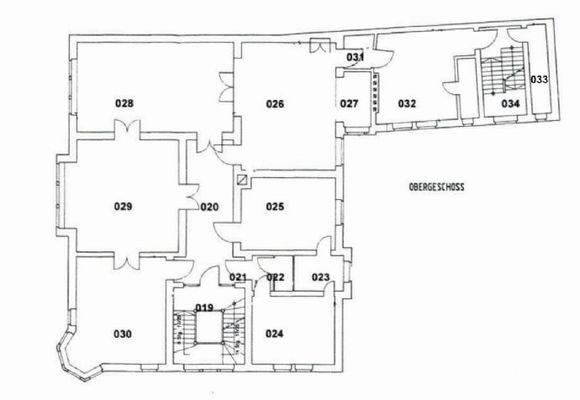
Die Gewerbeeinheit erstreckt sich über die gesamte erste Etage und eignet sich für den Betrieb eines Büros oder einer Praxis. Sie bietet auf einer Fläche von ca. 240 qm sechs Zimmer...
Ausstattung
- Erstes Obergeschoss in einer historischen Villa
- Zentrumslage
- sechs Zimmer unterschiedlicher Größe
- Teeküche und Küche, zwei WC
- Repräsentative Ausstattung
- DV-Verkabelung
- Alarmanlage
- Video-Türsprechanlage
- Haupt- und Nebeneingang
- bis zu fünf Kfz-Stellplätze auf dem Hinterhof (je 25...
Weitere Informationen
Sonstiges
Es fällt keine Provision bei Mietvertragsabschluss an.
Wir freuen uns auf Ihre Anfrage.
Anbieter der Immobilie
MUREK Immobilienmanagement GmbH
Sorauer Straße 71, 03149 Forst
Online-ID: 24n695t
Referenznummer: M-502
Finde Angebote wie dieses
Hier geht es zu unserem Impressum, den Allgemeinen Geschäftsbedingungen, den Hinweisen zum Datenschutz und nutzungsbasierter Online-Werbung.