Version: 8.24.1Navigation ĂĽberspringen
499.000 €
125 m²  â€˘  277 m² GrundstĂĽck
Immowelt logo

Haus zum Kauf
499000 €
3.992 €/m²
125 m²  â€˘  277 m² GrundstĂĽck

Energieeffiziente Doppelhaushälfte inkl. Photovoltaikanlage und Luftwärmepumpe - Haus links

Ein durchdachter Hingucker: Ihre Freunde werden Sie beneiden!
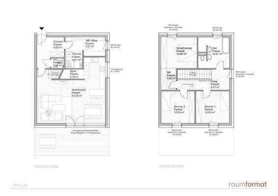
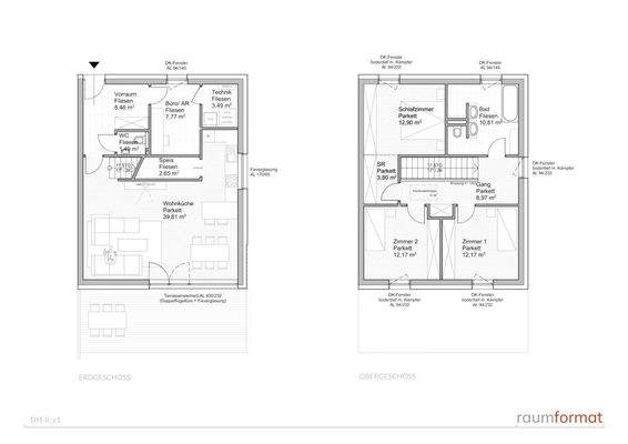
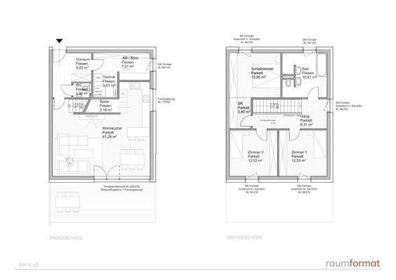
In rund 125 m² Wohnfläche können Sie sich ausbreiten und das moderne Wohngefühl und die lichtdurchfluteten Räume genießen. Lassen Sie sich durch die zahlreichen bereits gebauten Grundrisse inspirieren und passen Sie die Innenwände nach Ihren Wünschen und Bedürfnissen an. Der Blick in das Obergeschoss verrät, dass dieses ganz ohne Dachschrägen auskommt und dadurch in allen Räumen eine überdurchschnittliche Raumhöhe genutzt werden kann. Bei der Planung Ihres Niedrigenergiehauses achten wir, nicht nur auf die Energieeffizienz, um die Heizkosten gering zu halten, sondern auch darauf jeden Quadratmeter sinnvoll zu nutzen. Dadurch können wir unnötige Flächen und in weiterer Folge Baukosten verhindern und Ihnen im Alltag kurze Wege ermöglichen.

Ihr Haus im Ăśberblick!
Grundstücksgröße: ca. 277 m² | Wohnfläche: ca. 125 m²
Erdgeschoss: groĂźes Wohn- und Esszimmer mit offener KĂĽche, Speis, BĂĽro, Technikraum, WC, Vorraum
Obergeschoss: Schlafzimmer, zwei Kinderzimmer, Badezimmer inkl. WC
Heizung: FuĂźbodenheizung ĂĽber Luftwärmepumpe | HWB: 35 kwh/m²a | fGEE: 0,60

Der Garten und die Terrasse bieten viel Platz für Spiel und Spaß. Entspannen Sie, lassen Sie die Seele baumeln und genießen Sie Ihr Paradies. Praktischerweise ist der Außenbereich von der Straße aus zugängig, wodurch Gartengeräte nicht durch das Wohnzimmer geschleppt werden müssen. Der Einkauf hingegen ist dank der Parkplätze neben dem Eingang im Handumdrehen hineingetragen.

Das ist drinnen: Damit können Sie rechnen!
Hier ein kleiner Einblick, alles weitere finden Sie in unserem Exposé beziehungsweise kann unser Projektleiter beantworten!

* Profitieren Sie dank der Qualitätsprodukte aus Österreich von einer hohen Produktqualität und einer hohen Lebensdauer!

* Bramac Markendach
* Josko Fenster 3-fach Verglasung (inkl. SpaltlĂĽftung)
* Wienerberger Qualitätsziegel
* Ă–kologischer Baustoff
* Baumit Qualitätsfassadendämmung
* Viessmann Luftwärmepumpe

* Alles in Massivbauweise!
Ein Haus fĂĽr Generationen! Sie profitieren, von einem hohen Werterhalt, ausgeglichenen Raumklima und einer hohen Energieeffizienz.
* Doppelwandbauweise zum Nachbarn!
REGIOWERT Doppelhäuser werden, wie zwei eigenständige Gebäude errichtet. Sie genießen dadurch einen erhöhten Schallschutz.
* GroĂźzĂĽgige Elektroausstattung!

Ade lästige Suche nach Steckdosen und tapsen im Dunkeln! In Ihrem Haus sind die Lichtschalter und Steckdosen alle am richtigen Platz.

* Praktische Leerverrohrungen fĂĽr die Zukunft!

Wir haben in die Zukunft gedacht! Es werden zahlreiche Leerverrohrungen zur nachträglichen Installation in Ihrem Haus eingebaut.

Zögern Sie nicht! Verschaffen Sie sich mit dem Exposé einen ersten Eindruck Ihres neuen Hauses und vereinbaren Sie anschließend ein unverbindliches Beratungsgespräch. Bereits über 30 Familien haben sich für unsere Häuser entschieden - werden Sie auch Teil der REGIOWERT Familie.

KAUFPREIS: EUR 499.000,00 belagsfertig
inklusive aller Anschlusskosten

Wir weisen darauf hin, dass zwischen dem Vermittler und dem zu vermittelnden Dritten ein familiäres oder wirtschaftliches Naheverhältnis besteht.

Der Vermittler ist als Doppelmakler tätig.

Infrastruktur / Entfernungen

Gesundheit
Arzt <750m
Apotheke <750m
Klinik <8.500m

Kinder & Schulen
Kindergarten <1.000m
Schule <1.250m

Nahversorgung
Supermarkt <1.000m
Bäckerei <3.000m

Sonstige
Bank <2.750m
Geldautomat <2.750m
Post <750m
Polizei <2.250m

Verkehr
Bus <250m
Bahnhof <500m
Autobahnanschluss <4.750m

Angaben Entfernung Luftlinie / Quelle: OpenStreetMap

Merkmale

  • 277 m² GrundstĂĽck

Realisiere Dein Projekt

Bausubstanz und Energie

Heizwärmebedarf (HWB)

B

Gesamtenergieeffizienz (fGEE)

  • Zustand der ImmobilieNeubau
  • HeizungsartFuĂźbodenheizung
  • EnergieträgerLuft-/Wasser-Wärmepumpe
Immowelt logo

Preisdetails

Kaufpreis
499000 €
3.992 €/m²
Provision für Käufer
3% des Kaufpreises zzgl. 20% USt.

Lage

address-icon
Brodersdorfer Straße, Unterwaltersdorf (2442)

Weitere Informationen

Stichworte Bundesland: Niederösterreich

Weitere Services

Lust auf eine Besichtigung?
Eine Frage zur Immobilie?
Nachricht hinzufĂĽgen
Mit der Nutzung der oben angegebenen Telefonnummer oder durch Klicken auf „Kontaktieren“ akzeptierst Du die Allgemeinen Nutzungsbedingungen, denen Du jederzeit widersprechen kannst. Weitere Informationen zum Datenschutz

Ăśber den Anbieter

Schubertallee 12, 7202 BAD SAUERBRUNN
partner badge
Partnerschaft
Immobilien PermoserDein Kontakt
Online-ID: 24pu55k
Referenznummer: OBGC202202281118230806edab56d67
Immobilien Permoser Gesellschaft m.b.H.
Bewertung: 5 von 5 Sternen
Nachricht hinzufĂĽgen
Mit der Nutzung der oben angegebenen Telefonnummer oder durch Klicken auf „Kontaktieren“ akzeptierst Du die Allgemeinen Nutzungsbedingungen, denen Du jederzeit widersprechen kannst. Weitere Informationen zum Datenschutz
Wie zufrieden bist du mit dieser Seite (nicht mit der Immobilie selbst)?