

DALEXIS ImmobilienService GmbH
Herr Florian Bauer
+49 ···
Nr. anzeigenPreise & Kosten
Provision für Käufer
keine Käuferprovision inkl. MwSt.
Wir bieten dieses Objekt abweichend von unseren AGB's PROVISIONSFREI für den Käufer an.
Lage
Die von uns angebotene Wohnung befindet sich in einer Wohnanlage in Unterschleißheim bei München.
nweit sämtlicher infrastruktureller Einrichtungen, die in wenigen Minuten erreichbar sind.
Unterschleißheim liegt im Norden der Landeshauptstadt und besticht verkehrstechnisch und durch eine hervorragende Anbindung...
Die Wohnung
Wohnungslage
9. Geschoss
Bezug
ab sofort
Derzeitige Nutzung
vermietet
Wohnanlage
Energie & Heizung
Warum sehe ich diese Anzeige? – Du siehst diese Anzeige basierend auf Ihrer Navigation auf unserer Website und den Suchkriterien, die du verwendet hast.
Energieausweistyp
Verbrauchsausweis
Gebäudetyp
Wohngebäude
Wesentliche Energieträger
GAS
Gültigkeit
29.04.2018 bis 28.04.2028
Effizienzklasse
E
Endenergieverbrauch
140,00 kWh/(m²·a)
Weitere Energiedaten
Energieträger
Gas
Heizungsart
Zentralheizung
Details
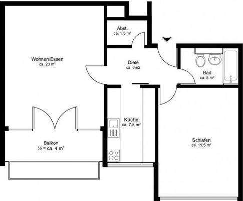
Objektbeschreibung
Wir präsentieren eine gut geschnittene, möblierte 2-Zimmer Wohnung im 9. OG einer gepflegten Mehrfamilien-Wohnanlage aus dem Baujahr 1973.
Auf ca. 64qm stehen ein großzügiges Schlafzimmer, ein bereits saniertes Bad mit Badewanne , WC, Waschbecken und Spiegelschrank, sowie Waschmaschine, ein Abstellraum, ein Flur, eine...
Ausstattung
Möblierte 2 Zimmer Wohnung in Unterschleißheim bei München
Die Wohnung ist aktuell für 1.190.- kalt + 60.-€ TG-Stellplatz vermietet.
Bad, Schlafzimmer, Abstellkammer, Küche, Wohnbereich mit Loggia
KFZ-Einzelstellplatz in der Tiefgarage (KP 25.000.- €)
provisionsfrei für den Käufer
Preisinformation
1 Tiefgaragenstellplatz, Kaufpreis: 25.000,00 EUR
Weitere Informationen
Sonstiges
DALEXIS Immobilien hat sich auf die Vermarktung von Wohnimmobilien für den Kapitalanleger und den Eigennutzer und die Vermietung spezialisiert.
Das DALEXIS Immobilienteam besteht aus zahlreichen Spezialisten mit langjähriger Reputation in der Immobilienbranche.
Diese Objektbeschreibung wurde...
Anbieter der Immobilie
DALEXIS ImmobilienService GmbH
Hirtenweg 6, 82031 Grünwald

Online-ID: 24t835d
Referenznummer: 6623
Finde Angebote wie dieses
Hier geht es zu unserem Impressum, den Allgemeinen Geschäftsbedingungen, den Hinweisen zum Datenschutz und nutzungsbasierter Online-Werbung.