

Gewerbeimmobilien Mergenthaler GmbH
Herr Rolf Schulten
071 ···
Nr. anzeigenPreise & Kosten
Kaution
3 Monatsmieten
Provision für Mieter
2,38 % Netto-Kaltmieten inkl. MwSt.
Warum sehe ich diese Anzeige? – Du siehst diese Anzeige basierend auf Ihrer Navigation auf unserer Website und den Suchkriterien, die du verwendet hast.
Lage
Öhringen ist eine moderne und dynamische Gemeinde mit rund 25.000 Einwohnern im Landkreis Hohenlohe ca.25 km von Heilbronn entfernt. Die Gemeinde verfügt über eine attraktive Lage mit sehr guter Verkehrsanbindung an die A6. Das breitgefächerte Schul-, Weiterbildungs- und Kulturangebot machen...
Die Industriefläche
Kategorie
Lagerhalle
Baujahr
1971
Bezug
sofort frei
Details
Objektbeschreibung
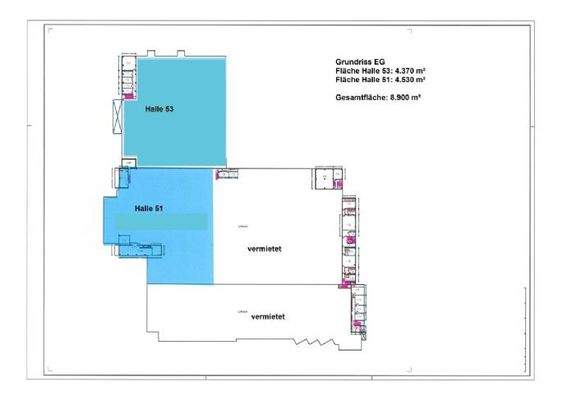
1-geschossige Lager-/Produktionshalle, unterteilt in Bauabschnitte, geeignet für Spedition, Lager, Produktion. Baujahr: 1971 und 2001. Büroräume können bei Bedarf angemietet werden.
Fläche: Lager - Halle 51 Fläche 4.530 m²
Büroflächen zu Halle 51 Fläche 520 m²
Fläche: Lager - Halle 53 Fläche 4.370...
Ausstattung
Die Hallen sind modern ausgestattet und mit Elektro-Rolltore (5 Stück) ausgestattet. Die Böden haben eine Traglast vom 5 t/m². Die Hallen sind befahrbar und haben eine Deckenhöhe von 9 m. Stellplätze sind zahlreich vorhanden. Büros sind bezugsfertig und mit einer Teeküche ausgestattet, Sozialräume sind ebenfalls...
Preisinformation
Nettokaltmiete: 6,00 EUR
Weitere Informationen
Sonstiges
Geschäfts- und Provisionsvereinbarungen
Sämtliche Angaben basieren auf den Daten, die uns vom Eigentümer / Vermieter genannt wurden, daher können wir keine Haftung für die Richtigkeit übernehmen. Dieses Angebot ist vom Empfänger vertraulich zu behandeln, jede Weitergabe an Dritte ohne Zustimmung des...
Anbieter der Immobilie

Gewerbeimmobilien Mergenthaler GmbH
Bahnhofstraße 4, 71332 Waiblingen

Online-ID: 24xsb5r
Referenznummer: G-9093
Finde Angebote wie dieses
Hier geht es zu unserem Impressum, den Allgemeinen Geschäftsbedingungen, den Hinweisen zum Datenschutz und nutzungsbasierter Online-Werbung.