Version: 8.24.0Navigation ĂĽberspringen
800.000 €
500 m²  â€˘  4.354 m² GrundstĂĽck
Immowelt logo

Haus zum Kauf
800000 €
1.600 €/m²
500 m²  â€˘  4.354 m² GrundstĂĽck

Historischer Altbau in Arnoldstein

Historischer Altbau in Arnoldstein:

Lage: Zentrale Lage unterhalb der Klosterruine von Arnoldstein.

ErschlieĂźung: Wasser-, Kanal- und StromanschlĂĽsse gegeben

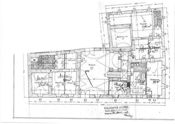
Grundstück: 4.354 m² komplett ebene Gesamtfläche, davon 1.091 m² bebaute Flächen. Eine Parzelle mit 2.010 m² entlang der Kärntnerstraße ist unbebaut und wird derzeit als Garten genutzt.

Widmung: Bauland-Geschäftsgebiet

Flächen: ca. 500 m² Wohnflächen und ca. 1.000 m² Hallen- u. Lagerflächen.

Gebäude: Historisches Bürgerhaus, welches vom Adelsgeschlecht der Pfanngauer Mitte des 15. Jahrhunderts auf Grundmauern römischen Ursprunges errichtet wurde. Das Gebäude teilt sich in einen als Wohnhaus genutztes Objekt mit einem ehemaligen Gastbetrieb im Erdgrschoss, welches in Richtung zum Marktplatz ausgerichtet ist und um zwei gewerblich genutzte Gebäude die zur Kärntnerstraße hin blicken. Die Wohnräumlichkeiten sind sehr großzügig aufgeteilt und im Stil eines Schlosses ausgebaut. Die gewerblich genutzten Flächen sind derzeit vermietet (kündbar).
In dem historischen Gebäude haben durch die Jahrhunderte einige gekrönte Häupter, darunter Kaiser Franz Josef und Kaiserin Sissi, sowie Kaiser Karl und Kaiserin Zita genächtigt.

Heizung: Ă–l-Zentralheizung in dem Wohnhaus, Hackschnitzelheizung in dem gewerblich genutzten Teil.

Der EigentĂĽmer der Liegenschaft wurde durch unser Unternehmen schriftlich ĂĽber die Vorlagepflicht eines Energieausweises laut Energieausweisvorlagesetz (EAVG) informiert, ist jedoch dieser Verpflichtung bisher nicht nachgekommen.

Merkmale

  • Bezug: nach Vereinbarung
  • 4.354 m² GrundstĂĽck
  • teilweise möbliert

Realisiere Dein Projekt

Bausubstanz und Energie

Der Anbieter hat keine Informationen zum Energieverbrauch bereit gestellt.
  • Baujahr1450
  • HeizungsartZentralheizung
  • EnergieträgerĂ–l
Immowelt logo

Preisdetails

Kaufpreis
800000 €
1.600 €/m²
Provision für Käufer
3 % + 20 % MwSt.

Lage

address-icon
Arnoldstein (9601)
Der Anbieter hat die genaue Adresse nicht freigegeben
Altstadt, öffentl. Verkehrsmittel, repräsentativ, Zentrum

Weitere Informationen

Stichworte 3 Etagen TV: Kabelanschluss, DVBT

Weitere Services

Lust auf eine Besichtigung?
Eine Frage zur Immobilie?
Nachricht hinzufĂĽgen
Mit der Nutzung der oben angegebenen Telefonnummer oder durch Klicken auf „Kontaktieren“ akzeptierst Du die Allgemeinen Nutzungsbedingungen, denen Du jederzeit widersprechen kannst. Weitere Informationen zum Datenschutz

Ăśber den Anbieter

Bahnhofplatz 9, 9500 VILLACH
partner badge
Partnerschaft
Herr Gerhard BARTADein Kontakt

Weitere Unterlagen

Online-ID: 24yat43
Referenznummer: 904/02833
BARTA Immobilientreuhand GmbH
Nachricht hinzufĂĽgen
Mit der Nutzung der oben angegebenen Telefonnummer oder durch Klicken auf „Kontaktieren“ akzeptierst Du die Allgemeinen Nutzungsbedingungen, denen Du jederzeit widersprechen kannst. Weitere Informationen zum Datenschutz
Wie zufrieden bist du mit dieser Seite (nicht mit der Immobilie selbst)?