
MUREK Immobilienmanagement GmbH
Herr Dustin Kistowski
053 ···
Nr. anzeigenPreise & Kosten
Kaution
600,00 €
Warum sehe ich diese Anzeige? – Du siehst diese Anzeige basierend auf Ihrer Navigation auf unserer Website und den Suchkriterien, die du verwendet hast.
Lage
Die Wohnung befindet sich in Lichtenstein / Sachsen, einem hübschen, ruhigen Städtchen im Landkreis Zwickau. Der Ort liegt sehr verkehrsgünstig zwischen den Autobahnen A4 und A72. Die nächsten größeren Städte sind Zwickau und Chemnitz.
Zahlreiche Einkaufsmöglichkeiten und öffentliche Einrichtungen sind auf kurzen...
Die Wohnung
Wohnungslage
2. Geschoss (Dachgeschoss)
Bezug
ab sofort
Derzeitige Nutzung
frei
Wohnanlage
Energie & Heizung
Warum sehe ich diese Anzeige? – Du siehst diese Anzeige basierend auf Ihrer Navigation auf unserer Website und den Suchkriterien, die du verwendet hast.
Energieausweistyp
Verbrauchsausweis
Gebäudetyp
Wohngebäude
Baujahr laut Energieausweis
1995
Wesentliche Energieträger
Gas
Gültigkeit
06.09.2018 bis 06.09.2028
Effizienzklasse
D
Endenergieverbrauch
100,00 kWh/(m²·a)
Weitere Energiedaten
Energieträger
Gas
Heizungsart
Zentralheizung
Details
Objektbeschreibung
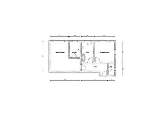
Im Angebot steht eine hübsche 2-Zimmer-Wohnung zur Miete in Lichtenstein / Sachsen.
Die Wohnung befindet sich im zweiten Obergeschoss eines gepflegten Wohn- und Geschäftshauses und umfasst ein Wohnzimmer und ein Schlafzimmer. Neben einer Küche mit Fenster und Fliesenspiegel ist ein gefliestes Tageslichtsbad mit...
Ausstattung
- zwei Zimmer (Wohnzimmer, Schlafzimmer)
- Küche mit Fenster und Fliesenspiegel
- gefliestes Tageslichtbad mit Badewanne
- Abstellkammer
- Fenster mit Jalousien
- Fußbodenbelag: Laminat
- Wechselsprechanlage
- Dachbodenabteil
- Kostenlose Kfz-Stellplätze auf dem Grundstück (soweit verfügbar)
Weitere Informationen
Sonstiges
Wir freuen uns auf Ihre Anfrage.
Stichworte
Sonstiges/Wohnen: Dachboden
Anbieter der Immobilie
MUREK Immobilienmanagement GmbH
Sorauer Straße 71, 03149 Forst
Online-ID: 24yhh5l
Referenznummer: 426-1-007
Finde Angebote wie dieses
Hier geht es zu unserem Impressum, den Allgemeinen Geschäftsbedingungen, den Hinweisen zum Datenschutz und nutzungsbasierter Online-Werbung.