Version: 8.25.1Navigation überspringen
227.900 €
2 Zimmer  •  55 m²  •  4. Geschoss  •  frei ab 01.07.2027
Immowelt logo

Terrassenwohnung zum Kauf • provisionsfrei
227900 €
4.145 €/m²
2 Zimmer  •  55 m²  •  4. Geschoss  •  frei ab 01.07.2027

Stadtpark-Residenz „Max Reger“ – Stilvoll wohnen im Herzen von Weiden - Terrassenwohnung im KfW 40 EE Standard

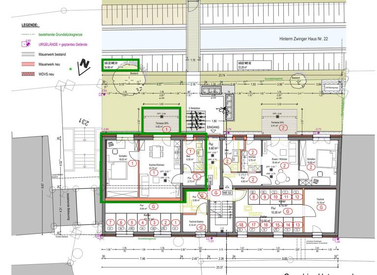
Mit der „Stadtpark-Residenz Max Reger“ entsteht in zentraler Innenstadtlage von Weiden in der Oberpfalz ein hochwertig revitalisiertes Wohnprojekt mit insgesamt 18 modernen Wohneinheiten. Das Gebäude, welches sich Hinterm Zwinger 22 befindet, wird derzeit umfassend und mit viel Sorgfalt generalsaniert. Ziel der Sanierung ist es, den besonderen Charakter des Bestandsgebäudes mit zeitgemäßem Wohnkomfort und modernster Energieeffizienz zu verbinden. Nach Abschluss der Bauarbeiten erfüllt das Gebäude den energieeffizienten KfW-40-EE-Standard (WPB) und setzt damit Maßstäbe im Hinblick auf Nachhaltigkeit, Energieeffizienz und vor allem Wohnqualität. Die Kombination aus moderner Gebäudetechnik, hochwertigen Baumaterialien und einer durchdachten Planung sorgt für ein zukunftssicheres Zuhause mit langfristig niedrigen Energiekosten. Die insgesamt 18 Wohnungen überzeugen durch helle Wohnräume, funktionale Grundrisse und eine moderne Ausstattung, die sowohl den Ansprüchen von Eigennutzern als auch von Kapitalanlegern gerecht wird. Je nach Einheit verfügen alle Wohnungen, welche zum angrenzenden Max-Reger-Park ausgerichtet sind, über attraktive Außenbereiche (Balkon oder Terrasse), wodurch zusätzlicher Wohnkomfort sowie eine einladende Atmosphäre geschaffen wird. Die Stadtpark-Residenz „Max Reger“ verbindet die Vorteile eines energetisch hochmodernen Wohngebäudes mit der Attraktivität einer zentralen Innenstadtlage – ein Wohnkonzept, das urbanes Leben, Nachhaltigkeit und Wohnqualität auf harmonische Weise vereint. Key-Facts zu angebotener Eigentumswohnung Zimmeranzahl: 2 Zimmer, Küche und Bad Wohnfläche: 54,98 m² Geschoss: Souterrain / Untergeschoss Außenbereich: Terrasse Hinweis: Die angebotene Wohneinheit ist nahezu deckungsgleich in den darüber liegenden Geschossen (EG, 1. OG, 2. OG, DG) verfügbar. Die Wohnung überzeugt durch eine durchdachte Raumaufteilung und ein angenehmes Wohnambiente. Großzügige Fensterflächen sorgen für helle, freundliche Räume und schaffen eine moderne Wohnatmosphäre. Dank der gelungenen Kombination aus moderner Ausstattung, effizienter Bauweise und attraktiver Lage eignet sich diese Wohnung sowohl ideal zur Eigennutzung als auch als langfristig wertstabile Kapitalanlage. Gerne können Sie jederzeit weitere Informationen, Details zur Ausstattung des Bauvorhabens sowie eine vollständige Preisliste aller Wohnungen telefonisch, per Mail oder bei einem persönlichen Gespräch bei uns erfragen. Wir freuen uns auf Ihre Anfrage.

Merkmale

  • frei ab 01.07.2027
  • Souterrain, 4. Geschoss
  • Badezimmer: Bad mit Dusche, Bad mit Fenster
  • Bodenbelag: Fliesen
  • Terrasse
  • Gartenmitbenutzung
  • Fernblick
  • Fenster: Holz
Hinweis: Die angebotene Wohneinheit ist nahezu deckungsgleich in den darüber liegenden Geschossen (EG, 1. OG, 2. OG, DG) verfügbar.

Grundrisse

Grundrisse
1 / 1

Realisiere Dein Projekt

Bausubstanz und Energie

Möchtest du Details zum Energieverbrauch?info_energy_calculation-icon
  • HaustypKfW 40
  • HeizungsartZentralheizung: Fußbodenheizung
  • EnergieträgerLuft-/Wasser-Wärmepumpe
Immowelt logo

Preisdetails

Kaufpreis
227900 €
4.145,14 €/m²
Provision für Käufer
provisionsfrei
Geschätzte Gesamtkosten
240.436 €1
Kaufpreis
227.900 €
Notarkosten (1,5%)
3.419 €
Grunderwerbsteuer (3,5%)
7.977 €
Grundbucheintrag (0,5%)
1.140 €
1Der angezeigte Wert ist eine automatisch berechnete Schätzung von immowelt.
2Bei den Angaben handelt es sich um ortsübliche Werte. Individuelle Kosten können abweichen.

Lage

address-icon
Hinterm Zwinger 22WeidenWeiden in der Oberpfalz (92637)
DIE STADT WEIDEN Weiden in der Oberpfalz hat sich als bedeutendes Oberzentrum der nördlichen Oberpfalz etabliert. Mit rund 43.000 Einwohnern zählt die Stadt zu den wichtigsten urbanen Standorten der Region und überzeugt durch eine gelungene Kombination aus wirtschaftlicher Stärke, hoher Lebensqualität und vielfältigem kulturellen Angebot. Ein besonderes Highlight stellt die historische Altstadt dar, die mit ihrem unverwechselbaren Charme begeistert. Malerische Giebelhäuser mit aufwendig gestalteten Fassaden prägen das Stadtbild und verleihen der Innenstadt ein einzigartiges Ambiente. Der zentrale Marktplatz, gelegen zwischen Oberem und Unterem Tor, bildet das lebendige Herz der Stadt. Umgeben von eindrucksvollen historischen Gebäuden, welche die Entwicklung Weidens über die Jahrhunderte hinweg widerspiegeln, finden hier regelmäßig Märkte und Veranstaltungen statt. Gleichzeitig präsentiert sich die Altstadt als lebendiger Treffpunkt modernen Lebens. Zahlreiche Cafés, Restaurants und individuelle Einzelhandelsgeschäfte laden zum Verweilen ein und schaffen eine harmonische Verbindung aus historischer Atmosphäre und zeitgemäßem Lifestyle. Die Stadtpark-Residenz „Max Reger“ profitiert in besonderem Maße von ihrer attraktiven, innenstadtnahen Lage. Die direkte Anbindung an den Max-Reger-Park sowie kurze Wege zu sämtlichen Einrichtungen des täglichen Bedarfs unterstreichen die hohe Standortqualität. Die unmittelbar angrenzende, großzügig gestaltete Parkanlage bietet neben Ruhe und Erholung auch vielfältige Freizeitmöglichkeiten für alle Altersgruppen, darunter ein zentral gelegener Spielplatz für Familien. VERKEHRSANBINDUNG Die Anbindung an den öffentlichen Personennahverkehr ist durch die fußläufige Erreichbarkeit des Zentralen Omnibusbahnhofs (ZOB) sowie weiterer Bushaltestellen sehr gut. Auch der Hauptbahnhof von Weiden befindet sich in komfortabler Distanz und gewährleistet eine schnelle Anbindung an das regionale sowie überregionale Verkehrsnetz.

Weitere Informationen

Sonstiges Hinweis: Die angebotene Wohneinheit ist nahezu deckungsgleich in den darüber liegenden Geschossen (EG, 1. OG, 2. OG, und DG) verfügbar. Alle Angaben beruhen auf Auskunft des Verkäufers und sind ohne Gewähr. Es fällt keine Käuferprovision an! Sonstiges Zeichnerische Ausdrucksmittel, perspektivische Ansichten sowie farbliche Abbildungen und Möblierungs- bzw. Ausstattungsvorschläge innerhalb dieser Anzeige sind nicht maßstäbliche Darstellungen aus Sicht des Illustrators und gelten nicht als Vertragsbestandteil. Maßgeblich für die Beschaffenheit und Ausführung des Bauvorhabens ist ausschließlich der beurkundete Kaufvertrag. Demnach stellt diese Anzeige lediglich eine Vorabinformation für potenzielle Käufer dar. Trotz sorgfältiger Überprüfung aller Angaben und Informationen kann keine Gewähr für Vollständigkeit, Richtigkeit und Aktualität übernommen werden. Änderungen, Abweichungen und Ergänzungen bleiben vorbehalten.

Weitere Services

Lust auf eine Besichtigung?
Eine Frage zur Immobilie?
Nachricht hinzufügen
Mit der Nutzung der oben angegebenen Telefonnummer oder durch Klicken auf „Kontaktieren“ akzeptierst Du die Allgemeinen Nutzungsbedingungen, denen Du jederzeit widersprechen kannst. Weitere Informationen zum Datenschutz

Über den Anbieter

Türlgasse 5, 92637 Weiden in der Oberpfalz
partner badge
Partnerschaft
Herr Brian Fritsch
Herr Brian FritschDein Kontakt

Weitere Unterlagen

Online-ID: 26GZE11NMG4F
BFW Immobilien e.K.
title
BFW Immobilien e.K.
Nachricht hinzufügen
Mit der Nutzung der oben angegebenen Telefonnummer oder durch Klicken auf „Kontaktieren“ akzeptierst Du die Allgemeinen Nutzungsbedingungen, denen Du jederzeit widersprechen kannst. Weitere Informationen zum Datenschutz
Wie zufrieden bist du mit dieser Seite (nicht mit der Immobilie selbst)?