

Wohnung zur Miete821 €2 Zimmer • 72 m² • 2. Geschoss
821 €
2 Zimmer • 72 m² • 2. Geschoss
Betreutes Wohnen frei! - aiutanda Lebenspark "Altes Lederwerk" Arnstadt
Merkmale
- 2. Geschoss
- Haustiere erlaubt
- Personenaufzug
- Keller
- Gartenmitbenutzung
- DSL-Anschluss
- Barrierefrei, Rollstuhlgerecht
- Bad mit Dusche
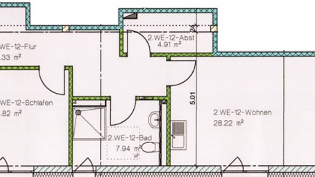
Grundrisse
Verschaffe dir einen genauen Überblick über die Raumaufteilung.

Realisiere Dein Projekt
Bausubstanz und Energie
Möchtest du Details zum Energieverbrauch?

- HeizungsartZentralheizung
Mietkosten
Warmmiete
1.094,83 €
Kaltmiete
11,41 €/m²
821,43 €
Nebenkosten
273,40 €
Heizkosten
in Nebenkosten enthalten
Kaution
3 Monatskaltmieten
Lage

Turnvater-Jahn-Str. 7, Arnstadt (99310)
Weitere Informationen
Weitere Services
Lust auf eine Besichtigung?
Eine Frage zur Immobilie?
Über den Anbieter
Peterstr. 5, 99084 Erfurt
Partnerschaft
Team CasemanagementDein Kontakt
Online-ID: 24LSY4XLFH2Z
Referenznummer: Altes Lederwerk WE 2.12
Aiutanda Thüringen GmbH
Bewertung: 4,3 von 5 Sternen
Wie zufrieden bist du mit dieser Seite (nicht mit der Immobilie selbst)?
