

Grundstück zum Kauf • provisionsfrei111000 €118 €/m²940 m² Grundstück • Baugenehmigung vorhanden
111000 €
118 €/m²
940 m² Grundstück • Baugenehmigung vorhanden
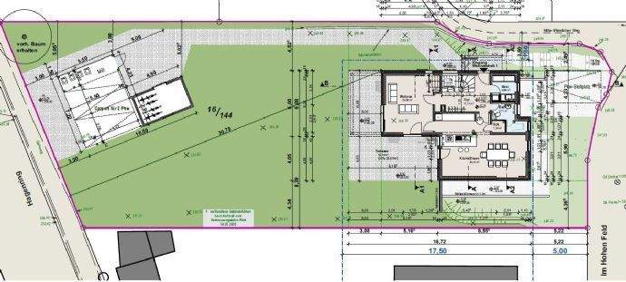
Grundstück mit Blick und genehmigungsfähiger Planung für 2 WE ca.237m²+Kellerraum und Doppelcarport in Friedland
Merkmale
- 940 m² Grundstück
- Fernblick
- voll erschlossen
- Strom, Gas, Telekommunikation, Wasser
Realisiere Dein Projekt
Bausubstanz und Energie
Der Anbieter hat keine Informationen zu Energieverbrauch oder Zustand der Immobilie bereit gestellt.
Preisdetails
Kaufpreis
111000 €
118,09 €/m²
Provision für Käufer
provisionsfrei
Geschätzte Gesamtkosten
111.000 €1
Kaufpreis
111.000 €
1Der angezeigte Wert ist eine automatisch berechnete Schätzung von immowelt.
Lage

Im Hohen Feld 5, Friedland (37133)
Weitere Informationen
Weitere Services
Lust auf eine Besichtigung?
Eine Frage zur Immobilie?
Über den Anbieter
Online-ID: 254w358
L. Baumbach Projekt GmbH
Wie zufrieden bist du mit dieser Seite (nicht mit der Immobilie selbst)?

