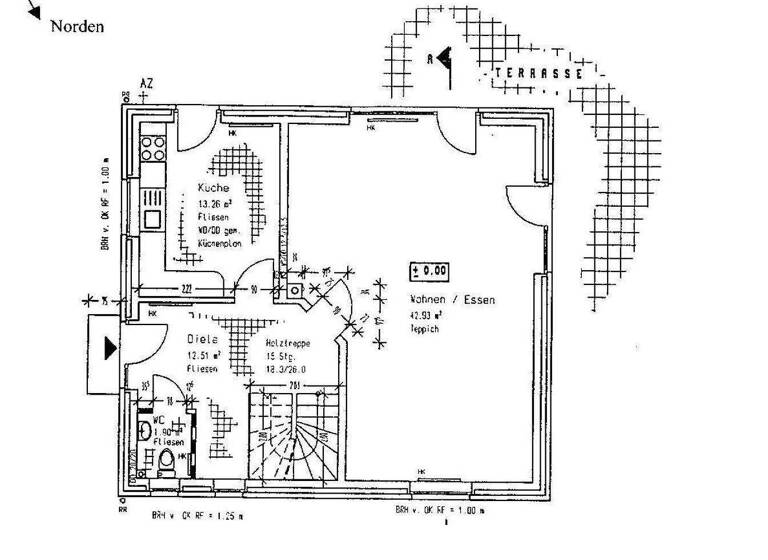
Das im Jahr 2000 in konventioneller Bauweise errichtete Einfamilienhaus verfügt im Erdgeschoss über ein großzügiges Wohn- / Esszimmer (42 qm), eine Küche (13 qm) mit Terrassenzugang sowie ein Gäste-WC und einen sehr großzügigen Eingangsbereich. Das WZ ist mit Parkett ausgelegt, alle anderen Räume im EG sind gefliest. Im Obergeschoss befinden sich 3 großzügige Räume sowie ein Vollbad mit 2 Waschbecken, einer Dusche und einer Badewanne. Die Fenster sind zum großen Teil mit Rolläden ausgestattet; die bodentiefen Fenster im EG sind mit Rolllädenkästen vorgerüstet. Im KG sind sämtliche Räume gefliest; im größten Kellerraum (Hobbyraum) ist außerdem ein Heizkörper vorhanden. Zusätzliche Abstellflächen befinden sich im Spitzboden des Hauses, der über eine Einschubtreppe erreichbar ist. Die Heizungsanlage wurde im Oktober 2021 erneuert. Es handelt sich um eine moderne Brennwertheizung von Junkers. Aktuell ist ein Stellplatz vorhanden. Die Errichtung eines zweiten Stellplatzes sowie eines Carports ist möglich.
Merkmale
Bezug: sofort
517 m² Grundstück
Einbauküche
Keller
Außen-Stellplatz
Garten
Terrasse
Badewanne
Grundrisse
Grundrisse
1 / 3
Realisiere Dein Projekt
Bausubstanz und Energie
Energieausweis
C
Baujahr2000
Zustand der ImmobilieGepflegt
HeizungsartZentralheizung
EnergieträgerGas
Preisdetails
Kaufpreis
717000 €717.000 €
5.549,54 €/m²
Provision für Käufer
provisionsfrei; keine Provision, courtagefrei
Weitere Preisinformationen
1 Stellplatz
Geschätzte Gesamtkosten
777.945 €1
Kaufpreis
717.000 €
Kaufnebenkosten
60.945 €
2
Notarkosten (1,5%)
10.755 €
Grunderwerbsteuer (6,5%)
46.605 €
Grundbucheintrag (0,5%)
3.585 €
1Der angezeigte Wert ist eine automatisch berechnete Schätzung von immowelt.
2Bei den Angaben handelt es sich um ortsübliche Werte. Individuelle Kosten können abweichen.
Lage
Eielkampsweg 27, HALSTENBEK (25469)
Der Eielkampsweg ist eine ruhige Anliegerstraße. Das Objekt liegt in zweiter Reihe. Der Garten ist nach Süden ausgerichtet. - Halstenbek verfügt über 2 Autobahnanschlüsse an die A23 und ist 17 km vom Hamburger zentrum entfernt. Der Ort verfügt über eine sehr gute Infrastruktur mit mehreren Kitas, sämtlichen Schulen, Einzelhandel des täglichen Bedarfs. Das Objekt befindet sich im 750-m-Radius um die S-Bahn-Station Halstenbek (Linie S3). Infrastruktur (im Umkreis von 5 km): Apotheke, Lebensmittel-Discount, Allgemeinmediziner, Kindergarten, Grundschule, Gymnasium, Gesamtschule, Öffentliche Verkehrsmittel
Weitere Informationen
Sonstiges
Heizungsart: Zentralheizung Energieträger: Gas
Makleranfragen nicht erwünscht. Nach § 7 UWG sind unaufgeforderte Kontaktaufnahmen durch Makler ohne ausdrückliche Einwilligung des Empfängers verboten!
ohne-makler (OM) ist weder Anbieter noch Vermittler der Immobilie. OM betreibt eine Plattform für Immobilieneigentümer, die unter anderem die gleichzeitige Veröffentlichung einzelner Inserate auf mehreren Immobilienportalen ermöglicht. Die Inhalte dieser Inserate werden ausschließlich von Dritten verantwortet. Für die Richtigkeit, Vollständigkeit oder Rechtmäßigkeit der Angaben übernimmt OM keine Haftung. Hinweise auf mögliche Rechtsverstöße können jederzeit gemeldet werden und werden nach Prüfung umgehend bearbeitet.
Stichworte
Stellplatz vorhanden, Nutzfläche: 68,00 m², Anzahl der Schlafzimmer: 3, Anzahl der Badezimmer: 1, Anzahl der separaten WCs: 1, Anzahl Terrassen: 1, Bundesland: Schleswig-Holstein, 2 Etagen