Version: 8.25.1Navigation überspringen
499.335 €
125 m²  •  338 m² Grundstück
Immowelt logo

Haus zum Kauf
499335 €
3.995 €/m²
125 m²  •  338 m² Grundstück

Energieeffiziente Doppelhaushälfte inkl. Photovoltaikanlage und Luftwärmepumpe - Haus B

Pottendorf - Landegg

Ein durchdachter Hingucker: Ihre Freunde werden Sie beneiden!
In rund 125 m² Wohnfläche können Sie sich ausbreiten und das moderne Wohngefühl und die lichtdurchfluteten Räume genießen. Lassen Sie sich durch die zahlreichen bereits gebauten Grundrisse inspirieren und passen Sie die Innenwände nach Ihren Wünschen und Bedürfnissen an. Der Blick in das Obergeschoss verrät, dass dieses ganz ohne Dachschrägen auskommt und dadurch in allen Räumen eine überdurchschnittliche Raumhöhe genutzt werden kann. Bei der Planung Ihres Niedrigenergiehauses achten wir, nicht nur auf die Energieeffizienz, um die Heizkosten gering zu halten, sondern auch darauf jeden Quadratmeter sinnvoll zu nutzen. Dadurch können wir unnötige Flächen und in weiterer Folge Baukosten verhindern und Ihnen im Alltag kurze Wege ermöglichen.

Ihr Haus im Überblick!
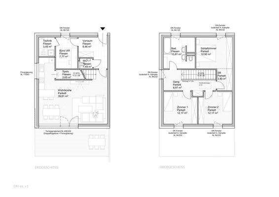
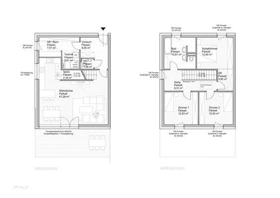
Grundstücksgröße: ca. 338 m²| Wohnfläche: ca. 125 m²
Erdgeschoss: großes Wohn- und Esszimmer mit offener Küche, Speis, Büro, Technikraum, WC, Vorraum
Obergeschoss: Schlafzimmer, zwei Kinderzimmer, Badezimmer inkl. WC
Heizung: Fußbodenheizung über Luftwärmepumpe | HWB: 28,1 kwh/m²a | fGEE: 0,60

Der Garten und die Terrasse bieten viel Platz für Spiel und Spaß. Entspannen Sie, lassen Sie die Seele baumeln und genießen Sie Ihr Paradies. Praktischerweise ist der Außenbereich von der Straße aus zugängig, wodurch Gartengeräte nicht durch das Wohnzimmer geschleppt werden müssen. Der Einkauf hingegen ist dank der Parkplätze neben dem Eingang im Handumdrehen hineingetragen.

Das ist drinnen: Damit können Sie rechnen!
Hier ein kleiner Einblick, alles weitere finden Sie in unserem Exposé beziehungsweise kann unser Projektleiter beantworten!

* Profitieren Sie dank der Qualitätsprodukte aus Österreich von einer hohen Produktqualität und einer hohen Lebensdauer!

* Bramac Markendach
* Josko Fenster 3-fach Verglasung (inkl. Spaltlüftung)
* Wienerberger Qualitätsziegel
* Ökologischer Baustoff
* Baumit Qualitätsfassadendämmung
* Viessmann Luftwärmepumpe

* Alles in Massivbauweise!
Ein Haus für Generationen! Sie profitieren, von einem hohen Werterhalt, ausgeglichenen Raumklima und einer hohen Energieeffizienz.
* Doppelwandbauweise zum Nachbarn!
REGIOWERT Doppelhäuser werden, wie zwei eigenständige Gebäude errichtet. Sie genießen dadurch einen erhöhten Schallschutz.
* Großzügige Elektroausstattung!

Ade lästige Suche nach Steckdosen und tapsen im Dunkeln! In Ihrem Haus sind die Lichtschalter und Steckdosen alle am richtigen Platz.

* Praktische Leerverrohrungen für die Zukunft!

Wir haben in die Zukunft gedacht! Es werden zahlreiche Leerverrohrungen zur nachträglichen Installation in Ihrem Haus eingebaut.

Zögern Sie nicht! Verschaffen Sie sich mit dem Exposé einen ersten Eindruck Ihres neuen Hauses und vereinbaren Sie anschließend ein unverbindliches Beratungsgespräch. Bereits über 30 Familien haben sich für unsere Häuser entschieden - werden Sie auch Teil der REGIOWERT Familie.

KAUFPREIS: EUR 499.335,-- belagsfertig
inklusive aller Anschlusskosten

Infrastruktur / Entfernungen

Gesundheit
Arzt <1.500m
Apotheke <2.000m
Klinik <4.000m

Kinder & Schulen
Kindergarten <1.000m
Schule <1.000m

Nahversorgung
Supermarkt <1.500m
Bäckerei <2.000m

Sonstige
Bank <2.000m
Geldautomat <2.000m
Post <2.000m
Polizei <2.000m

Verkehr
Bus <500m
Bahnhof <1.000m
Autobahnanschluss <2.500m

Angaben Entfernung Luftlinie / Quelle: OpenStreetMap

Merkmale

  • 338 m² Grundstück

Grundrisse

Verschaffe dir einen genauen Überblick über die Raumaufteilung.selection_property_house-icon

Realisiere Dein Projekt

Bausubstanz und Energie

Heizwärmebedarf (HWB)

B

Gesamtenergieeffizienz (fGEE)

  • Zustand der ImmobilieNeubau
  • HeizungsartFußbodenheizung
  • EnergieträgerLuft-/Wasser-Wärmepumpe
Immowelt logo

Preisdetails

Kaufpreis
499335 €
3.994,68 €/m²
Provision für Käufer
3% des Kaufpreises zzgl. 20% USt.

Lage

address-icon
Pottendorf (2486)

Weitere Informationen

Stichworte Bundesland: Niederösterreich

Weitere Services

Lust auf eine Besichtigung?
Eine Frage zur Immobilie?
Nachricht hinzufügen
Mit der Nutzung der oben angegebenen Telefonnummer oder durch Klicken auf „Kontaktieren“ akzeptierst Du die Allgemeinen Nutzungsbedingungen, denen Du jederzeit widersprechen kannst. Weitere Informationen zum Datenschutz

Über den Anbieter

Schubertallee 12, 7202 BAD SAUERBRUNN
partner badge
Partnerschaft
Immobilien PermoserDein Kontakt
Online-ID: 238U3ACVFRS4
Referenznummer: OBGC202206131608581456a4458a05f
Immobilien Permoser Gesellschaft m.b.H.
Bewertung: 5 von 5 Sternen
Nachricht hinzufügen
Mit der Nutzung der oben angegebenen Telefonnummer oder durch Klicken auf „Kontaktieren“ akzeptierst Du die Allgemeinen Nutzungsbedingungen, denen Du jederzeit widersprechen kannst. Weitere Informationen zum Datenschutz
Wie zufrieden bist du mit dieser Seite (nicht mit der Immobilie selbst)?