Version: 8.24.0Navigation überspringen
1.299.800 €
80,1 m²  •  314,2 m² Grundstück
Immowelt logo

Gewerbeobjekt zum Kauf • als Kapitalanlage geeignet
1299800 €
16.227 €/m²
80,1 m²  •  314,2 m² Grundstück

Sanierter Altbau mit Teilungserklärung, 1 GE + 6 WE, Balkone, umzäunter Innenhof, Keller

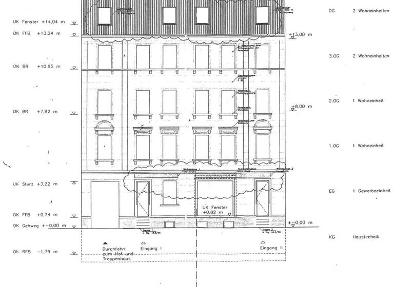
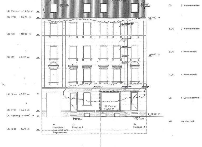
Bei der angebotenen Immobilie handelt es sich um ein saniertes Wohn- und Geschäftshaus im Leipziger Stadtteil Probstheida.

Die Immobilie ist denkmalgeschützt, besteht aus EG + 4 Geschosse und ist voll unterkellert.

Zum Teil wurden 2 Wohneinheiten zu 1 zusammengelegt.

Zusätzliche Abstellräume befinden sich jeweils auf halber Treppe und bieten weitere Nutzfläche.

Ebenfalls überzeugt das Objekt mit einem umzäunten Innenhof zur gemeinschaftlichen Nutzung, wo sich auch der Müllplatz gut zugänglich befindet und ein Schuppen zum unterstellen von Fahrrädern oder Kinderwagen etc..

Für diese Immobilie liegt eine Teilungserklärung vor.

Die Wohnungen sind derzeit leer, bzw. kurzfristig bewohnt mit 3-monatiger Kündigungsfrist.
Der Laden im EG ist langfristig vermietet mit einer aktuellen JNKM von 24.000 €.

Merkmale

  • Bezug: sofort
  • vermietet
  • 314,2 m² Grundstück
  • Denkmalschutz-Afa
- sanierter Altbau (2015 bis 2020)
- 6 Geschosse: KG, EG, 1. bis 3. OG, DG
- Denkmalschutz-Gebäude
- Teilungserklärung vorhanden
- Gaszentralheizung
- EG mit Gastronomieabluft über Dach
- 1 Abstellraum pro Etage (halbe Treppe tiefer)
- 2 Wohnungen pro Etage (zum Teil sind 2 Wohnungen zu 1 verbunden worden)
- Boden: Laminat, Fliesen
- Bäder mit Fenstern
- 1.OG bis 3.OG mit Süd-West-Balkonen
- DG mit Loggien
- Kellerabteil für jede Wohnung
- eingezäunter Innenhof
- Müllplatz im Hof

Grundrisse

Grundrisse
1 / 6

Realisiere Dein Projekt

Bausubstanz und Energie

Der Anbieter hat keine Informationen zum Energieverbrauch bereit gestellt.
  • Zustand der ImmobilieAltbau (bis 1945), renoviert / saniert
  • HeizungsartZentralheizung
  • EnergieträgerGas
Immowelt logo

Preisdetails

Kaufpreis
1299800 €
16.227,22 €/m²
Provision für Käufer
7,14 % inkl. MwSt.
Der Käufer verpflichtet sich, bei Abschluss eines Kaufvertrags eine einmalige Maklerprovision in o.g. Höhe aus dem Gesamtentgelt für das Auftragsobjekt an den Makler zu zahlen. Weitere Informationen siehe Provisionshinweis.
Geschätzte Gesamtkosten
1.443.688 €1
Kaufpreis
1.299.800 €
Notarkosten (1,5%)
19.497 €
Grunderwerbsteuer (5,5%)
71.489 €
Provision für Käufer (3,57%)
46.403 €
Grundbucheintrag (0,5%)
6.499 €
1Der angezeigte Wert ist eine automatisch berechnete Schätzung von immowelt.
2Bei den Angaben handelt es sich um ortsübliche Werte. Individuelle Kosten können abweichen.

Lage

address-icon
ProbstheidaLeipzig (04289)
Der Anbieter hat die genaue Adresse nicht freigegeben
Die angebotene Immobilie liegt im Stadtteil Probstheida.

Probstheida ist ein Stadtteil im Südosten Leipzigs.
Die benachbarten Ortsteile sind, im Uhrzeigersinn im Norden beginnend, Stötteritz, Holzhausen, Meusdorf, Dölitz-Dösen, Lößnig, Marienbrunn und Zentrum-Südost.

In unmittelbarer Nähe befinden sich die Herzklinik, die Alte Messe, das Völkerschlachtdenkmal, diverse Einkaufsmöglichkeiten, Banken, Ärzte, Schulen, Kindergärten und Restaurants.
In ca. 400 m befindet sich der älteste Leipziger Fußballverein.

Die Leipziger Innenstadt, sowie die A14 + A38 ist in nur wenigen Minuten mit den öffentlichen Nahverkehrsmitteln oder Auto erreichbar.

Weitere Informationen

Provisionshinweis 7,14 % inkl. MwSt.
Der Käufer verpflichtet sich, bei Abschluss eines Kaufvertrags eine einmalige Maklerprovision in o.g. Höhe aus dem Gesamtentgelt für das Auftragsobjekt an den Makler zu zahlen. Die Provision wird bei Vertragsabschluss fällig. Als Vertragsabschluss gilt die Beurkundung des Kaufvertrags. Sonstiges Die von uns gemachten Angaben haben wir nach bestem Wissen und Gewissen nach Informationen des Vermieters/Verkäufers und den uns übergebenen Informationen zusammengestellt. Eine Gewähr für diese Angaben können wir nicht übernehmen. Wichtige Zahlen und Informationen sind am Objekt zu überprüfen.
Zwischenvermietung/Verkauf bleibt vorbehalten. Stichworte Wohnfläche: 466,67 m², Nutzfläche: 80,10 m², Sonstige Fläche: 5,52 m², Kellerfläche: 74,58 m², Anzahl der Wohneinheiten: 6, Anzahl der Gewerbeeinheiten: 1

Weitere Services

Lust auf eine Besichtigung?
Eine Frage zur Immobilie?
Nachricht hinzufügen
Mit der Nutzung der oben angegebenen Telefonnummer oder durch Klicken auf „Kontaktieren“ akzeptierst Du die Allgemeinen Nutzungsbedingungen, denen Du jederzeit widersprechen kannst. Weitere Informationen zum Datenschutz

Über den Anbieter

Hillerstraße 3, 04109 Leipzig
partner badge
6 Jahre Partnerschaft
Herr Ron Kaufmann
Herr Ron KaufmannDein Kontakt
Online-ID: 2nhvp52
Referenznummer: 302k42#yWqe1d
IC IMMOCONSULT e.K.
title
IC IMMOCONSULT e.K.
Bewertung: 4,8 von 5 Sternen
Nachricht hinzufügen
Mit der Nutzung der oben angegebenen Telefonnummer oder durch Klicken auf „Kontaktieren“ akzeptierst Du die Allgemeinen Nutzungsbedingungen, denen Du jederzeit widersprechen kannst. Weitere Informationen zum Datenschutz
Wie zufrieden bist du mit dieser Seite (nicht mit der Immobilie selbst)?