Version: 8.22.4Navigation überspringen
16 €
Immowelt logo

Büro zur Miete
16 Euro pro Quadratmeter

Moderne Büro-/Praxisfläche unweit von U3 Kendlerstraße

Highlights 

* Effiziente Aufteilung
* Ideal auch als Arzt- oder Physiotherapie Praxis
* Hochwertige Ausstattung
* Sehr gute Anbindung

Das Objekt

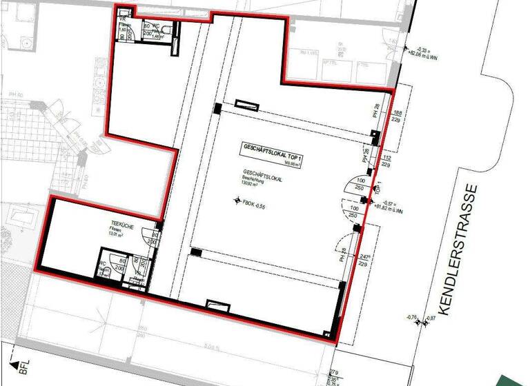
In der Sankt-Gotthard-Straße im 14. Wiener Gemeindebezirk gelangt diese schöne Geschäftsfläche ab sofort zur Vermietung (Mietbeginn nach Absprache). Die Fläche befindet sich im Erdgeschoss und ist barrierefrei zugänglich. Das Objekt verfügt über einen großen Verkaufsraum, sowie mehrere Büros und Besprechungsräume, einen Aufenthaltsraum, eine Teeküche, sowie drei getrennte Toiletten. Die Aufteilung ist je nach Bedarf und in Absprache mit den Vermietern flexibel gestaltbar. 

Das Haus verfügt über eine Tiefgarage in der zusätzlich zwei Stellplätze angemietet werden können. Die monatliche Vorschreibung hierfür beläuft sich auf EUR 87,50 zzgl. 20% USt. pro Stellplatz. 

Die großen Fensterfronten garantieren Helligkeit und gleichzeitig gute Sichtbarkeit für Passanten. Das Objekt ist straßenseitig erreichbar. Die hochwertige Ausstattung garantiert einen repräsentativen Unternehmensauftritt. Das Haus ist in einem makellosen Zustand. 

Ausstattung

* Getrennte Toiletten
* Teeküche
* 3 Büroräume
* Besprechungsräume
* Bodentiefe Fenster 
* Küche  

LAGE

Der 14. Bezirk, auch als Penzing bekannt, ist ein charmanter und vielseitiger Bezirk, welcher eine breite Palette von Annehmlichkeiten für seine Bewohner bietet. Die Infrastruktur ist hervorragend entwickelt und bietet eine ausgezeichnete Lebensqualität. Der Bezirk zeichnet sich durch eine gelungene Mischung aus Wohn- und Geschäftsgebieten aus, wodurch die meisten Dienstleistungen bequem zu Fuß erreichbar sind.

Die Anbindung an den öffentlichen Verkehr ist ausgezeichnet. Die U-Bahn-Linie U3 verläuft durch den Bezirk und bietet eine schnelle Verbindung zur Innenstadt. Darüber hinaus gibt es mehrere Buslinien, die Penzing mit anderen Teilen der Stadt verbindet.

 

VERKEHRSANBINDUNG

* U-Bahn: U3 
* Straßenbahn: 10, 46, 49
* Bus: 12A, 48A
* Bahn: Bahnhof Breitensee
* PKW: in 15 Minuten bei der Westausfahrt Wien

* Alle Preise verstehen sich zuzüglich der gesetzlichen Umsatzsteuer.

Infrastruktur / Entfernungen

Gesundheit
Arzt <500m
Apotheke <250m
Klinik <1.000m
Krankenhaus <1.250m

Kinder & Schulen
Schule <250m
Kindergarten <250m
Universität <750m
Höhere Schule <1.000m

Nahversorgung
Supermarkt <250m
Bäckerei <500m
Einkaufszentrum <1.000m

Sonstige
Geldautomat <250m
Bank <250m
Post <250m
Polizei <750m

Verkehr
Bus <250m
U-Bahn <250m
Straßenbahn <250m
Bahnhof <250m
Autobahnanschluss <5.250m

Angaben Entfernung Luftlinie / Quelle: OpenStreetMap

Merkmale

  • Erdgeschoss
  • Teeküche
  • Barrierefrei
  • Bodenbelag: Fliesen

Grundrisse

Grundrisse
1 / 1

Realisiere Dein Projekt

Bausubstanz und Energie

Heizwärmebedarf (HWB)

B

Gesamtenergieeffizienz (fGEE)

A+
  • HeizungsartZentralheizung
Immowelt logo

Mietkosten

Nettokaltmiete
16 €/m²
2.399,68 €
Betriebskosten
337,45 €
Provision für Mieter
3 Bruttomonatsmieten zzgl. 20% USt.
Kaution
3-6 Bruttomonatsmieten
Weitere Preisinformationen
Nettokaltmiete: 2.399,68 EUR

Lage

address-icon
Sankt-Gotthard-StraßeWien (1140)
Kendlerstraße, Schmelz, Penzing

Weitere Informationen

Stichworte Nutzfläche: 149,98 m², Anzahl der separaten WCs: 2, Bundesland: Wien

Weitere Services

Lust auf eine Besichtigung?
Eine Frage zur Immobilie?
Nachricht hinzufügen
Mit der Nutzung der oben angegebenen Telefonnummer oder durch Klicken auf „Kontaktieren“ akzeptierst Du die Allgemeinen Nutzungsbedingungen, denen Du jederzeit widersprechen kannst. Weitere Informationen zum Datenschutz

Über den Anbieter

Marc-Aurel-Straße 6/6, 1010 WIEN
partner badge
3 Jahre Partnerschaft
Frau Cornelia PflugDein Kontakt
Online-ID: 2mwxr5z
Referenznummer: OBGC202601091524128962261672600
EDEX Immobilien GmbH
EDEX Immobilien GmbH
Bewertung: 5 von 5 Sternen
Nachricht hinzufügen
Mit der Nutzung der oben angegebenen Telefonnummer oder durch Klicken auf „Kontaktieren“ akzeptierst Du die Allgemeinen Nutzungsbedingungen, denen Du jederzeit widersprechen kannst. Weitere Informationen zum Datenschutz
Wie zufrieden bist du mit dieser Seite (nicht mit der Immobilie selbst)?