
Knipfer Immobilien
Herr Anton Knipfer
004 ···
Nr. anzeigenPreise & Kosten
Provision für Käufer
Bitte beachte, das Angebot kann bei Vertragsabschluss die Zahlung einer Provision beinhalten. Weitere Informationen erhältst Du vom Anbieter.
Lage
Jazmines, ein Paradies mit Blick auf das Mittelmeer, befindet sich in einer der exklusivsten Gegenden der Urbanisation Cumbre del Sol.
Ein einzigartiges und harmonisches architektonisches Ensemble, in dem die Villen so entworfen wurden, dass sie die wunderbare Enklave, in der sie sich befinden, genießen können, in der...
Das Haus
Kategorie
Villa
Baujahr
2022
Bezug
nach Vereinbarung
Energie & Heizung
Warum sehe ich diese Anzeige? – Du siehst diese Anzeige basierend auf Ihrer Navigation auf unserer Website und den Suchkriterien, die du verwendet hast.
Weitere Energiedaten
Heizungsart
Luft-/Wasser-Wärmepumpe
Details
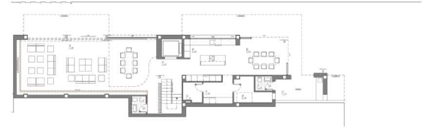
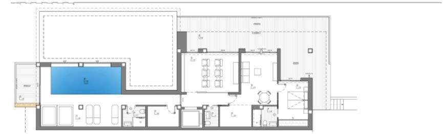
Objektbeschreibung
Villa Marblau ist eine exklusive Immobilie mit gro?flächigen Räumen, in denen es ein Vergnügen ist, Gäste zu empfangen. Das exklusive Design auf einem 2.000m2 gro?en Grundstück, verfügt über 5 Schlafzimmer und 9 Badezimmer sowie die Möglichkeit, es um ein weiteres Schlafzimmer zu erweitern.
Villa Marblau zeichnet sich...
Weitere Informationen
Sonstiges
Sehr gerne zeigen wir Ihnen diese Villa sowie auch gerne alle anderen noch verfügbaren Villen!
Bitte kontaktieren Sie uns zur Terminvereinbarung. Wir freuen uns auf Ihren Kontakt!
KNIPFER IMMOBILIEN
Stichworte
Nutzfläche: 1.401,00 m², Anzahl der Schlafzimmer: 5, Anzahl der Badezimmer: 9...
Anbieter der Immobilie
Knipfer Immobilien
Benzstr. 10 a, 86420 Diedorf
Online-ID: 25btb5y
Referenznummer: KIMMO-12817AJ039
Finde Angebote wie dieses
Hier geht es zu unserem Impressum, den Allgemeinen Geschäftsbedingungen, den Hinweisen zum Datenschutz und nutzungsbasierter Online-Werbung.