Version: 8.22.4Navigation ĂĽberspringen
16,11 €
5 Zimmer
Immowelt logo

Bürofläche zur Miete • provisionsfrei
16,11 Euro pro Quadratmeter
5 Zimmer

Zentrumsnahe großzügige Bürofläche - Riedenburg!

Zentrumsnahes BĂĽro im 1.OG in der Riedenburg
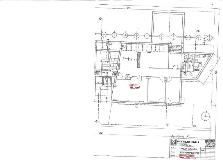
Büro: 135,50 m²
Miete netto: € 2,022,-
BK brutto: € 699,24
1x TG-Stellpl. + 1x in TG-Stapelparkanlage Nr.: 6 + 2

Mietverträge werden auf 3 Jahre abgeschlossen
Kaution: 3 Brutto-Monatsmieten inkl. BK
Energieausweis: HWB 64,8 kWh/m²a
Tiefgarage, Lift, Allgemeinräume vorhanden
Hausverwaltung: Aschbacher Immobilienverwaltung
Bezug ab sofort möglich

Merkmale

  • Bezug: sofort
  • Personenaufzug
  • 2 Stellplätze: 2 Tiefgaragenstellplätze
- Zwei Stellplätze in der Tiefgarage (1x Stapelparkanlage)
- Zentralheizungsanlage
- Aufzug ab Tiefgaragenebene
- Solide Massivbauweise mit viel Belichtungsflächen
- Fenster bzw. großflächige Schiebetüren bringen viel Licht in die Büroflächen der Südseite
- Zentrumsnahe ruhige Lage mit hoher Lebensqualität (5 Minuten zu Fuß in den Festspielbezirk bzw. Altstadt)
- Beste Infrastruktur
- Ansprechende Architektur (Architekturpreis)

Ausstattung:

- Vorraum/Gang (alle Räume vom Gang aus begehbar)
- 2 WC´s mit Handwaschbecken (1x Herren, 1x Damen)
- EmpfangsbĂĽro links
- GroĂźraumbĂĽro links
- Großbüro rechts mit großflächigen Doppelschiebetüren und Grünfläche davor
- weitere 2 BĂĽros rechts
- Technikraum
- Raum fĂĽr TeekĂĽche bzw. Sozialraum

Grundrisse

Grundrisse
1 / 1

Realisiere Dein Projekt

Bausubstanz und Energie

Heizwärmebedarf (HWB)

C

Gesamtenergieeffizienz (fGEE)

  • Baujahr1990
Immowelt logo

Mietkosten

Gesamtmiete
2.881,74 €
Nettokaltmiete
16,11 €/m²
1.818,75 €
Betriebskosten
699,24 €
Umsatzsteuer
363,75 €
Provision fĂĽr Mieter
provisionsfrei
Kaution
keine Angabe
Weitere Preisinformationen
2 Tiefgaragenstellplätze
Nettokaltmiete: 1.818,75 EUR

Lage

address-icon
Salzburg (5020)
Der Anbieter hat die genaue Adresse nicht freigegeben
Die geräumige Wohnung befinden sich im EG, (1. Ebene über Straßenniveau) in einer ruhigen Seitenstraße in der zentrumsnahen feinen Umgebung der Riedenburg, sowie die ansprechende zeitlos moderne Architektur des Bauwerks vermitteln guten Stil und Wohlbefinden.
Fußläufig auf kurzem Weg durchs Neutor ist der Festspielbezirk und die Innenstadt schnell erreicht. Öffentliche Verkehrsanbindungen und Geschäfte in unmittelbarer Nähe.
Der Mönchsberg hinter dem Haus bzw. der nahe Rainberg bieten Natur pur-Erlebnis und Naherholung um die Ecke.

Modernes Wohnhaus mit nur 11 Einheiten.
Das Gebäude erschließt sich über das Untergeschoß, verfügt über eine Tiefgarage und einen Lift.
Kellerabteil zur Wohnung sowie Allgemeinräume wie Waschküche und Fahrradabstellraum sind vorhanden.

Weitere Informationen

Stichworte Nutzfläche: 135,50 m², Anzahl der separaten WCs: 2, Bundesland: Salzburg

Weitere Services

Lust auf eine Besichtigung?
Eine Frage zur Immobilie?
Nachricht hinzufĂĽgen
Mit der Nutzung der oben angegebenen Telefonnummer oder durch Klicken auf „Kontaktieren“ akzeptierst Du die Allgemeinen Nutzungsbedingungen, denen Du jederzeit widersprechen kannst. Weitere Informationen zum Datenschutz

Ăśber den Anbieter

Hans Myslik GmbH
Hans Myslik GmbHMaklerbĂĽro
Adolf-Schemel-Str. 23, 5020 SALZBURG
partner badge
10 Jahre Partnerschaft
Herr Christian RippelDein Kontakt
Online-ID: 2hz435u
Referenznummer: MY-00226
Hans Myslik GmbH
Hans Myslik GmbH
Nachricht hinzufĂĽgen
Mit der Nutzung der oben angegebenen Telefonnummer oder durch Klicken auf „Kontaktieren“ akzeptierst Du die Allgemeinen Nutzungsbedingungen, denen Du jederzeit widersprechen kannst. Weitere Informationen zum Datenschutz
Wie zufrieden bist du mit dieser Seite (nicht mit der Immobilie selbst)?