Version: 8.24.0Navigation überspringen
Engel & Völkers
435.000 €
5 Zimmer  •  127 m²  •  710 m² Grundstück

Doppelhaushälfte zum Kauf
435000 €
3.425 €/m²
5 Zimmer  •  127 m²  •  710 m² Grundstück

Doppelhauspartner gesucht: Ihr Traum vom Neubau in beliebter Lage von Arnstein!

Hier könnte Ihr neues Familiendomizil entstehen! In schöner Lage von Arnstein gelegen, befindet sich dieses 710 m² große und voll erschlossene Baugrundstück, welches mit einem Doppelhaus bebaut werden könnte.

Neben den anteiligen Kosten für das Grundstück beinhaltet der Angebotspreis auch den exemplarischen Neubau einer Doppelhaushälfte (Ausbaustufe "malerfertig"), welche man individuell gestalten, vergrößern und verkleinern könnte.

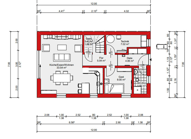
Mit einer geplanten Wohnfläche von ca. 127 m² erstreckt sich die Doppelhaushälfte über zwei Vollgeschosse und bietet Ihnen und Ihrer Familie ausreichend Platz für Wohnen, Arbeiten & Hobby.

Das Erdgeschoss besticht durch seinen durchdachten Grundriss und bietet neben dem offenen Wohnbereich, einem Gästezimmer/Büro und einem Duschbad ausreichend Platz für die Haustechnik und weitere Staumöglichkeiten.
Im Obergeschoss würden sich insgesamt drei Zimmer und das Master-Bad befinden, welches eine flexible Raumnutzung ermöglicht. Der Dachraum gibt Möglichkeit zur Lagerung oder späterem Ausbau.

Im Außenbereich genießen Sie Ihre eigene Terrasse am Südhang, inkl. Weitblick. Das anteilige Grundstück mit ca. 355 m² bietet ausreichend Fläche für gemütliche Stunden im Freien.

Diese Doppelhaushälfte bietet Ihnen die Möglichkeit, sich Ihr großzügiges Traumhaus nach Ihren Vorstellungen zu gestalten, anstatt Kompromisse mit Bestandsgebäuden einzugehen!

Wichtiger Hinweise:
- Der Neubau ist KfW / QNG geeignet.
- Die genaue Spezifikation und Ausführung des Neubaus erfolgt nach detaillierter Abstimmung mit dem Planungsbüro / Bauträger.
- Der Preis für die Doppelhaushälfte ist abhängig von den Inklusivleistungen und kann von dem o.g. Preis abweichen.
- Das Grundstück ist aktuell noch nicht geteilt.

Diese Rarität spricht Sie an, und Sie sehen hier bereits Ihr neues Zuhause? Wir freuen uns auf Ihre Kontaktaufnahme.

Merkmale

  • Bezug: sofort
  • 710 m² Grundstück
  • Gäste-WC
  • Balkon
  • Garten
  • Badezimmer: Badewanne, Bad mit Dusche, Bad mit Fenster
  • voll erschlossen

Grundrisse

Grundrisse
1 / 1

Realisiere Dein Projekt

Bausubstanz und Energie

Energieausweis

Ein Energieausweis ist für diesen Gebäudetyp nicht notwendig.
MediumRectangleTop

Preisdetails

Kaufpreis
435000 €
3.425,20 €/m²
Provision für Käufer
3,57 % inkl. gesetzlicher MwSt.
Geschätzte Gesamtkosten
474.454 €1
Kaufpreis
435.000 €
Notarkosten (1,5%)
6.525 €
Grunderwerbsteuer (3,5%)
15.225 €
Provision für Käufer (3,57%)
15.529 €
Grundbucheintrag (0,5%)
2.175 €
1Der angezeigte Wert ist eine automatisch berechnete Schätzung von immowelt.
2Bei den Angaben handelt es sich um ortsübliche Werte. Individuelle Kosten können abweichen.

Lage

address-icon
Arnstein (97450)
Der Anbieter hat die genaue Adresse nicht freigegeben
Arnstein ist mit ca. 8.000 Einwohnern eine hübsche, landschaftlich reizvoll gelegene Kleinstadt, ca. 15 km von Karlstadt, 25 km von Schweinfurt (20 Fahrminuten) und etwa 25 km (20 Fahrminuten) von Würzburg entfernt. Kindergarten und Schulen sind ebenso vorhanden wie verschiedene Einkaufsmöglichkeiten, Ärzte, Apotheken und alle Dinge des täglichen Bedarfs. Vielfältige Freizeitmöglichkeiten bieten sich in den Vereinen. Ebenso gibt es in der direkten Umgebung tolle Rad-, und Wanderwege, einen Naturbadesee und einen Walderlebnispfad. Das Objekt befindet sich in begehrter und ruhiger Ortsrandlage mit Blick auf die Stadt.

Weitere Informationen

Sonstiges Courtagepassus:

Der Makler-Vertrag mit uns und/oder unserem Beauftragten kommt durch die Bestätigung der Inanspruchnahme unserer Maklertätigkeit in Textform zustande, wie z.B. insbesondere die Unterschrift des Suchkundenvertrages und/oder des Objekt-Exposés. Die Höhe der Courtage richtet sich nach den ab dem 23.12.2020 in Kraft getretenen gesetzlichen Regelungen zur Teilung der Maklercourtage. Hiernach wird die Courtage regelmäßig für beide Parteien (Eigentümer und Käufer) in Höhe von jeweils 3,57 % des Kaufpreises einschließlich Umsatzsteuer bei notariellem Vertragsabschluss verdient und fällig. Die Höhe der Bruttocourtage unterliegt einer Anpassung bei Steuersatzänderung. Grunderwerbssteuer, Notar- und Gerichtskosten trägt der Käufer.

Hinweis:

Alle Angaben sind ohne Gewähr und basieren ausschließlich auf Informationen, die uns von unserem Auftraggeber übermittelt wurden. Wir übernehmen keine Gewähr für die Vollständigkeit, Richtigkeit und Aktualität dieser Angaben. Zwischenverkauf bleibt vorbehalten. Sollte das von uns nachgewiesene Objekt bereits bekannt sein, teilen Sie uns dieses bitte unverzüglich mit. Die Weitergabe dieses Exposees an Dritte ohne unsere Zustimmung löst gegebenenfalls Courtage- bzw. Schadensersatzansprüche aus. Im Übrigen gelten die beigefügten allgemeinen Geschäftsbedingungen für die Rechtsbeziehung zwischen Ihnen und der Fuderer Real Estate GmbH. Stichworte GRZ: 0.4, GFZ: 0.8, Anzahl der Schlafzimmer: 3, Anzahl der Badezimmer: 1, Anzahl Balkone: 1, Bundesland: Bayern

Weitere Services

Lust auf eine Besichtigung?
Eine Frage zur Immobilie?
Nachricht hinzufügen
Mit der Nutzung der oben angegebenen Telefonnummer oder durch Klicken auf „Kontaktieren“ akzeptierst Du die Allgemeinen Nutzungsbedingungen, denen Du jederzeit widersprechen kannst. Weitere Informationen zum Datenschutz

Über den Anbieter

Engel & Völkers
Engel & VölkersMaklerbüro
Karmelitenstraße 24, 97070 Würzburg
partner badge
10 Jahre Partnerschaft
Herr Michael Nogolica
Herr Michael NogolicaDein Kontakt
Online-ID: 2m26k5q
Referenznummer: EV-3470
Engel & Völkers
title
Engel & Völkers
Bewertung: 4,6 von 5 Sternen
Nachricht hinzufügen
Mit der Nutzung der oben angegebenen Telefonnummer oder durch Klicken auf „Kontaktieren“ akzeptierst Du die Allgemeinen Nutzungsbedingungen, denen Du jederzeit widersprechen kannst. Weitere Informationen zum Datenschutz
MediumRectangleTop
MediumRectangleBottom
MediumRectangleTop
Wie zufrieden bist du mit dieser Seite (nicht mit der Immobilie selbst)?