Version: 8.24.0Navigation ĂĽberspringen
1.850 €
170 m² Bürofläche
Immowelt logo

Bürofläche zur Miete
1.850 €
170 m² Bürofläche

Zentrale Lage in Stuttgart-Wangen / Gewerbefläche ca. 190 QM / große Schaufensterfläche

Gewerbefläche zur Vermietung in Stuttgart-Wangen - vielseitig nutzbar!!

Zur Vermietung steht eine attraktive Gewerbefläche mit ca. 190 m² in zentraler Lage von Stuttgart-Wangen. Die Fläche befindet sich ebenerdig und verfügt über große Schaufensterfronten, die ideale Sichtbarkeit und natürliche Belichtung bieten.

Dank des offenen Zuschnitts ist die Immobilie vielseitig nutzbar - ob als Büro-, Praxis-, Einzelhandels- oder Gastronomiefläche, hier sind viele Konzepte realisierbar.

Highlights:
. Ca. 190 m² ebenerdige Fläche
. Helle Räume mit großen Schaufenstern
. Zentrale, gut erreichbare Lage
. Flexible Nutzungsmöglichkeiten

Die Fläche steht ab sofort zur Verfügung.

Merkmale

  • Bezug: sofort
  • 1. Geschoss
  • 2 Stellplätze: 2 AuĂźen-Stellplätze
  • Raumaufteilung flexibel
* HELLE, SCHÖNE GEWERBEFLÄCHE MIT CA. 190 QM FLÄCHE *
* BAUJAHR 1961 / ERDGESCHOSS *
* ZENTRALE LAGE (WASENSTR. 11 IN STUTTGART-WANGEN) *
* PERFEKTE ANBINDUNG AN DEN Ă–PNV *
* GEPFLEGTER ZUSTAND *
* GAS-ETAGENHEIZUNG * GROSSE FENSTERFRONTEN *
* 2 PKW-STELLPLÄTZE
* FREI AB SOFORT! *

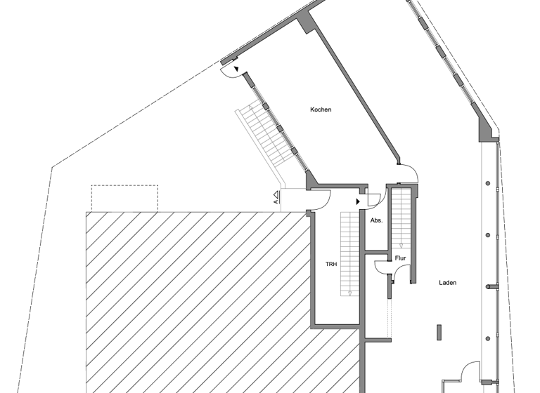
Grundrisse

Grundrisse
1 / 1

Realisiere Dein Projekt

Bausubstanz und Energie

Energieausweis

Endenergiebedarf (Wärme)

  • Baujahr1961
  • HeizungsartEtagenheizung
  • EnergieträgerGas
Immowelt logo

Mietkosten

Nettomiete
1.850 €
Nebenkosten
390 €
Zusätzliche Kosten
Miete pro Stellplatz
60 €
Provision fĂĽr Mieter
Bei Abschluss eines Mietvertrages wird eine Vermittlungs-/ Nachweisprovision in Höhe von 2,00 Nettomonatsmieten zzgl. gesetzlich geltender Mehrwertsteuer (derzeit 19,00 %) vom Mieter fällig.
Kaution
nach Vereinbarung
Weitere Preisinformationen
2 Stellplätze, Miete je: 60,00 EUR

Lage

address-icon
Wangen, Stuttgart (70327)
Der Anbieter hat die genaue Adresse nicht freigegeben
Diese Gewerbefläche befindet sich im Erdgeschoss eines gepflegten Mehrfamilienwohnhauses in zentraler Lage in Stuttgart-Wangen.

Stuttgart-Wangen liegt schön gelegen im Neckartal zwischen Stuttgart und Esslingen.

Alle Notwendigkeiten des täglichen Lebens sind durch kurze Wege erreichbar. Im Ort finden Sie u.a. verschiedene Einkaufsmöglichkeiten, Ärzte, Kindergarten, Schule, Vereine und Gaststätten. Die nächste U-Bahn-Station ist in wenigen Minuten zu Fuß zu erreichen und nach ca. 15min Fahrt sind Sie mitten in Stuttgart! Schnell ist man auf dem Wangener Berg und kann die schöne Aussicht und die Natur genießen oder eine der Lokalitäten besuchen.

Weitere Informationen

Sonstiges FREI AB SOFORT!!!

Mietkonditionen:
. Nettokaltmiete: 1.850,00 €
. Nebenkostenvorauszahlung: 390,00 €
. 2 Pkw-Stellplätze: 60,00 €/Stellplatz
. jeweils zzgl. 19,00% MwSt.
. Mietkaution: nach Vereinbarung

Energieausweis:
. Bedarfsausweis
. Endenergieverbrauchskennwert: 101,4 kWh/qm*a
. Energieeffizienzklasse: D
. Baujahr Gebäude: 1961
. Baujahr Wärmeerzeuger: 12019
. wesentlicher Energieträger: Gas
. Ausstellungsdatum: 15.01.2026

WICHTIG:
Bitte haben Sie Verständnis, dass wir bei Interesse Ihre vollständigen Kontaktdaten sowie Informationen zu Ihrer geplanten Nutzung/Gewerbe benötigen.

Die von uns gemachten Informationen beruhen auf Angaben des Vermieters. Für die Richtigkeit und Vollständigkeit der Angaben kann keine Gewähr bzw. Haftung übernommen werden.

Eine Besichtigung ist auf ausdrĂĽcklichen Wunsch des EigentĂĽmers nur in unserer Begleitung erwĂĽnscht. Bitte vereinbaren Sie deshalb mit uns einen Termin.

Selbstverständlich stehen wir Ihnen für weitere Fragen jederzeit gerne zur Verfügung.

Wir freuen uns auf Ihre Anfrage!

Zondler & Costanzo Immobilien
Ihre Spezialisten rund um die Immobilie! Stichworte Stellplatz vorhanden, Nutzfläche: 190,00 m², Gesamtfläche: 190,00 m² Zustand: renovierungsbedürftig, gepflegt Sonstiges: Getrennte Damen- und Herren-WCs

Weitere Services

Lust auf eine Besichtigung?
Eine Frage zur Immobilie?
Nachricht hinzufĂĽgen
Mit der Nutzung der oben angegebenen Telefonnummer oder durch Klicken auf „Kontaktieren“ akzeptierst Du die Allgemeinen Nutzungsbedingungen, denen Du jederzeit widersprechen kannst. Weitere Informationen zum Datenschutz

Ăśber den Anbieter

Biberacher StraĂźe 69, 70327 Stuttgart
partner badge
Partnerschaft
Herr Matthias ZondlerDein Kontakt
Keine Telefonnummer hinterlegt
Keine Telefonnummer hinterlegt
Online-ID: 2nguz5j
Referenznummer: 8943#9u7RBw
Zondler & Costanzo Immobilien GbR
Zondler & Costanzo Immobilien GbR
Bewertung: 4 von 5 Sternen
Nachricht hinzufĂĽgen
Mit der Nutzung der oben angegebenen Telefonnummer oder durch Klicken auf „Kontaktieren“ akzeptierst Du die Allgemeinen Nutzungsbedingungen, denen Du jederzeit widersprechen kannst. Weitere Informationen zum Datenschutz
Wie zufrieden bist du mit dieser Seite (nicht mit der Immobilie selbst)?