
Busch Immobilien GmbH
Herr Thomas Busch
+49 ···
Nr. anzeigenPreise & Kosten
Kaution
1.683,00
Provision für Mieter
Bitte beachte, das Angebot kann bei Vertragsabschluss die Zahlung einer Provision beinhalten. Weitere Informationen erhältst Du vom Anbieter.
Warum sehe ich diese Anzeige? – Du siehst diese Anzeige basierend auf Ihrer Navigation auf unserer Website und den Suchkriterien, die du verwendet hast.
Lage
Die Gewerbefläche befindet sich in einer ruhigen Seitenstraße nahe dem Schlosspark und dem Residenzschloss Altenburg. Die Lage ist zentral dennoch verhältnismäßig ruhig gelegen.
Büro-/Praxisfläche
Energie & Heizung
Warum sehe ich diese Anzeige? – Du siehst diese Anzeige basierend auf Ihrer Navigation auf unserer Website und den Suchkriterien, die du verwendet hast.
Weitere Energiedaten
Energieträger
Gas
Heizungsart
Etagenheizung
Details
Objektbeschreibung
ENERGIEAUSWEIS
Der Energieausweis liegt seitens des Anbieters noch nicht vor.
---------------
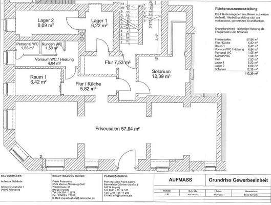
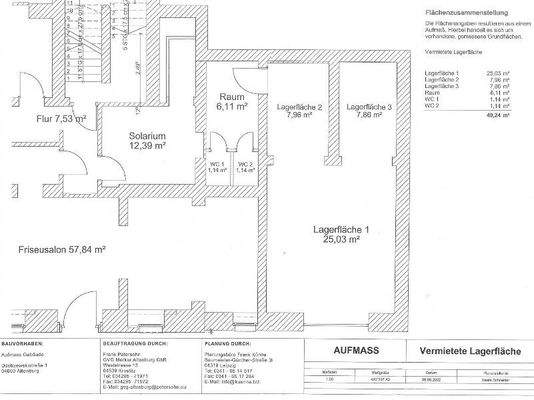
Vermietet wird eine Gewerbeeinheit im Erdgeschoss eines gemischt genutzten Mehrfamilienhauses. Die Gewerbeeinheit wurde bisher als Friseursalon und Solarium genutzt. Gewünscht sind wieder ähnliche Nutzungen aber...
Weitere Informationen
Stichworte
Gesamtfläche: 112,20 m², Anzahl der separaten WCs: 2, Bundesland: Thüringen
Anbieter der Immobilie
Online-ID: 25g2j5f
Referenznummer: 1011
Finde Angebote wie dieses
Hier geht es zu unserem Impressum, den Allgemeinen Geschäftsbedingungen, den Hinweisen zum Datenschutz und nutzungsbasierter Online-Werbung.