3 Zimmer • 85 m² • Geschoss EG/3 • frei ab 01.07.2026
1 / 5
1 / 5
Terrassenwohnung zur Miete
984 €
3 Zimmer • 85 m² • Geschoss EG/3 • frei ab 01.07.2026
Moderne 3-Raum-Wohnung mit Terrasse
Moderne 3-Raum-Wohnung mit Terrasse und Gartenanteil in ruhiger, familiärer Wohnanlage
Objektbeschreibung
In unserem neu errichteten Wohnquartier erwarten Sie moderne und hochwertig ausgestattete Wohnungen, die höchsten Wohnkomfort und zeitgemäße Technik vereinen. Die ruhige, familiäre Wohnanlage bietet ein angenehmes Umfeld für Menschen, die Wert auf Lebensqualität und Entspannung legen.
Die angebotene 3-Raum-Wohnung befindet sich im zweiten der zwei exklusiven Gebäude, welche sich über drei Etagen erstrecken und insgesamt 7 einzigartige Wohneinheiten zwischen 48 und 126 m² bieten.
Ausstattung & Highlights
Hochwertiger Vinylfußboden in allen Wohnbereichen
Komfortable Fußbodenheizung
Modernes Smart-Home-System mit Homematic IP
Großzügige Terrasse mit Gartenanteil zur exklusiven Nutzung – ideal für entspannte Stunden im Freien
Helle, offene Raumgestaltung für ein angenehmes Wohngefühl
Zeitgemäße, energieeffiziente Gebäudetechnik
Lage & Wohnumfeld
Die Anlage überzeugt durch ihre ruhige, grüne Lage und den familiären Charakter. Naturverbundenes Wohnen und dennoch eine sehr gute Infrastruktur – hier genießen Mieter das Beste aus beiden Welten.
Parkmöglichkeiten
Ein Parkplatz kann bei Bedarf für 30,00 € monatlich zusätzlich angemietet werden.
Besichtigungstermine werden nach Absprache vereinbart und finden ab dem 13.04.26 statt.
Unsere Wohnimmobilien stehen für modernes Wohnen, durchdachte Raumkonzepte und ein Umfeld, in dem Sie sich rundum wohlfühlen können.
Wir freuen uns auf Ihre Anfrage und darauf, Ihnen Ihr neues Zuhause persönlich vorzustellen!
Merkmale
frei ab 01.07.2026
Erdgeschoss/3 Geschosse
Haustiere erlaubt
Kein Keller
2 Außen-Stellplätze
Garten
Terrasse (gesamt 11 m²)
Nicht möbliert
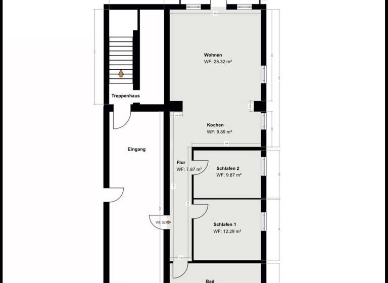
Grundrisse
Grundrisse
1 / 1
Realisiere Dein Projekt
Bausubstanz und Energie
Energieausweis
Der Anbieter hat keine Daten zum Energieausweis hinterlegt.
Baujahr2024
Zustand der Immobilieneuwertig
HeizungsartZentralheizung
Mietkosten
Warmmiete
1.197 €
Kaltmiete
11,58 €/m²
984 €
Nebenkosten
213 €
Kaution
2952 €2.952 €
Lage
Kirchheim (99334)
Der Anbieter hat die genaue Adresse nicht freigegeben
Weitere Services
Lust auf eine Besichtigung?
Eine Frage zur Immobilie?
Über den Eigentümer
SarahPrivater Anbieter
Keine Telefonnummer hinterlegt
Keine Telefonnummer hinterlegt
Online-ID: 25GHGBVEZMBJ
Sarah
Wie zufrieden bist du mit dieser Seite (nicht mit der Immobilie selbst)?