

Maisonette zur Miete900 €2,5 Zimmer • 60 m² • Geschoss 2/3 • frei ab sofort
900 €
2,5 Zimmer • 60 m² • Geschoss 2/3 • frei ab sofort
Luxus-Appartement in historischem Fachwerkhaus
Merkmale
- frei ab sofort
- Dachgeschoss, 2. Geschoss/3 Geschossen
- Haustiere nicht erlaubt (außer Kleintiere z.B. Hamster)
- Einbauküche
- Garten
- möbliert
- Badezimmer
- Nicht WG-geeignet
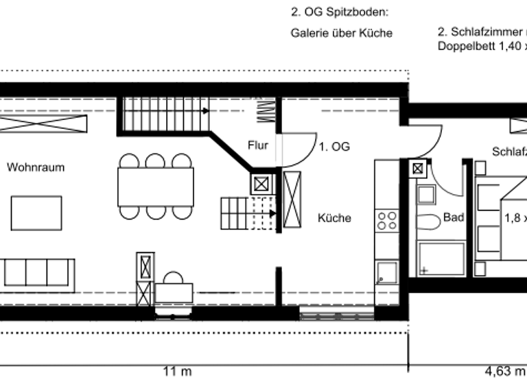
Grundrisse
Grundrisse
1 / 1
Realisiere Dein Projekt
Bausubstanz und Energie
Energieausweis
- Baujahr1870
- Zustand der Immobilieneuwertig
- HeizungsartZentralheizung
- EnergieträgerGas
Mietkosten
Warmmiete
1.150 €
Kaltmiete
15 €/m²
900 €
Nebenkosten
250 €
Heizkosten
in Nebenkosten enthalten
Kaution
2700 €
Lage

Borstel, Jork (21635)
Der Anbieter hat die genaue Adresse nicht freigegeben
Weitere Services
Lust auf eine Besichtigung?
Eine Frage zur Immobilie?
Über den Eigentümer
StefanPrivater Anbieter
Keine Telefonnummer hinterlegt
Keine Telefonnummer hinterlegt
Online-ID: 25KYP1SWP9TJ
Stefan
Wie zufrieden bist du mit dieser Seite (nicht mit der Immobilie selbst)?

