Version: 8.25.1Navigation überspringen
229.000 €
3,5 Zimmer  •  82,7 m²  •  Geschoss 1/3
Immowelt logo

Wohnung zum Kauf • provisionsfrei
229000 €
2.770 €/m²
3,5 Zimmer  •  82,7 m²  •  Geschoss 1/3

3,5-Zimmer-Wohnung mit Balkon in ruhiger und gepflegter Wohnanlage in Barmstedt- Provisionsfrei

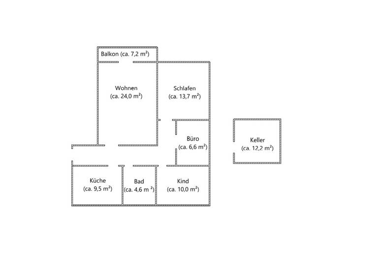
Die Wohnung im Hochparterre ist Teil einer gepflegten und angenehm ruhigen Wohnanlage. Sie ist unvermietet und sofort verfügbar. Die ca. 83 m² verteilen sich auf 3,5 Zimmer und Balkon mit Südwest-Ausrichtung. Das Badezimmer wurde 2002 komplett saniert. Es bietet Dusche und Badewanne, sowie Fußbodenheizung und einen Handtuchheizkörper. Ein besonderes Plus für den Käufer: Die großzügige Fensterfront mit integrierter Balkontür im Wohnzimmer wird in Kürze vollständig erneuert. Dadurch profitieren Sie von der verbesserten Wärmedämmung und Ihnen entstehen keine zusätzlichen Kosten. In allen weiteren Räumen sind bereits Kunststofffenstern verbaut. Im Wohnzimmer sind elektrische Rollläden mit Fernbedienung installiert. Das Schlafzimmer und das halbe Zimmer verfügen über manuell bedienbare Rollläden. Hinweis zum vorliegenden Energieverbrauchsausweis: Dieser basiert noch auf dem Betrieb der früheren Ölheizung. 2018 wurde die Heizungsanlage modernisiert und auf Gas umgestellt. Ein Glasfaseranschluss ist in der Wohnung vorhanden. Zur Wohnung gehört ein eigener geräumiger Kellerraum mit einer Größe von ca. 12 m2. Im Keller befinden sich außerdem ein Gemeinschaftswaschraum, wo die Waschmaschine und der Wäschetrockner ihren Platz finden, sowie gemeinschaftlich genutzte Fahrrad- und Trockenräume. Auf dem Grundstück stehen ausreichend gemeinschaftliche Außenstellplätze ohne feste Zuordnung zur Verfügung . Die AKN Haltestelle "Brunnenstraße" ist zu Fuß in 5 Minuten (ca. 350 Meter) erreichbar. Das aktuelle Wohngeld beträgt aktuell 421 Euro pro Monat. Wir verkaufen unsere Wohnung privat – für Sie fällt keine Maklerprovision an. Bei Interesse freuen wir uns über Ihre Nachricht und bitte um Verständnis, dass wir nur Nachrichten mit vollständigem Namen und Adresse beantworten können. Bitte keine Makleranfragen.

Merkmale

  • 1. Geschoss/3 Geschossen
  • Haustiere nach Absprache
  • Einbauküche
  • Keller
  • Balkon (gesamt 7 m²)
  • Nicht barrierefrei, Nicht rollstuhlgerecht
  • Badezimmer

Grundrisse

Grundrisse
1 / 1

Realisiere Dein Projekt

Bausubstanz und Energie

Energieausweis

D
  • Baujahr1971
  • Zustand der Immobilieteilsaniert
  • HeizungsartZentralheizung
  • EnergieträgerGas
Immowelt logo

Preisdetails

Kaufpreis
229000 €
2.770,05 €/m²
Provision für Käufer
provisionsfrei
Geschätzte Gesamtkosten
248.465 €1
Kaufpreis
229.000 €
Notarkosten (1,5%)
3.435 €
Grunderwerbsteuer (6,5%)
14.885 €
Grundbucheintrag (0,5%)
1.145 €
1Der angezeigte Wert ist eine automatisch berechnete Schätzung von immowelt.
2Bei den Angaben handelt es sich um ortsübliche Werte. Individuelle Kosten können abweichen.

Lage

address-icon
Barmstedt (25355)
Der Anbieter hat die genaue Adresse nicht freigegeben

Weitere Services

Lust auf eine Besichtigung?
Eine Frage zur Immobilie?
Nachricht hinzufügen
Mit der Nutzung der oben angegebenen Telefonnummer oder durch Klicken auf „Kontaktieren“ akzeptierst Du die Allgemeinen Nutzungsbedingungen, denen Du jederzeit widersprechen kannst. Weitere Informationen zum Datenschutz

Über den Eigentümer

StefanPrivater Anbieter
Keine Telefonnummer hinterlegt
Keine Telefonnummer hinterlegt
Online-ID: 25RZ9H98KN36
Stefan
Nachricht hinzufügen
Mit der Nutzung der oben angegebenen Telefonnummer oder durch Klicken auf „Kontaktieren“ akzeptierst Du die Allgemeinen Nutzungsbedingungen, denen Du jederzeit widersprechen kannst. Weitere Informationen zum Datenschutz
Wie zufrieden bist du mit dieser Seite (nicht mit der Immobilie selbst)?